Modern two-bed flat with lift and allocated parking, walkable to Polegate high street.
Two double bedrooms with en-suite to principal bedroom
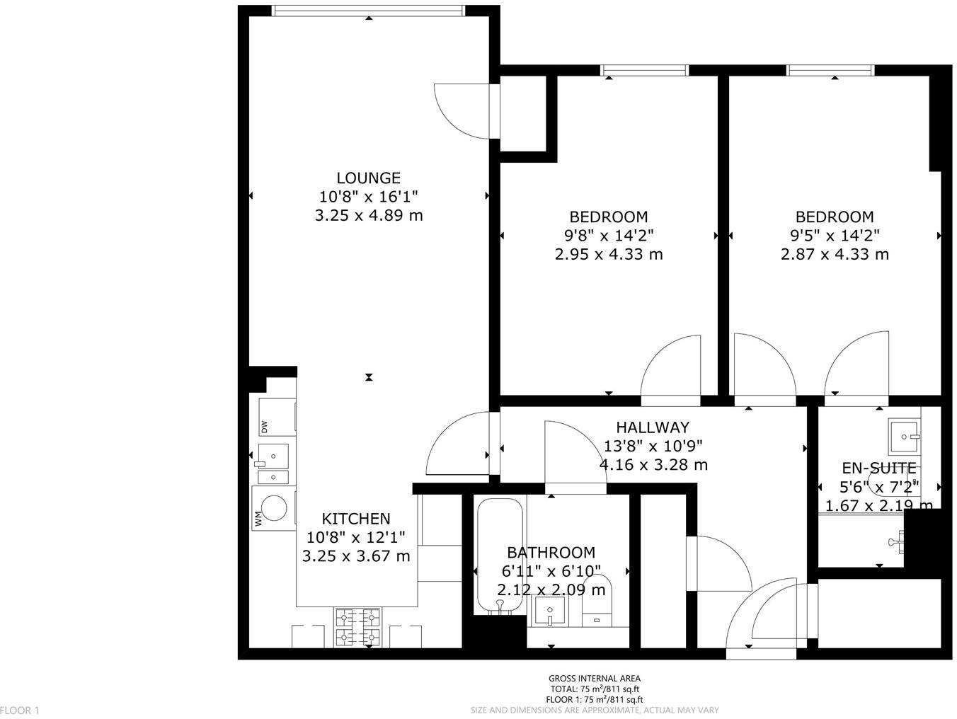
A well-presented two-bedroom first-floor apartment on Station Road, ideal for a first-time buyer or investor seeking low-maintenance living. The flat is modern throughout with an open-plan lounge/diner, fitted kitchen, two bathrooms (one en-suite) and double glazing. A maintained lift and allocated off-street parking add practical convenience for daily life.
The building holds a long lease (119 years remaining) and a modest ground rent of £150 per year. There is no private garden; outside space is communal and parking is allocated to the development. Broadband speeds are slow in the area, though mobile signal is excellent.
Location is a key selling point: short walks to Polegate high street, local shops, bus services and the mainline station for Eastbourne, Brighton and London. Nearby schools include Polegate Primary (Outstanding) and other local primaries and secondaries. Viewings are recommended to appreciate room proportions and the bright, contemporary interior.
2 bedroom flat for sale in Station Road, Polegate, BN26 — £157,500 • 2 bed • 2 bath • 811 ft²
2 bedroom flat for sale in Station Road, Polegate, BN26 — £111,250 • 2 bed • 2 bath • 843 ft²
2 bedroom flat for sale in Kensington Way, Polegate, BN26 — £220,000 • 2 bed • 2 bath • 666 ft²
2 bedroom ground floor flat for sale in Walnut Walk, Polegate, East Sussex, BN26 — £190,000 • 2 bed • 1 bath • 446 ft²
2 bedroom flat for sale in Honeycrag Close, Polegate, East Sussex, BN26 — £185,000 • 2 bed • 1 bath • 485 ft²
2 bedroom apartment for sale in St. Johns Road, Polegate, BN26 — £195,000 • 2 bed • 1 bath • 532 ft²






















































































































