Rare central Sydenham plot with flexible, future‑proof development potential close to rail..
Approved planning for a large 3–4 bedroom timber eco‑home (c.2,600 sq ft).
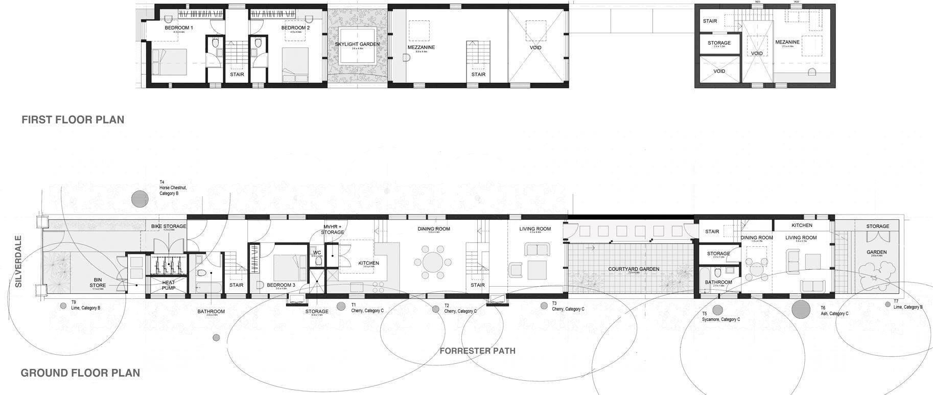
Forest House is a consented development plot with approved planning for a large 3–4 bedroom timber‑framed eco-home of c.2,600 sq ft across two storeys. The design, by an award‑winning architect, retains mature trees and a self‑sown hedgerow to preserve privacy and landscape character. The vendor is open to an 18‑month Option Agreement and to discussions on alternative schemes.
The site sits extremely close to Sydenham Station (c.120m), offering fast rail links into central London — a strong commuter advantage. The layout allows potential to create two self‑contained units (subject to further planning), giving flexibility for multigenerational living or rental income.
Practical considerations: the plot is large and vehicle access is available, but the surrounding area records higher crime and greater deprivation than average. Broadband speeds are reported as slow despite excellent mobile signal. Any buyer should factor in build costs, services connections, and possible additional consents if altering the approved scheme.
This is a specialist opportunity for a developer or owner‑builder seeking a bespoke, low‑energy home in a well‑connected South East London location. The consented design and eco credentials reduce design lead time, but sensible budget allowances and local area considerations are essential.
Plot for sale in Francemary Road, London , SE4 — £399,950 • 1 bed • 1 bath
3 bedroom semi-detached house for sale in Round Hill, Sydenham, London, SE26 — £775,000 • 3 bed • 2 bath • 969 ft²
Residential development for sale in Wells Park Road, London, SE26 6RQ, SE26 — £2,500,000 • 33 bed • 20 bath • 16609 ft²
Plot for sale in Kelsey Lane, Beckenham, Greater London, BR3 — £950,000 • 6 bed • 1 bath • 3659 ft²
Land for sale in Winn Road, London, SE12 — £595,000 • 5 bed • 2 bath • 3070 ft²
Residential development for sale in Land To The Side Of 33 Devonshire Road, Mottingham, London, SE9 — £410,000 • 1 bed • 1 bath • 2200 ft²


















































