**Standout Features:**
- High-rise luxury apartment on the 44th floor of One Park Drive
- 2 spacious bedrooms and 2 modern bathrooms
- Expansive living area with floor-to-ceiling windows
- 94 sq ft terrace with panoramic views of London's skyline
- Access to premium amenities including a gym, concierge, and leisure facilities
- Newly renovated in a prestigious development
**Potential Concerns:**
- High service charge of £10,709 may impact overall affordability
- Elevated crime rate in the area may be a consideration for families
**Summary Description:**
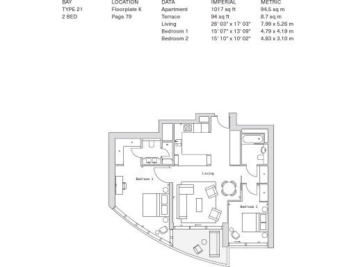
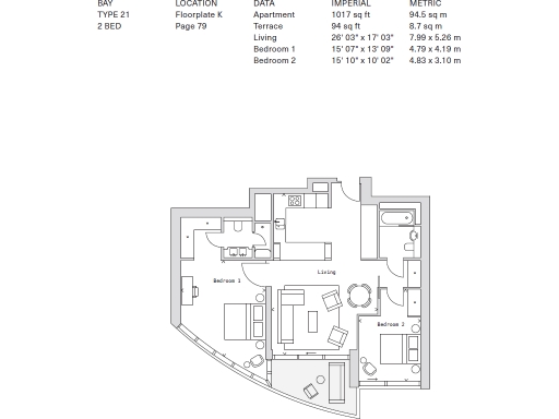
Elevate your living experience in this impressive luxury apartment situated on the 44th floor of the iconic One Park Drive in Canary Wharf. Spanning over 1,000 sq ft, this newly renovated two-bedroom property features a spacious layout with contemporary design elements, where floor-to-ceiling windows invite an abundance of natural light and showcase breathtaking city views. Enjoy the exclusivity of the double-height terrace, perfect for outdoor relaxation or entertaining.
Residents will benefit from a wealth of amenities, including a state-of-the-art gym, concierge service, and leisure facilities, all within one of London's most vibrant and affluent districts. Enjoy unparalleled connectivity to the city with multiple transport options, including the Jubilee line and the forthcoming Crossrail, which offers a swift journey to central London in just 13 minutes.
While enjoying a cosmopolitan lifestyle, it’s essential to consider the high service charges and elevated crime rate in the area. This property presents an outstanding opportunity for first-time buyers or investors looking for luxury living in a prestigious location—don't miss your chance to call this remarkable apartment home!
2 bedroom flat for sale in One Park Drive, Canary Wharf, London, E14 — £1,445,000 • 2 bed • 2 bath • 1017 ft²
2 bedroom apartment for sale in One Park Drive, Canary Wharf, E14 , E14 — £1,630,000 • 2 bed • 2 bath • 1076 ft²
2 bedroom apartment for sale in Park Drive, Canary Wharf, E14 — £1,350,000 • 2 bed • 2 bath • 925 ft²
1 bedroom apartment for sale in 1 Park Drive, Canary Wharf, E14 — £849,000 • 1 bed • 1 bath • 700 ft²
2 bedroom flat for sale in One Park Drive, Canary Wharf, London, E14 — £1,415,000 • 2 bed • 2 bath • 1017 ft²
3 bedroom flat for sale in One Park Drive, Canary Wharf, London, E14 — £3,350,000 • 3 bed • 2 bath • 1887 ft²






















































































