**Standout Features:**
- Newly renovated, contemporary 2-bedroom flat in a prestigious high-rise
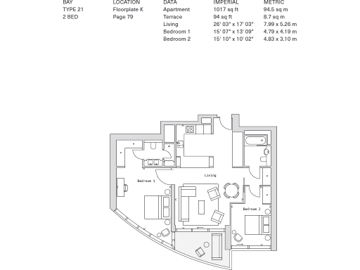
- Spacious 1,017 sq ft with sweeping views across London
- Luxury amenities including gym, cinema room, swimming pool, and 24-hour concierge
- Located on the 41st floor of the iconic One Park Drive development
- Close proximity to transport links: Jubilee Line, DLR, Thames River Bus, and Crossrail
**Potential Concerns:**
- High service charge of £10,709 per year
- Crime rate in the area is on the higher side
**Summary:**
Experience elevated urban living in this stunning 2-bedroom flat situated on the 41st floor of One Park Drive, the landmark residential tower designed by Herzog & de Meuron in the heart of Canary Wharf. Spanning 1,017 sq ft, this newly renovated space boasts exquisite design and expansive double-height terraces providing breathtaking views of London. Enjoy a lifestyle complemented by a suite of premium amenities including a 20-metre swimming pool, state-of-the-art gym, cinema room, and dedicated concierge service, all within a beautifully maintained, secure environment.
This property represents a unique opportunity for buyers looking for luxury and convenience in a vibrant inner-city locale, with easy access to transport links, trendy bars, diverse dining options, and a cosmopolitan atmosphere. However, potential buyers should consider the substantial annual service charges and the area's higher crime rates. Whether you're a discerning professional, a first-time buyer seeking a cosmopolitan lifestyle, or an investor wanting to capitalize on the potential rental market, this exclusive living experience is not to be missed—schedule a viewing today!
2 bedroom flat for sale in One Park Drive, Canary Wharf, London, E14 — £1,460,000 • 2 bed • 2 bath • 1017 ft²
2 bedroom flat for sale in One Park Drive, Canary Wharf, London, E14 — £1,415,000 • 2 bed • 2 bath • 1017 ft²
2 bedroom flat for sale in Park Drive 1 Park Drive E14 — £1,275,000 • 2 bed • 2 bath • 927 ft²
2 bedroom apartment for sale in Park Drive, Canary Wharf, E14 — £1,350,000 • 2 bed • 2 bath • 925 ft²
1 bedroom flat for sale in Park Drive, London, E14 — £980,000 • 1 bed • 1 bath • 753 ft²
1 bedroom apartment for sale in 1 Park Drive, Canary Wharf, E14 — £849,000 • 1 bed • 1 bath • 700 ft²














































