Ground-floor two-bed near the sea — long lease, no chain, ready to personalise..
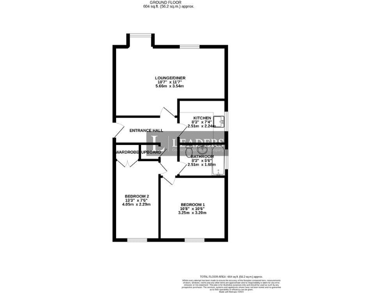
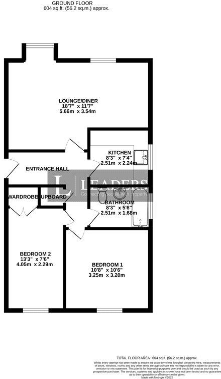
Ground-floor two-bedroom apartment, 635 sqft; 99-year lease (approx).
400 yards to seafront; easy access to shops, pubs and transport.
Bright lounge/diner with large bay window and dining area.
Service charge ~£1,109pa; ground rent ~£35pa.
Electric room heating; may need energy-efficiency upgrades.
Residence parking rear — unallocated, first-come basis.
Area shows higher crime and local deprivation; check security.
No onward chain — fast completion possible.
This ground-floor two-bedroom apartment sits just 400 yards from Bognor Regis seafront, offered with no onward chain and a long lease (circa 99 years). The lounge/diner features a large bay window that brings in plenty of light, and the layout includes a practical kitchen, two double bedrooms and useful entrance-hall storage — a straightforward home for first-time buyers or a lettable investment close to coastal amenities.
Practical running costs include an annual service charge of about £1,109 and a small ground rent of approximately £35. Heating is electric, provided by room heaters, and the building dates from the late 1960s/early 1970s with cavity walls that are assumed uninsulated — buyers should budget for energy-efficiency improvements and check heating suitability for year-round use.
Parking is available to the rear on a first-come, first-served basis rather than a dedicated space. The property is in a part of town with higher crime and local area deprivation indicators; prospective purchasers should consider location-specific security and insurance implications. Flooding risk is low and transport links to town and rail are convenient.
Overall this is a compact, well-positioned flat with clear rental and lifestyle appeal due to the seaside location and no onward chain. It suits buyers who prioritise location over turnkey finishes and investors or first-time purchasers willing to carry out modest upgrades to improve comfort and energy performance. A full inspection is recommended to confirm condition and potential improvement costs.
2 bedroom flat for sale in Stocker Road, Bognor Regis, PO21 — £160,000 • 2 bed • 1 bath • 506 ft²
2 bedroom apartment for sale in Mill House, 7-8 Marine Drive West, Bognor Regis, PO21 — £155,000 • 2 bed • 1 bath • 570 ft²
2 bedroom apartment for sale in The Steyne, Dolphin Court, PO21 — £160,000 • 2 bed • 1 bath • 673 ft²
1 bedroom apartment for sale in Norfolk Square, Bognor Regis, PO21 — £155,000 • 1 bed • 1 bath • 430 ft²
1 bedroom flat for sale in Victoria Road South, Bognor Regis, PO21 — £138,000 • 1 bed • 1 bath • 483 ft²
2 bedroom apartment for sale in Park Terrace, West Bognor Regis, West Sussex, PO21 — £240,000 • 2 bed • 1 bath • 1085 ft²














































