Renovated farmhouse with generous gardens, views and flexible family living..
- Approximately 0.65 acre plot with terraced lawns and orchard
- Open-plan kitchen/dining with underfloor heating and feature island
- Drawing room with inglenook fireplace and wood-burning stove
- Ground-floor guest bedroom/office with ensuite bathroom
- Master suite with open-plan bathroom; two further double bedrooms
- Private driveway, off-street parking and outbuildings/store
- Stone walls likely uninsulated — consider solid-wall insulation
- Oil-fired heating, council tax above average; remote hamlet location
A handsome former farmhouse, recently renovated, set on about 0.65 acres with far-reaching countryside views. The house combines traditional granite character—inglenook fireplace and stone exterior—with modern comforts such as an open-plan kitchen with underfloor heating and double glazing installed after 2002. Terraced lawns, an orchard, outbuildings and pasture give flexible outdoor space for gardening or hobby livestock.
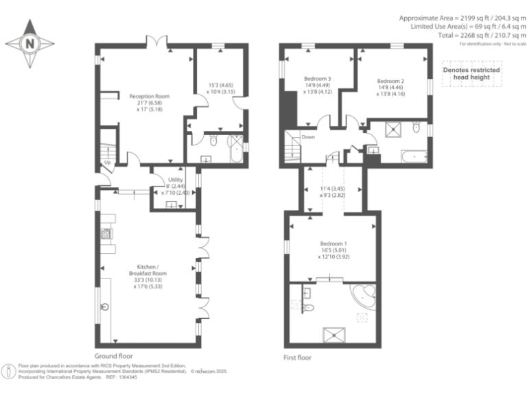
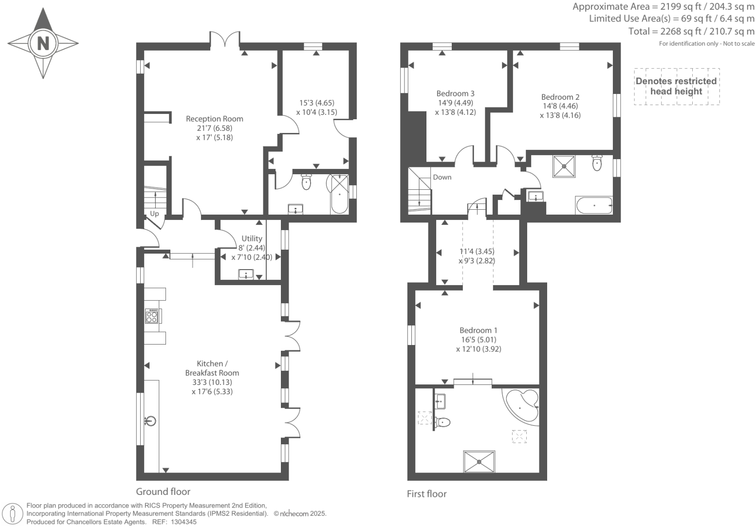
The interior offers versatile family living: a drawing room with wood-burning stove and French doors to the garden, a ground-floor guest bedroom or home office with ensuite, and an upstairs master suite with an open-plan bathroom plus two further double bedrooms. The property totals about 2,268 sq ft, providing spacious rooms throughout despite generally low to average ceiling heights.
Practical points are straightforward: oil-fired boiler and radiators provide heating (private oil supply), parking on a private driveway, excellent mobile signal and fast broadband suitable for remote working. There is no recorded flood risk, and the location is peaceful while still within easy driving distance of Hay-on-Wye, Brecon and Hereford.
Buyers should note this is an older stone-built property (pre-1900) where walls are assumed to be uninsulated solid granite; further insulation works could be advisable for energy efficiency. Council tax is above average, and the property sits in a sparsely populated, remote agricultural area with limited local amenities. Overall, the house will suit buyers seeking a characterful rural home with generous grounds and scope for energy improvements.
3 bedroom detached house for sale in Whitney-on-Wye, Hereford, HR3 — £500,000 • 3 bed • 2 bath • 2484 ft²
4 bedroom detached house for sale in Llowes, Hay-On-Wye, Herefordshire, HR3 — £720,000 • 4 bed • 3 bath • 2452 ft²
4 bedroom cottage for sale in Cusop Dingle, Hay-On-Wye, Hereford, HR3 — £665,000 • 4 bed • 2 bath • 1258 ft²
5 bedroom detached house for sale in Bredwardine, Hereford, HR3 — £850,000 • 5 bed • 4 bath • 3493 ft²
4 bedroom detached house for sale in Llowes, Powys, HR3 — £325,000 • 4 bed • 2 bath • 1551 ft²
3 bedroom detached house for sale in Begwyns Bluff, Clyro, Hereford, HR3 — £370,000 • 3 bed • 2 bath • 1453 ft²


















































































































