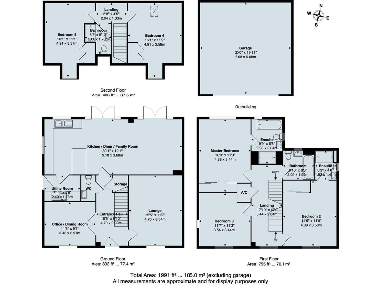
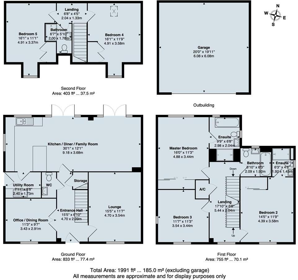
Spacious five-bedroom village home with generous parking and low-maintenance garden.
Five bedrooms and four bathrooms across approximately 1,991 sq ft
Open-plan kitchen/diner with patio doors to landscaped low-maintenance garden
Separate living room, dedicated home office and utility room
Large double garage plus wide private driveway for multiple cars
Built in 2022 with contemporary finishes and EPC rating C
Heating via bulk LPG boiler — consider running and delivery costs
Council Tax Band F — described as expensive
Local crime levels above average for the area
This modern detached home, built in 2022, offers generous family living across approximately 1,991 sq ft. The ground floor features a large open-plan kitchen/diner with direct garden access, a separate living room and a dedicated home office — well suited to family life and remote working. The landscaped rear garden is designed to be low maintenance and includes a patio for outdoor dining.
Upstairs are five well-proportioned bedrooms, including a master with en‑suite and fitted wardrobe, plus further en‑suite and shower-room arrangements serving other bedrooms. The property includes a large double garage and a wide driveway providing plentiful off-street parking. The home benefits from a C EPC and contemporary finishes throughout.
Practical considerations: heating is provided by an LPG boiler (bulk supply), which may influence running costs and delivery arrangements. Council Tax is band F and described as expensive. Local crime rates are above average for the area — buyers should check recent statistics and consider security measures. Broadband is fast and transport links are convenient, with easy access to major routes and East Midlands Airport.
Overall, this is a spacious, contemporary family house on a large plot in a sought-after village setting. It will suit buyers seeking move-in-ready accommodation with generous living areas, good parking and low-maintenance outdoor space, while those sensitive to fuel arrangements, taxation level or local crime should weigh these factors.
4 bedroom detached house for sale in Manor Court, Breedon-on-the-Hill, Derby, DE73 — £1,100,000 • 4 bed • 3 bath • 2646 ft²
4 bedroom detached house for sale in Priory Close, Breedon On The Hill, DE73 — £460,000 • 4 bed • 2 bath
5 bedroom detached house for sale in Ashby Road, Breedon on the Hill, Derbyshire, DE73 — £655,000 • 5 bed • 4 bath • 1750 ft²
5 bedroom house for sale in Briar Court, Off Ashby Road, Burton upon Trent, DE15 — £650,000 • 5 bed • 4 bath • 2939 ft²
5 bedroom detached house for sale in Wallef Road, Brailsford, Ashbourne, DE6 — £527,500 • 5 bed • 3 bath • 1950 ft²
3 bedroom detached bungalow for sale in Cole Lane, Borrowash, Derbyshire, DE72 3GP, DE72 — £550,000 • 3 bed • 2 bath • 1456 ft²






















































































































































