**Standout Features:**
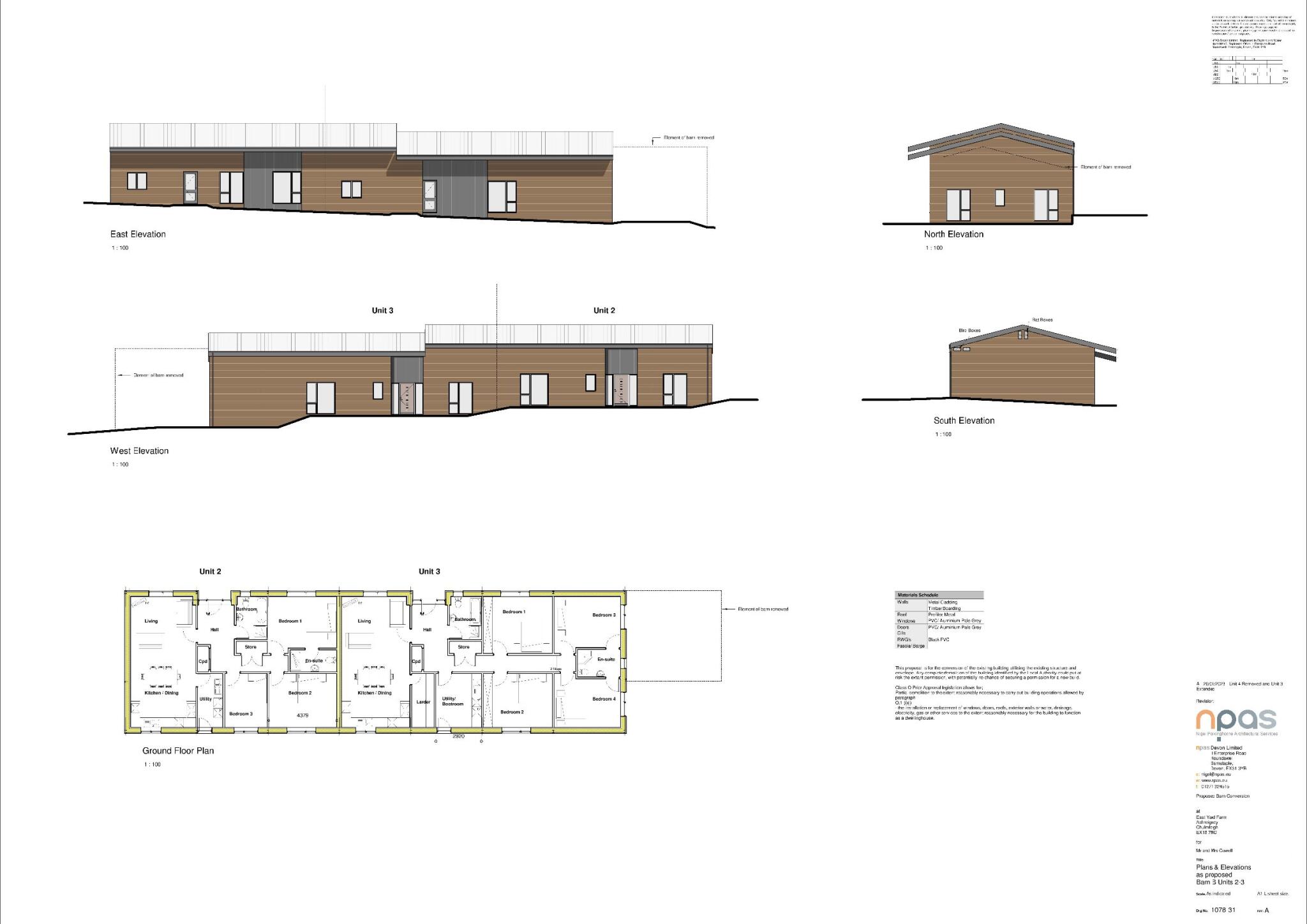
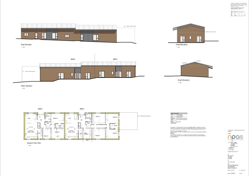
- Large barn with Class Q planning permission for residential conversion.
- Approved plans for two or three dwellings (one 3-bedroom unit and one 4-bedroom unit) with flexibility for additional design options.
- Expansive plot of approximately 4.49 acres, offering breathtaking views of the Devon countryside.
- Convenient access to the village of Ashreigney and main roads (A377, A3124).
- Virtual tour available for previewing the property.
**Key Considerations:**
- Requires installation of private treatment plant for drainage.
- Mains electricity and water are nearby but may require connection.
- The infrastructure needs to be developed, and prospective buyers should consider additional costs.
Escape to Eastyard Farm, an exceptional development opportunity nestled in the picturesque Devon countryside. This expansive barn spans about 2,788 sq ft and holds planning permission for conversion into two or three charming dwellings. With options for additional alterations and set against a stunning backdrop of rolling green fields, it invites you to design your ideal country retreat. Located just 0.7 miles from the thriving village of Ashreigney, enjoy tranquil rural living paired with nearby amenities like schools, community events, and scenic walks.
With a guide price of £225,000 for this generous 4.49-acre plot, and exclusive planning consent valid for three years, the potential for your dream home is ripe for the taking. Don't miss this rare chance to capitalize on a rural setting that combines accessibility with breathtaking views—envision the lifestyle you’ll create here!
5 bedroom detached house for sale in Barn B at Eastyard Farm, Ashreigney, EX18 — £225,000 • 5 bed • 1 bath • 2788 ft²
Land for sale in Land at Eastyard Farm, Ashreigney, EX18 — £245,000 • 1 bed • 1 bath
Land for sale in Atherington, Umberleigh, EX37 — £345,000 • 5 bed • 1 bath • 4121 ft²
5 bedroom detached house for sale in Atherington, Umberleigh, EX37 — £345,000 • 5 bed • 1 bath • 4121 ft²
Equestrian facility for sale in Chulmleigh, Devon, EX18 — £295,000 • 4 bed • 3 bath • 2775 ft²
Land for sale in Silverweir, High Bickington, Umberleigh, EX37 — £250,000 • 1 bed • 1 bath






















































































