**Standout Features:**
- 5-bedroom detached house with potential for two residential properties (subject to planning).
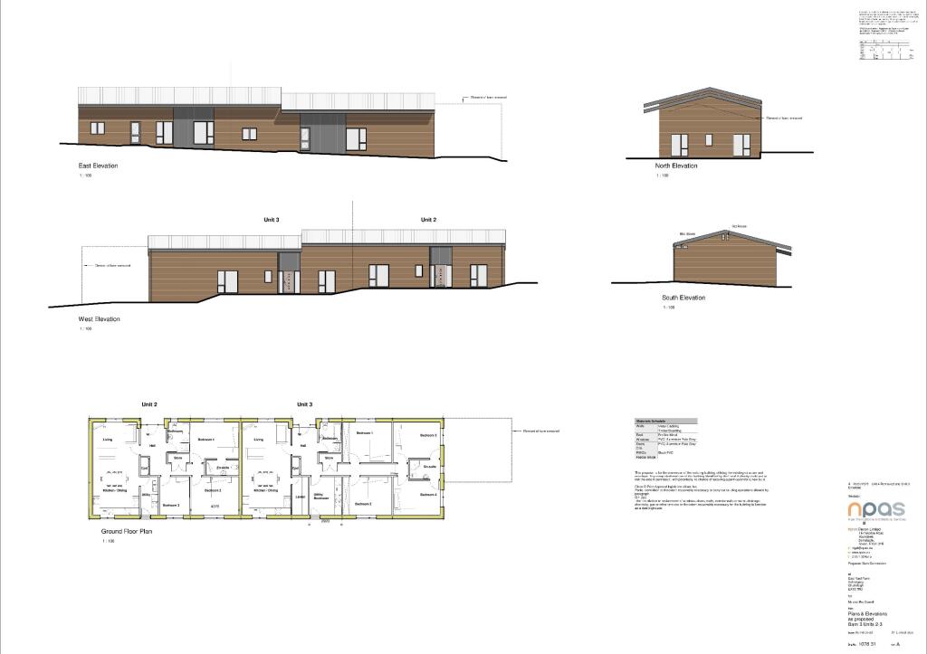
- Large barn (Class Q Consent granted in March 2023) with plans for a three-bedroom and a four-bedroom unit.
- Expansive plot size of approximately 4.49 acres, offering flexibility for more land.
- Stunning countryside views in a tranquil, rural setting close to Ashreigney village.
- Convenient access to local amenities, schools, and transport links.
**Potential Concerns:**
- Mains electricity, water, and private treatment plant required; connectivity to services is needed.
- Broadband speed is very slow in the area.
- New development plans will need to be pursued within a three-year timeframe.
Discover the immense potential of this exceptional development opportunity nestled within the scenic countryside at Eastyard Farm, Ashreigney. This substantial barn spans nearly 2,800 square feet, with approved plans to transform it into two residential properties, offering lucrative investment prospects or a chance to create your dream home surrounded by nature. The generous 4.49-acre plot provides ample outdoor space for family activities, gardening, or possible expansion, ensuring a future full of possibilities.
This peaceful setting is perfect for those seeking a rural lifestyle yet remains conveniently close to the charming village of Ashreigney, known for its community spirit and essential amenities. Families will appreciate the good local schools and the safety of this low-crime area. Whether you dream of rural farming, want a serene escape, or are looking for an investment with long-term potential, seize the opportunity to make this versatile property your own—properties like this won't last long!
Plot for sale in Barn B at Eastyard Farm, Ashreigney, EX18 — £225,000 • 1 bed • 1 bath • 2788 ft²
Land for sale in Land at Eastyard Farm, Ashreigney, EX18 — £245,000 • 1 bed • 1 bath
Land for sale in Atherington, Umberleigh, EX37 — £345,000 • 5 bed • 1 bath • 4121 ft²
5 bedroom detached house for sale in Atherington, Umberleigh, EX37 — £345,000 • 5 bed • 1 bath • 4121 ft²
Equestrian facility for sale in Chulmleigh, Devon, EX18 — £295,000 • 4 bed • 3 bath • 2775 ft²
Land for sale in Silverweir, High Bickington, Umberleigh, EX37 — £250,000 • 1 bed • 1 bath






















































































