**Standout Features:**
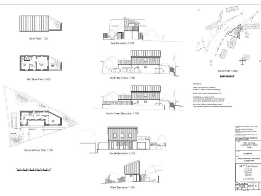
- ** Planning permission approved** for a detached house (ref: 22/00786/FU)
- **Size**: Approximately 0.06 acres; suitable for residential development
- **Location**: Desirable suburban area on Lower Wortley Road, Leeds
- **Accessibility**: Close to a variety of walkable amenities and schools with 'Good' Ofsted ratings
- **Tenure**: Freehold
Seize this rare opportunity to develop a unique residence on this conveniently located plot of land in Lower Wortley, Leeds. Offering approximately 0.06 acres, this predominantly flat site has planning permission in place for a detached dwelling, making it ideal for both first-time buyers looking to build their dream home and investors seeking a promising development project.
With good local amenities within walking distance and average crime rates, this area is attractive for families and professionals alike. The surrounding neighborhood exhibits a mix of vibrant residential properties and greenery, confirming its suburban charm. This land is an excellent canvas for your vision, promising both comfort and value. Don’t miss out on this exceptional chance to create your future in a sought-after location—act quickly, as properties like this are rare!
Land for sale in The Common, Dewsbury, WF12 — £90,000 • 1 bed • 1 bath
Land for sale in Leeds Road, Allerton Bywater, Castleford, WF10 — £300,000 • 1 bed • 1 bath • 19166 ft²
Land for sale in Wakefield, WF3 — £230,000 • 1 bed • 1 bath • 8407 ft²
Land for sale in Land at Bismarck Street, Leeds, LS11 6TN, LS11 — POA • 1 bed • 1 bath • 4356 ft²
Plot for sale in Land with planning - Bay Horse Lane, Leeds, LS17 — £550,000 • 2 bed • 2 bath • 1782 ft²
Land for sale in Wells Road, Dewsbury, WF12 — £200,000 • 1 bed • 1 bath • 2420 ft²














