Immediate rental income in a convenient central location for students and commuters.
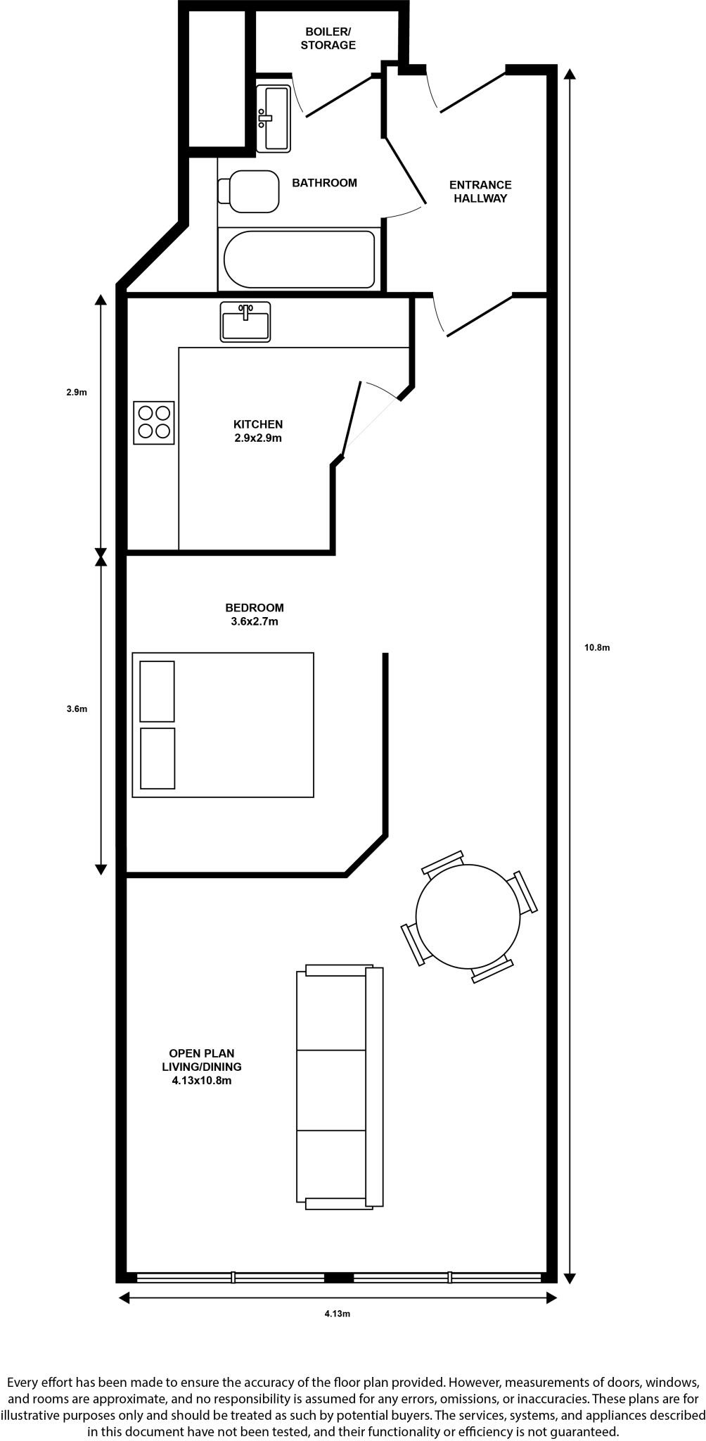
Circa 613 sq ft large studio with separate bed area
Second-floor apartment in Leeds city centre, excellent transport links
Tenant in situ at £975 pcm, likely to stay two more years
Leasehold with c.977 years remaining, low ground rent £250 pa
Service charge approx £2,994.44 per year (£748.61 quarterly)
Heating via electric room heaters; likely higher running costs
Located in a very high crime area — consider security implications
Converted 2002; EWS1 B2 — verify fire-safety and communal records
This spacious, second-floor studio in Park House Apartments offers a generous open-plan layout with a separate bed area — circa 613 sq ft — in the heart of Leeds city centre. It is well located for Leeds Train Station, universities, hospitals and city amenities, making it straightforward to let to students or professionals. A sitting tenant currently pays £975 pcm and intends to remain for around two more years, providing immediate rental income for an investor.
Practical details: the flat is leasehold with approximately 977 years remaining, service charge around £2,994.44 per year (£748.61 quarterly including water rates) and ground rent £250 per year. Heating is by electric room heaters; the building has double glazing but wall insulation is assumed absent. There is no flooding risk and broadband and mobile signal are reported strong.
Notable drawbacks are the building’s location in a very high crime area and reliance on electric heating and likely limited insulation, which can raise running costs and affect comfort. The property was converted from offices by Cala Homes in 2002 and has an EWS1 B2 status; prospective buyers should confirm fire-safety documentation and any building-wide works.
Overall this is a practical city-centre investment or owner-occupier purchase for someone who values location and rental income over low-running costs and who is comfortable with city-centre security considerations. Buyers should budget for service charges and verify communal safety and maintenance records before committing.
1 bedroom apartment for sale in Park House Apartments, Park Row, LS1 — £146,250 • 1 bed • 1 bath • 635 ft²
Studio apartment for sale in Britannia House, York Place, LS1 — £120,000 • 1 bed • 1 bath • 334 ft²
1 bedroom apartment for sale in The Headrow, Leeds City Centre, LS1 — £115,000 • 1 bed • 1 bath • 495 ft²
1 bedroom apartment for sale in St. Peters Street, Leeds, LS9 — £95,000 • 1 bed • 1 bath • 431 ft²
1 bedroom apartment for sale in Skyline, Leeds City Centre, LS9 — £123,000 • 1 bed • 1 bath • 441 ft²
1 bedroom flat for sale in Harewood Street, Leeds, West Yorkshire, LS2 — £115,000 • 1 bed • 1 bath • 444 ft²


























