BN3 7AH - 4 bed victorian family home in Poynter Road, BN3 7AH

View on Property Piper

4 bedroom semi-detached house for sale in Poynter Road, Hove, East Sussex, BN3

Summary - 27 POYNTER ROAD HOVE BN3 7AH

4 bed 2 bath Semi-Detached

Renovated four-bedroom Victorian house near Hove station with garden and period features.
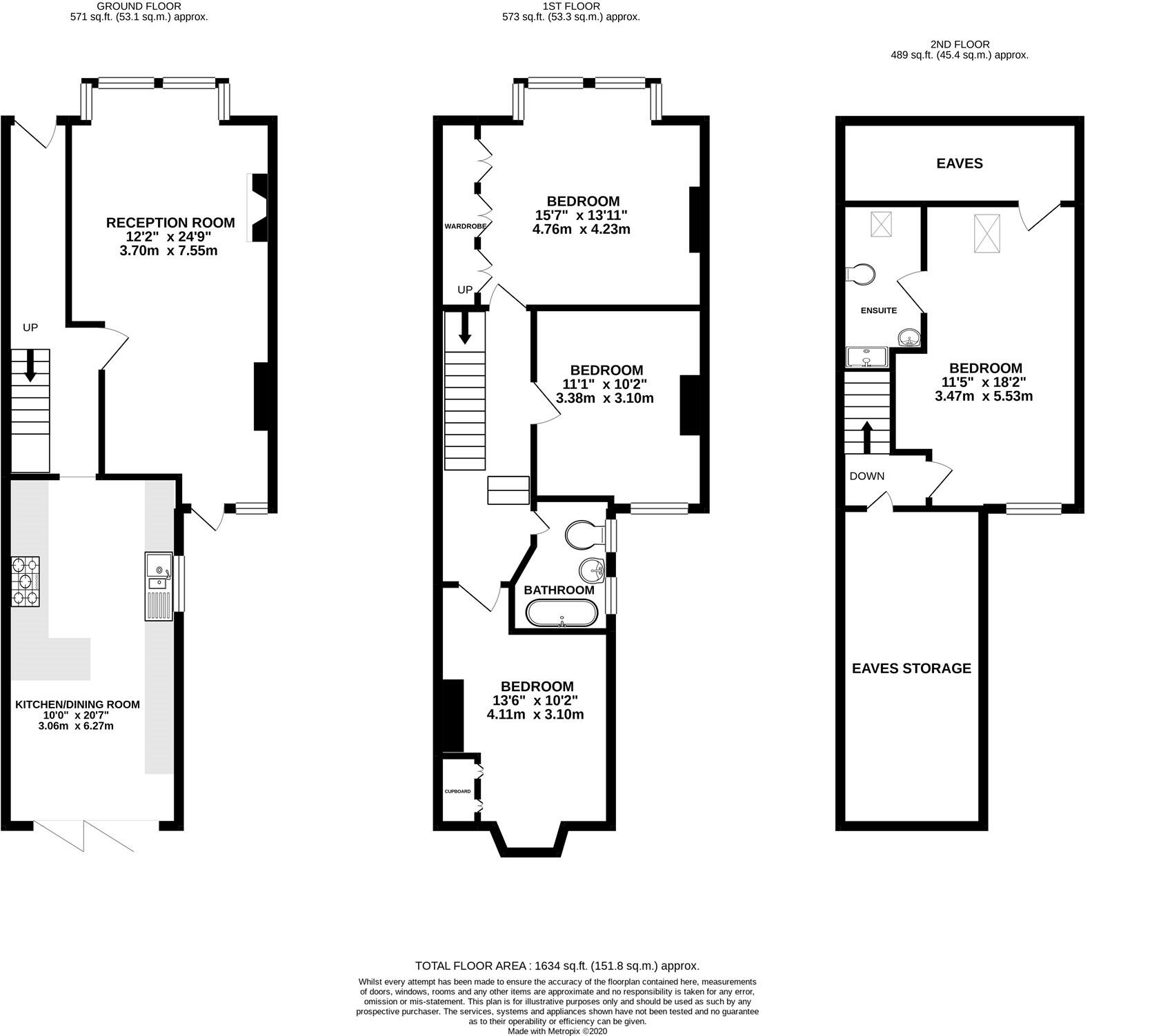
Four double bedrooms across three floors
This late-Victorian semi offers four double bedrooms across three floors, blending original character with recent upgrades. The through living/dining room features a bay window, fireplace and new wood floor; a modern shaker kitchen/diner with bi-fold doors opens onto a landscaped rear garden — good for indoor-outdoor family living. The top-floor principal bedroom has a renovated en-suite and generous eaves storage.

The house has been newly renovated throughout: refurbished bathrooms, new carpeting and contemporary fixtures create a clean, move-in-ready finish. At 1,634 sq ft and freehold tenure, the layout suits families needing multiple bedrooms and flexible living space close to schools, parks and Hove mainline station (approx. quarter-mile).

Practical points to note: the EPC is D and cavity walls are assumed uninsulated, so heating costs could be higher than newer-build homes. The plot is small and on-street parking falls in Zone R. Local crime is reported as above average — worth checking independent statistics if safety is a priority.

Overall this is a well-presented period family home in a sought-after Artist’s Corner location, offering substantial accommodation and good commuter links, with some energy-efficiency and parking compromises to consider.

Property Details

Image Descriptions

Floorplan Description

Rooms

Textual Property Features

Target Audience

AI Tags

Detected Visual Features

EPC Details

Nearby Schools

Nearest Bars And Restaurants

,,,,}

Nearest General Shops

,,}

Nearest Grocery shops

,,}

Nearest Supermarkets

,,}

Nearest Religious buildings

,,}

Nearest Medical buildings

,,,}

Nearest Leisure Facilities

,,,,}

Nearest Tourist attractions

,,}

Nearest Train stations

,,,,}

Nearest Bus stations and stops

,,,,}

Nearest Hotels

,,}

Tags

Local Market Stats

AirBnB Data

Similar Properties

Meta

High Res Images

Compatible Images

Low res Images

Thumbnails

Raw Images

High Res Floorplan Images

Compatible Floorplan Images

Low res Floorplan Images

FloorplanImages Thumbnail

Raw Floorplan Images