Quiet cul-de-sac home with large garden and open field views.
Four bedrooms across three floors, including spacious second-floor double
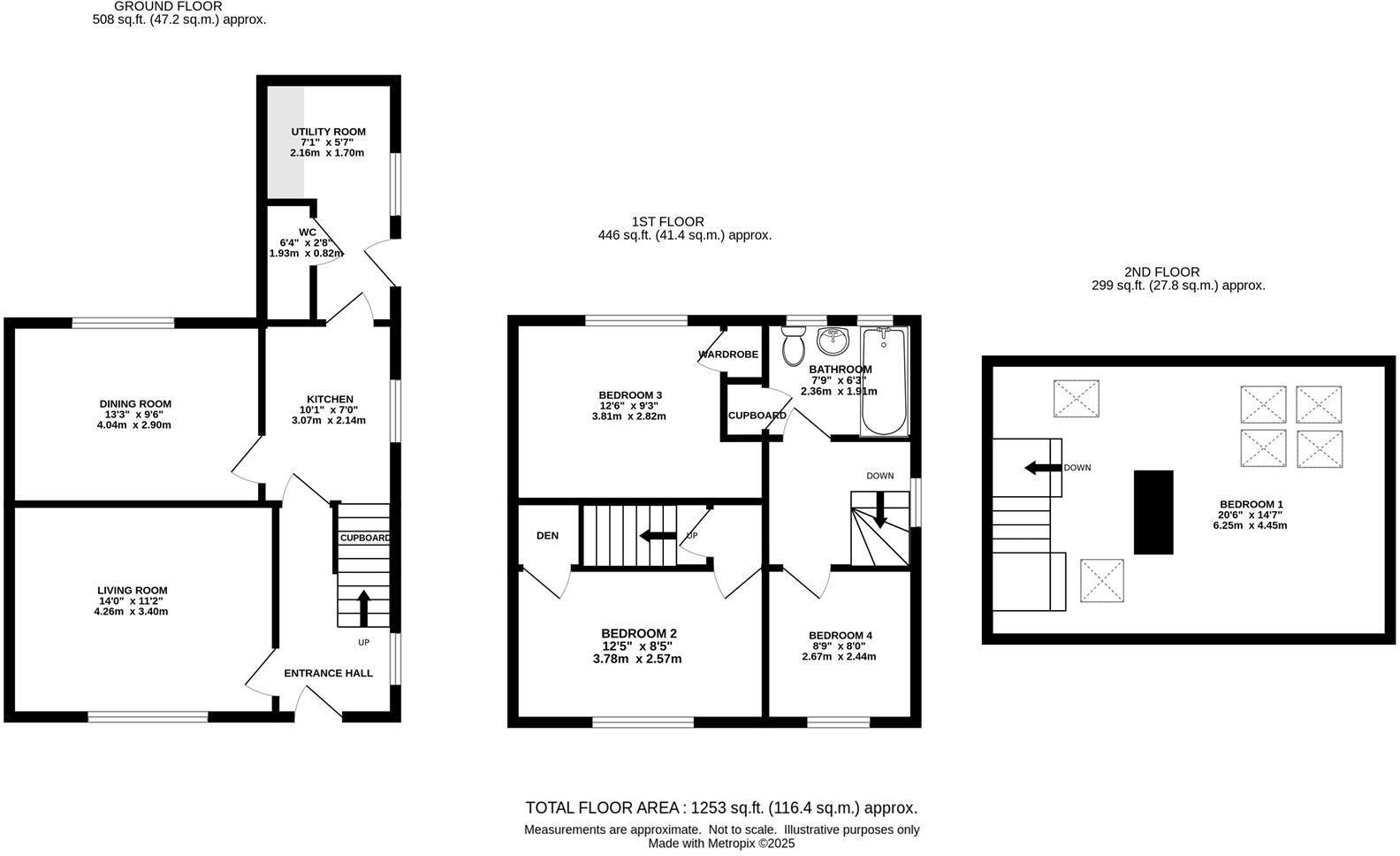
Set on a quiet cul-de-sac in attractive Tockwith, this semi‑detached 1930s home provides flexible family accommodation across three floors. Four bedrooms include a large second‑floor principal with Velux windows and far‑reaching countryside views, while the ground floor offers a living room with log burning stove, separate dining room, kitchen and handy utility/WC.
Outside, the house sits on a decent plot with a private driveway for two cars, a generous rear garden backing onto open fields and direct access to local walking routes. Practical features include mains gas central heating, double glazing throughout (except a small kitchen window) and a freehold tenure with affordable council tax.
The property is well placed between York and Harrogate and near good local schools, making it suitable for growing families seeking village life and easy commuter links. The house presents scope for updating and personalization — sensible improvements to the kitchen and cosmetic modernisation would add immediate value.
Buyers should note there is a single family bathroom serving four bedrooms and the double glazing installation date is unknown. Overall this is a comfortable, characterful family home offering space, privacy and excellent external views, requiring modest modernisation rather than major structural work.
4 bedroom detached house for sale in Kendal Gardens, Tockwith, York, YO26 7QR, YO26 — £475,000 • 4 bed • 2 bath • 2016 ft²
4 bedroom detached house for sale in Lilburne, Kendal Gardens, Tockwith, York, North Yorkshire, YO26 — £475,000 • 4 bed • 2 bath • 1408 ft²
3 bedroom detached house for sale in Prince Rupert Drive, Tockwith, York, North Yorkshire, YO26 — £400,000 • 3 bed • 2 bath • 1236 ft²
3 bedroom semi-detached house for sale in Prince Rupert Drive, Tockwith, York, North Yorkshire, YO26 — £300,000 • 3 bed • 1 bath • 1022 ft²
3 bedroom detached house for sale in White Syke House, Kendal Lane, Tockwith YO26 7QN, YO26 — £600,000 • 3 bed • 3 bath • 1734 ft²
3 bedroom semi-detached house for sale in Tockwith, Bunting Drive, YO26 — £274,950 • 3 bed • 2 bath • 970 ft²










































































