Practical three-bed home with garden and off-street parking for first-time buyers.
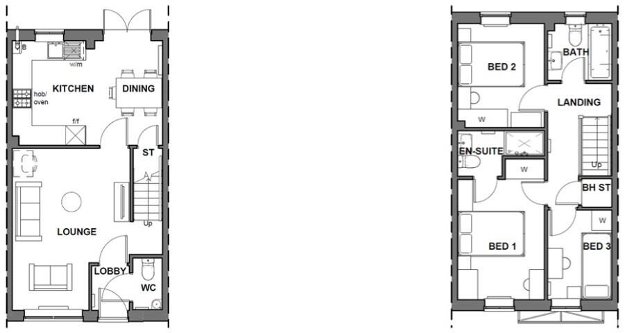
Three bedrooms including master with en‑suite
Generous kitchen‑diner with patio doors to rear garden
Double‑width driveway for two cars side‑by‑side
Freehold property with mains gas central heating
Approximately 829 sq ft; average overall size
Small plot — limited garden/extension potential
Local schools: several Good, one Inadequate, one Requires Improvement
No flood risk; broadband and mobile signal excellent
This three-bedroom semi-detached home on Primrose Road offers a practical, modern starter home or buy-to-let opportunity. The layout centres on a generous kitchen-diner with patio doors that open to a good-sized rear garden — ideal for summer entertaining or family outdoor space. A double-width driveway provides easy off-street parking for two cars.
Internally the property is arranged over two floors with a living room, ground-floor cloakroom, master bedroom with en‑suite, two further bedrooms and a family bathroom. The house is freehold, mains gas heated via boiler and radiators, and sits at an average overall size (approximately 829 sq ft) suited to first-time buyers or small families wanting low-maintenance living in a pleasant small-town setting.
Location is a key strength: close to local shops, Sainsbury’s, leisure facilities, playgrounds, and regular bus and road links. Broadband speeds and mobile signal are excellent, and there’s no flood risk. Council tax is described as affordable and the surrounding area is generally affluent.
Notable considerations: the plot is relatively small and the property is modest in size, so storage and expansion potential are limited. Local school performance is mixed — several primary schools are rated Good, but one nearby school is Inadequate and the secondary provision includes Requires Improvement. Crime is average. These are practical factors for buyers prioritising schooling or larger gardens.
3 bedroom semi-detached house for sale in Stone Cross Way, Longridge, Preston, PR3 — £239,950 • 3 bed • 2 bath • 828 ft²
3 bedroom semi-detached house for sale in Bowland Meadow, chipping Lane,
Longridge,
PRESTON, LANCASHIRE,
PR3 2NA, PR3 — £250,000 • 3 bed • 1 bath • 697 ft²
2 bedroom semi-detached house for sale in Springs Road, Longridge, Lancashire, PR3 — £225,000 • 2 bed • 2 bath • 1071 ft²
3 bedroom end of terrace house for sale in Inglewhite Road,
Longridge,
PR3 — £245,000 • 3 bed • 1 bath • 700 ft²
3 bedroom semi-detached house for sale in Longridge, Preston, PR3 3DB, PR3 — £86,000 • 3 bed • 1 bath • 799 ft²
4 bedroom detached house for sale in Mosses Farm Road, Longridge, Lancashire, PR3 — £425,000 • 4 bed • 2 bath • 1464 ft²


















































































































