Large gardens and studio outbuilding near Earls Court station.
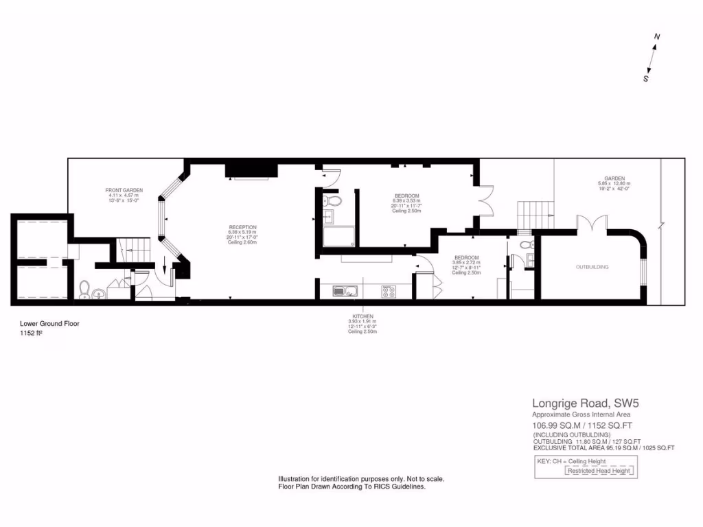
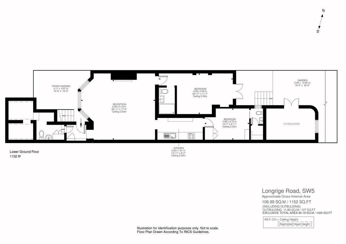
Approx. 1,152 sq ft two-bedroom flat with two en-suites
Set on a quiet Longridge Road in prime Earls Court, this spacious 2-bedroom flat (approx. 1,152 sq ft) blends period charm and contemporary fittings. Two large double bedrooms both have en-suite facilities, and original fireplaces add character to the principal rooms. The living space opens to a bay-windowed dining area, while a modern galley kitchen and a converted vault utility room with extra WC maximise practicality.
Outdoor space is a standout for central London: private front and rear gardens plus an additional studio/outbuilding offer rare external retreat and flexible use for a home office or storage. The property benefits from double glazing (installed post-2002), mains gas central heating and a share of freehold, giving more long-term control than typical leasehold flats.
Important points to note: the development carries an average service charge of around £4,000 per year and council tax is described as expensive. The building’s solid-brick walls are likely uninsulated and the wider area records high crime and pronounced deprivation indicators; purchasers should factor potential security and retrofit costs into their plans.
Located within walking distance of Earls Court Station, this home suits buyers seeking roomy, characterful accommodation with outside space in a well-connected central location. It will particularly appeal to first-time buyers looking for long-term potential, or investors who value strong rental demand in SW5—provided the service charges and local issues are accepted and budgeted for.
2 bedroom flat for sale in Longridge Road, Earls Court, London, SW5 — £750,000 • 2 bed • 2 bath • 652 ft²
2 bedroom flat for sale in Longridge Road, Earls Court, SW5 — £750,000 • 2 bed • 2 bath • 709 ft²
2 bedroom flat for sale in Earl's Court Road, Earl's Court, SW5 — £1,100,000 • 2 bed • 2 bath • 850 ft²
2 bedroom flat for sale in Longridge Road, Earl's Court, SW5 — £850,000 • 2 bed • 2 bath • 915 ft²
2 bedroom flat for sale in Earls Court Square, Earls Court, London, SW5 — £1,100,000 • 2 bed • 2 bath • 988 ft²
2 bedroom flat for sale in Earls Court Square, Earls Court, SW5 — £1,895,000 • 2 bed • 2 bath • 1184 ft²














































































