Renovated family home with countryside calm and versatile living spaces.
- Outstanding Chiltern Valley views from the rear
- Recently refurbished and extended accommodation throughout
- Spacious kitchen breakfast/dining room with French doors
- Large utility/boot room with exterior stable door
- Timber garden cabin and powered shed, ideal office or studio
- Gravel driveway parking for four cars
- Heating by LPG (not mains gas) — consider running costs
- Very slow broadband and expensive council tax
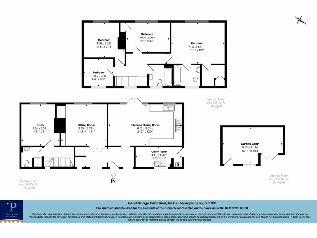
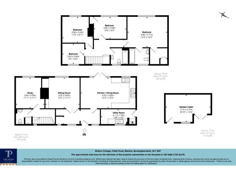
Set on the edge of open countryside with outstanding Chiltern Valley views, this renovated 4-bedroom semi-detached cottage blends period charm with contemporary living. The cleverly extended ground floor provides flexible family space: a light-filled kitchen breakfast/dining room with French doors to the garden, two reception rooms and a large utility/boot room that keeps daily clutter out of sight.
Upstairs offers four well-proportioned bedrooms, including a principal suite with walk-in wardrobe and stylish en suite, plus a further family bathroom. The rear garden is thoughtfully landscaped with a patio for entertaining, mature borders, and a timber cabin with power — ideal as a home office or summerhouse. Off-street gravel parking accommodates four cars.
Practical benefits include recently installed solar panels that reduce running costs, double glazing and a filled cavity wall. Notable points to consider: the property uses LPG for heating (not mains gas) and council tax is described as expensive. Broadband speeds are very slow, which may affect remote working without alternative connectivity solutions.
This home sits in a highly sought semi-rural hamlet between Marlow and Frieth, with good local schools and easy road access to Marlow town centre, the A404 and nearby leisure amenities. It will suit a family seeking tranquil countryside living within convenient reach of town facilities and reputable schools.
4 bedroom cottage for sale in Nixey Cottages Frieth Henley-on-Thames, Oxfordshire, RG9 6PJ, RG9 — £875,000 • 4 bed • 2 bath • 1682 ft²
3 bedroom house for sale in Innings Road, Frieth, RG9 — £750,000 • 3 bed • 2 bath • 1200 ft²
3 bedroom detached house for sale in Frieth Henley-on-Thames, Oxfordshire, RG9 6PJ, RG9 — £850,000 • 3 bed • 2 bath • 1496 ft²
3 bedroom semi-detached house for sale in Seymour Court Lane, Marlow, Buckinghamshire, SL7 — £800,000 • 3 bed • 1 bath • 971 ft²
5 bedroom detached house for sale in Moor End, Frieth, Henley-on-Thames, Oxfordshire, RG9 — £1,695,000 • 5 bed • 4 bath • 3101 ft²
4 bedroom detached house for sale in Church Lane, Cadmore End, High Wycombe, Buckinghamshire, HP14 — £1,250,000 • 4 bed • 3 bath • 2084 ft²










































































































































































































































































































































































































































































