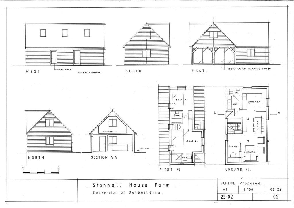
**Key Features:**
- **Property Type:** Barn Conversion with full planning permission
- **Size:** 1399 sq ft with decent plot size
- **Bedrooms:** 2 Bedrooms (planned)
- **Parking:** Off-street parking available
- **Location:** Sought-after rural setting near green belt countryside
- **Current Condition:** Existing outbuilding requires connection to mains services; currently uses a small septic tank
- **Planning Reference:** Lichfield District Council - 23/00849/COU
Discover this exceptional development opportunity in the picturesque hamlet of Lower Stonnall, where an existing outbuilding awaits transformation into a charming 2-bedroom detached home. With full planning permission granted, the spacious 130 sq.m design features open living spaces and a generous garden, all nestled in a tranquil countryside setting just one mile from local shops and a primary school.
Enjoy a safe and affluent community with access to excellent leisure facilities, and a variety of good schools nearby, creating an ideal environment for families or investors seeking rental potential. While connections for mains services will need installation, you can personalize the home by choosing sustainable energy solutions. This unique opportunity in a desirable location won't last long—envision your dream home and capitalize on the tranquil rural lifestyle today!
4 bedroom barn conversion for sale in Lot 2 Barn for Conversion, Lysways Lane, Longdon Green, Lichfield, WS15 — £250,000 • 4 bed • 3 bath
4 bedroom detached house for sale in Plot 1, Edial House Farm, Lichfield Road, Edial, Burntwood, WS7 — £1,195,000 • 4 bed • 3 bath • 2922 ft²
4 bedroom barn conversion for sale in Fisherwick Wood Lane, Fisherwick Wood, Lichfield, WS13 — £995,000 • 4 bed • 2 bath • 4000 ft²
3 bedroom barn conversion for sale in Pinfold Lane, Aldridge, Walsall, WS9 — £500,000 • 3 bed • 2 bath • 1526 ft²
2 bedroom barn conversion for sale in Mill Lane, Little Aston, WS9 — £499,000 • 2 bed • 2 bath • 1362 ft²
3 bedroom barn conversion for sale in Lysways Lane, Hanch, Lichfield, WS13 — £625,000 • 3 bed • 2 bath • 1755 ft²


















































