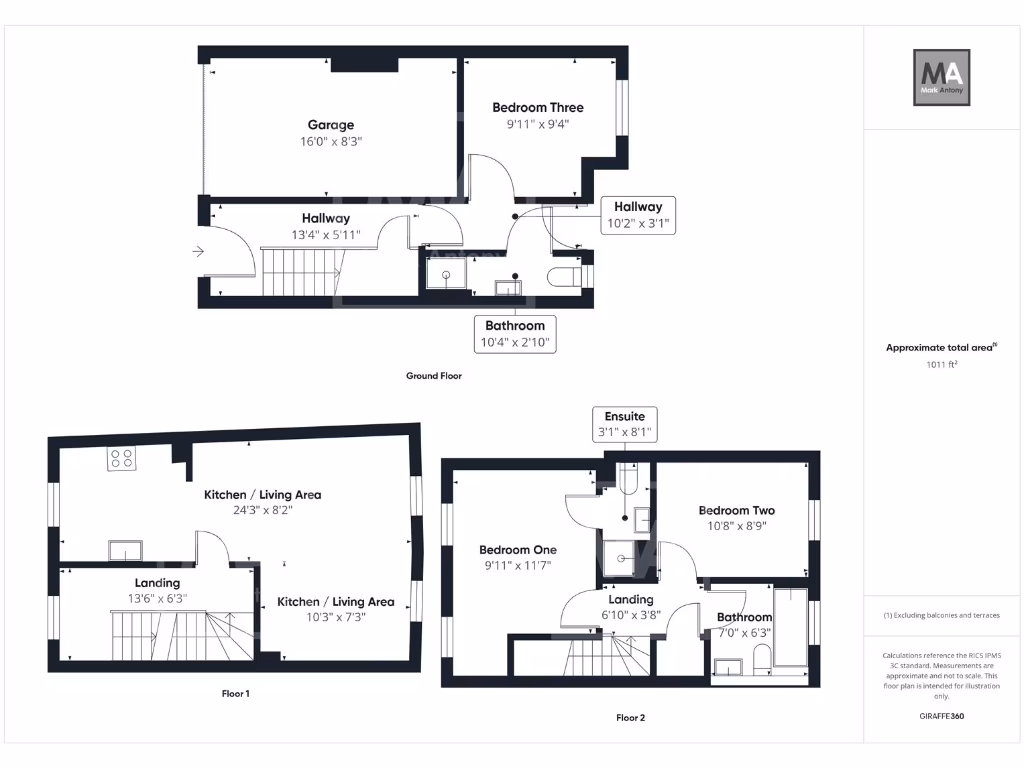
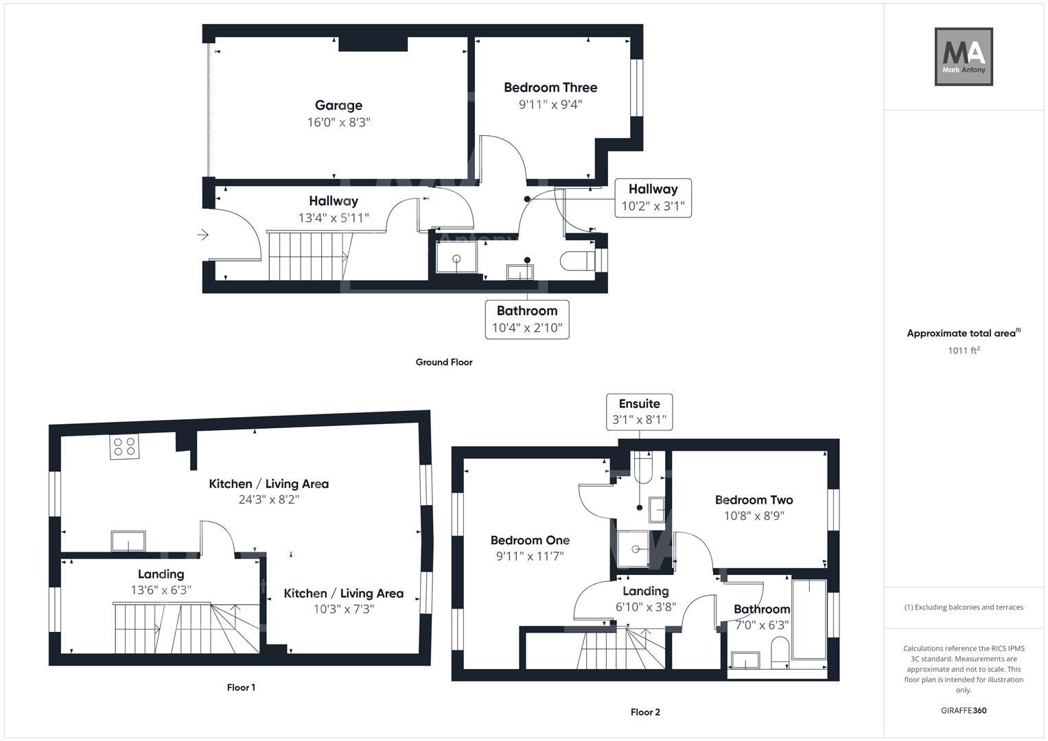
Bright, practical home with garage and driveway in convenient location.
Chain free three-bedroom mid-terrace townhouse, ideal for first-time buyers
A well-presented three-storey townhouse offering bright, flexible living across three floors — ideal for first-time buyers or young families. The open-plan first-floor living space and private rear garden create a comfortable, low-maintenance home for everyday life and weekend entertaining.
Practical conveniences include an integral garage, private driveway parking and good broadband and mobile connectivity. The property is chain free with a very long lease (981 years) and modest running costs: below-average service charge and an affordable council tax band.
Set close to Latchford village amenities, local schools and the Trans Pennine Trail, the house benefits from quick road links (M6/M56) while sitting in a generally quiet neighbourhood with very low recorded crime. Buyers should note the property is leasehold (small ground rent applies) and sits in an area with higher-than-average deprivation statistics — factors that may affect future resale appeal. Overall, this is a practical, well-located home that suits first-time purchasers seeking straightforward move-in condition and commuter-friendly links.
3 bedroom semi-detached house for sale in Powder Mill Road, Warrington, WA4 — £280,000 • 3 bed • 2 bath • 925 ft²
3 bedroom terraced house for sale in Powder Mill Road, Warrington, WA4 — £254,950 • 3 bed • 3 bath • 873 ft²
3 bedroom terraced house for sale in Minerva Close, Warrington, WA4 — £190,000 • 3 bed • 1 bath • 1115 ft²
3 bedroom terraced house for sale in Oldham Street, Latchford, Warrington, WA4 — £160,000 • 3 bed • 1 bath • 862 ft²
3 bedroom semi-detached house for sale in Minerva Close, Warrington, WA4 — £170,000 • 3 bed • 1 bath • 926 ft²
3 bedroom town house for sale in Savannah Place, Great Sankey, Warrington, WA5 — £285,000 • 3 bed • 2 bath • 950 ft²


































































