Income-producing property with garage and tenants in place.
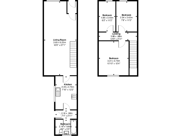
Three-bedroom mid-terraced house with lounge and kitchen
A practical buy-to-let in Grimsby with tenants in situ and immediate rental income. The mid-terraced, three-bedroom layout includes a lounge, kitchen and three-piece bathroom, plus private rear parking and a detached single garage with lighting and power. The purchase price and current rent produce a strong gross return for investors — roughly a 9.7% gross yield based on the advertised figures.
The home is compact and largely average in size, set on a small plot with a low-maintenance rear garden and small gated front yard. It sits on a residential street close to local amenities and several well-regarded primary and secondary schools, which supports steady tenant demand.
Notable considerations are that the area is classified as very deprived with high local crime and the property requires modernisation throughout. There is a shared alleyway with the neighbouring property and a Buyers Premium applies to the sale. Tenants currently occupy the property and intend to remain, so any purchaser should factor in a tenancy transfer or notice period where applicable.
This property will suit investors or developers seeking an income-producing asset with short-term cashflow and medium-term upside from refurbishment. The included garage, rear parking and tenant stability reduce immediate management complexity, while a modest renovation could increase rental value and capital potential.
3 bedroom terraced house for sale in Peaksfield Avenue, Grimsby, Lincolnshire, DN32 — £75,000 • 3 bed • 1 bath • 859 ft²
3 bedroom terraced house for sale in 7 Stokesley Walk, Grimsby, Lincolnshire, DN37 — £95,000 • 3 bed • 1 bath • 850 ft²
3 bedroom semi-detached house for sale in Second Avenue, Grimsby, Lincolnshire, DN33 — £95,000 • 3 bed • 2 bath • 753 ft²
3 bedroom terraced house for sale in Carnforth Crescent, Grimsby, Lincolnshire, DN34 — £95,000 • 3 bed • 2 bath • 807 ft²
3 bedroom terraced house for sale in Yarborough Road, Grimsby, DN34 — £70,000 • 3 bed • 1 bath • 969 ft²
2 bedroom terraced house for sale in Fairmont Road, Grimsby, DN32 — £90,000 • 2 bed • 1 bath • 861 ft²


































































































