Income-producing 3-bed terrace with strong gross yield — investors only.
- Three bedrooms, mid-terraced freehold property
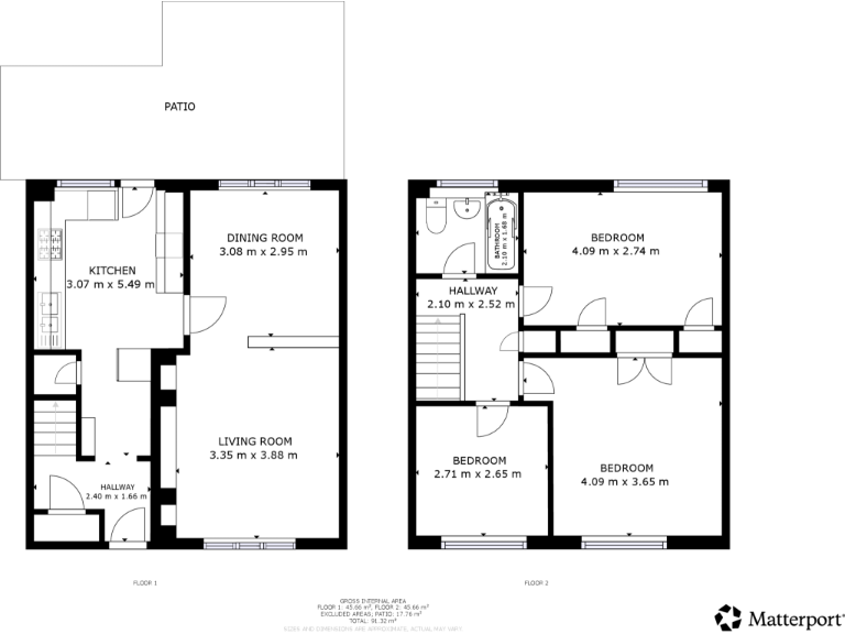
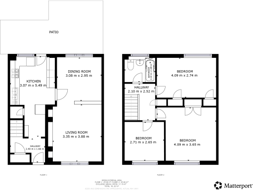
A three-bedroom mid-terrace offered freehold and currently let to long-term tenants, this property sits in a tightly held Grimsby street and is presented primarily as a buy-to-let opportunity. The property produces an annual gross rent of £8,700 against a guide price of £95,000, giving an approximate gross yield of about 9.2% before costs — attractive to investors seeking immediate income.
Externally the house is a mid-20th-century terraced dwelling with pebble-dash finish, small front and rear gardens and on-street parking. Internals are described as average-sized (circa 850 sq ft) with modern laminate flooring in places but decoration and finishes will need updating in parts. Broadband speeds are reported as fast and the property is close to local amenities and several schools rated Good, supporting tenant demand.
Material negatives are clear: the area records high crime and very high deprivation, and the property is noted as having a high flooding risk. The exterior and gardens need basic maintenance and the marketing pack lacks internal photos, EPC and full tenancy documentation — these should be obtained before purchase. The current tenants intend to remain, so purchasers should expect an income-producing sale with limited vacant-possession flexibility.
This is a pragmatic investment pick for buy-to-let portfolios or local developers who can manage the location risks and oversee light refurbishment. Seek the Let Property Pack, tenancy agreement, EPC and a flood-insurance quote early in due diligence to confirm running costs and longer-term capital prospects.
2 bedroom terraced house for sale in Fairmont Road, Grimsby, DN32 — £90,000 • 2 bed • 1 bath • 861 ft²
3 bedroom end of terrace house for sale in Crowland Avenue, Grimsby, DN34 — £120,000 • 3 bed • 2 bath • 1610 ft²
3 bedroom terraced house for sale in Peaksfield Avenue, Grimsby, Lincolnshire, DN32 — £75,000 • 3 bed • 1 bath • 859 ft²
3 bedroom terraced house for sale in Yarborough Road, Grimsby, DN34 — £70,000 • 3 bed • 1 bath • 969 ft²
4 bedroom terraced house for sale in Mendip Avenue, Grimsby, DN33 — £125,000 • 4 bed • 2 bath • 872 ft²
3 bedroom terraced house for sale in Daubney Street, Cleethorpes, DN35 — £90,000 • 3 bed • 1 bath • 1001 ft²


























































































