Bright, amenity-rich apartment ideal for first-time buyers.
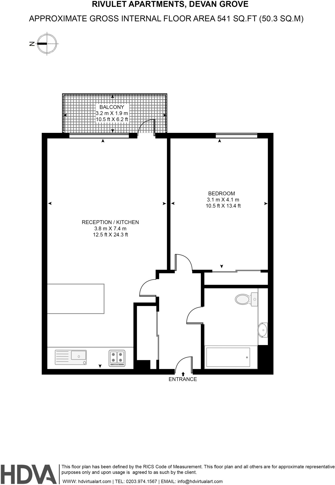
East-facing private balcony with morning sun
Light-filled and practical, this one-bedroom apartment in Rivulet Apartments offers contemporary city living with premium on-site amenities. The open-plan 541 sq ft layout opens onto an east-facing balcony that captures morning sun and overlooks landscaped communal space, ideal for relaxed breakfasts or a quiet start to the day.
Residents benefit from a 24-hour concierge, private gym and indoor swimming pool — conveniences that suit busy professionals and first-time buyers seeking a low-maintenance lifestyle. The property has a long lease (287 years), double glazing and community heating, simplifying running costs and upkeep.
Buyers should note the property is leasehold with an annual service charge of £3,762 and ground rent of £250, which affect ongoing costs. The wider neighbourhood is classified as very deprived despite excellent transport links, low local crime, fast broadband and strong mobile signal; weigh local affordability and rental demand if purchasing as an investment.
Overall this apartment suits first-time purchasers or investors after a modern, well-connected home with concierge-led amenities and long-term lease security, provided the service charge and local area factors fit your budget and plans.
1 bedroom flat for sale in Residence Tower, N4 — £395,000 • 1 bed • 1 bath • 467 ft²
1 bedroom flat for sale in Sandpiper Building, N4 — £460,000 • 1 bed • 1 bath • 5533 ft²
1 bedroom flat for sale in Seven Sisters Road, London, N4 — £375,000 • 1 bed • 1 bath • 491 ft²
2 bedroom apartment for sale in Devan Grove, London, N4 — £735,000 • 2 bed • 2 bath • 763 ft²
2 bedroom apartment for sale in City View Apartments, Devan Grove, N4 — £675,000 • 2 bed • 2 bath • 780 ft²
2 bedroom apartment for sale in Skyline Apartments, Devan Grove, N4 — £750,000 • 2 bed • 2 bath • 840 ft²






























































