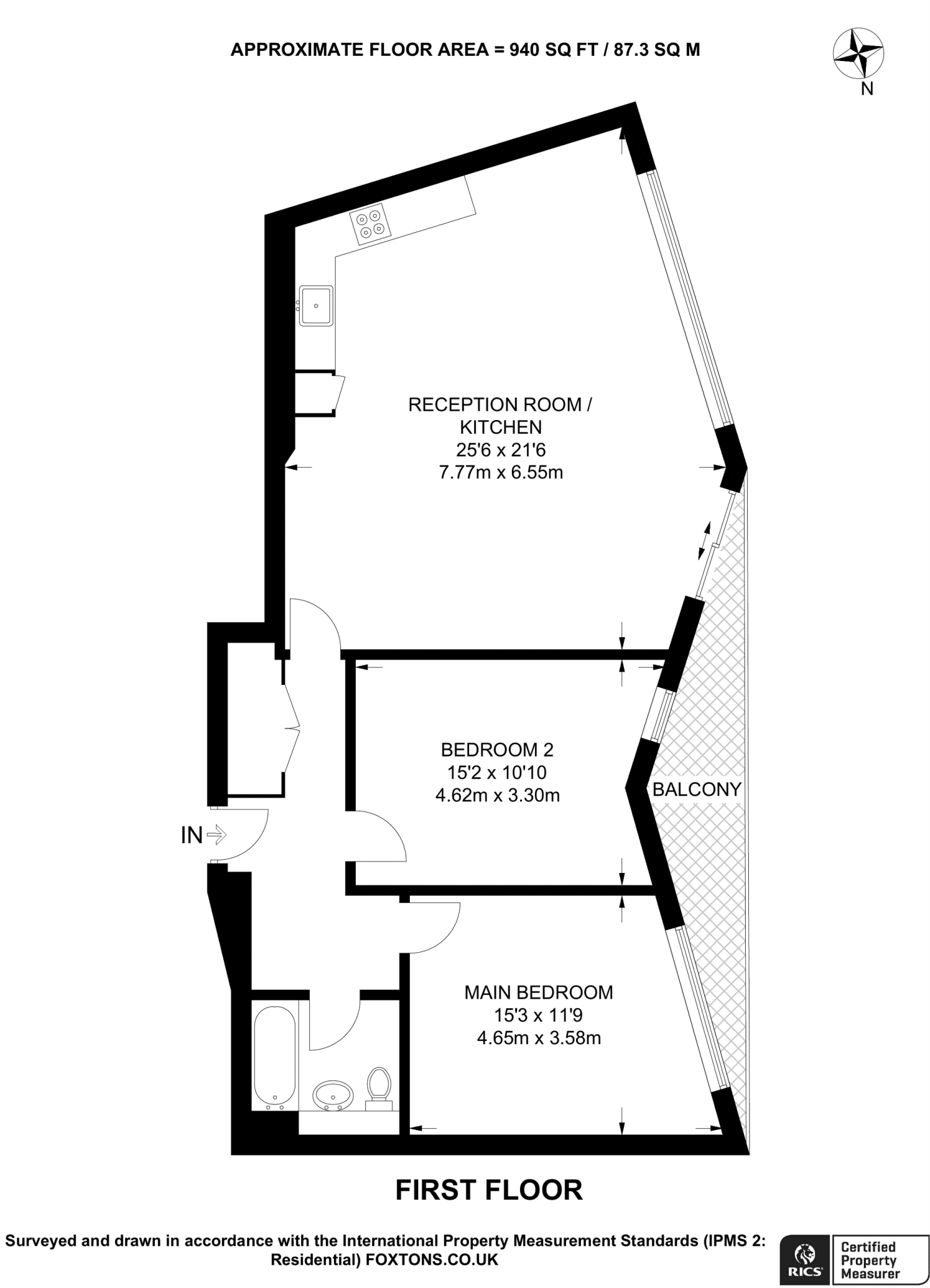
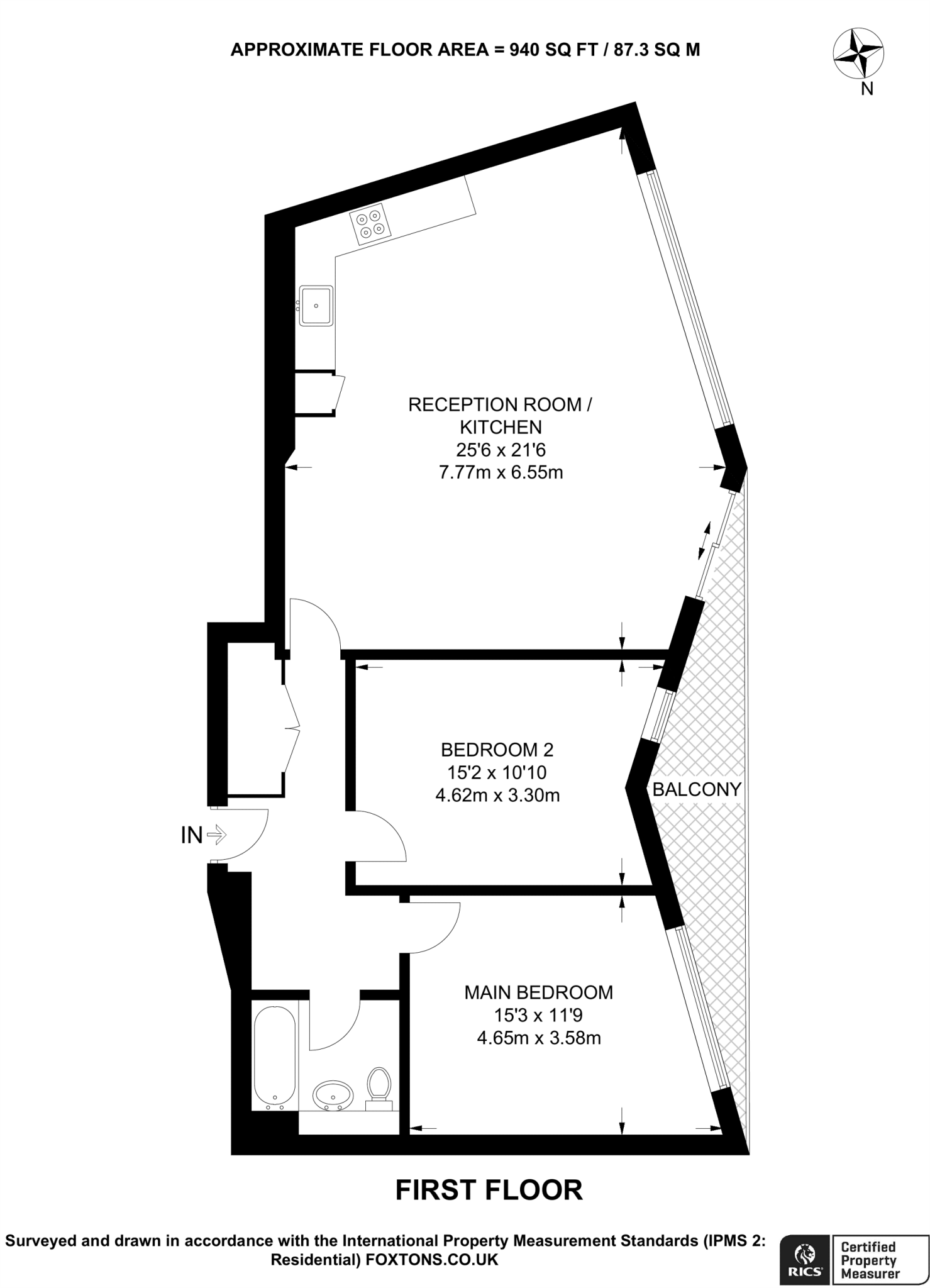
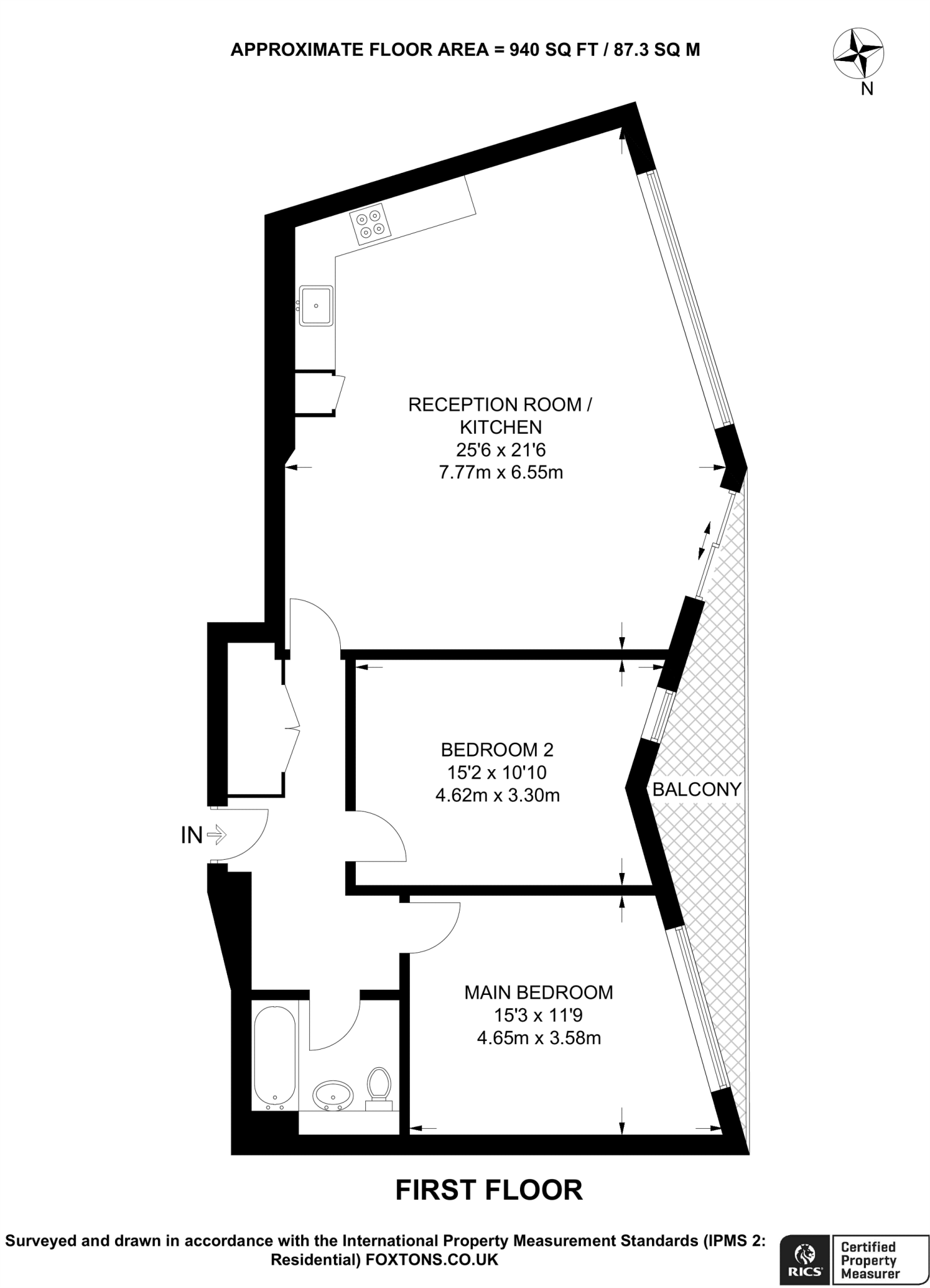
Large first-floor apartment with balcony and strong transport links.
Expansive open-plan reception and modern fitted kitchen
Private balcony providing usable outdoor space
Two generously sized double bedrooms
Large overall size — approximately 940 sq ft
24-hour concierge included for added security
Leasehold tenure — check remaining term and service charges
Electric room heaters as main heating — potentially higher bills
Located in a multicultural, student-heavy area; above-average crime rates
Set within a modern development on Steedman Street, this spacious first-floor flat offers generous two-bedroom living ideal for first-time buyers seeking space and transport convenience. The open-plan reception and contemporary kitchen create a flexible social hub, while a private balcony brings outdoor space to city living.
At about 940 sq ft, both bedrooms are double-sized and the bathroom is sleek and modern. The building includes 24-hour concierge service, adding security and convenience in a busy central location moments from Elephant and Castle transport links and local amenities.
Buyers should note the property is leasehold and uses electric room heaters as the main heating source, which can mean higher running costs compared with gas heating. The immediate area is a multicultural, inner-city neighbourhood with above-average crime rates and a significant student population, which may bring noise and activity at times.
This flat will suit buyers prioritising space, transport links and low-maintenance modern living who are comfortable with leasehold ownership and inner-city surroundings. There is clear potential to personalise the finish and layout for long-term comfort or rental appeal.
2 bedroom flat for sale in Angel Lane, Elephant and Castle, LONDON, SE17 — £585,000 • 2 bed • 2 bath • 815 ft²
2 bedroom flat for sale in Steedman Street, Elephant and Castle, London, SE17 — £500,000 • 2 bed • 1 bath • 732 ft²
2 bedroom flat for sale in Churchyard Row, Elephant and Castle, London, SE11 — £600,000 • 2 bed • 1 bath • 757 ft²
2 bedroom flat for sale in Steedman Street, Elephant and Castle, London, SE17 — £500,000 • 2 bed • 1 bath • 912 ft²
2 bedroom flat for sale in Steedman Street, Elephant and Castle, SE17 — £550,000 • 2 bed • 1 bath • 720 ft²
2 bedroom flat for sale in Amelia Street, Elephant and Castle, London, SE17 — £550,000 • 2 bed • 2 bath • 782 ft²


















































































































































































