Established 14-room guest house by Pavilion Gardens — strong turnover and conversion potential.
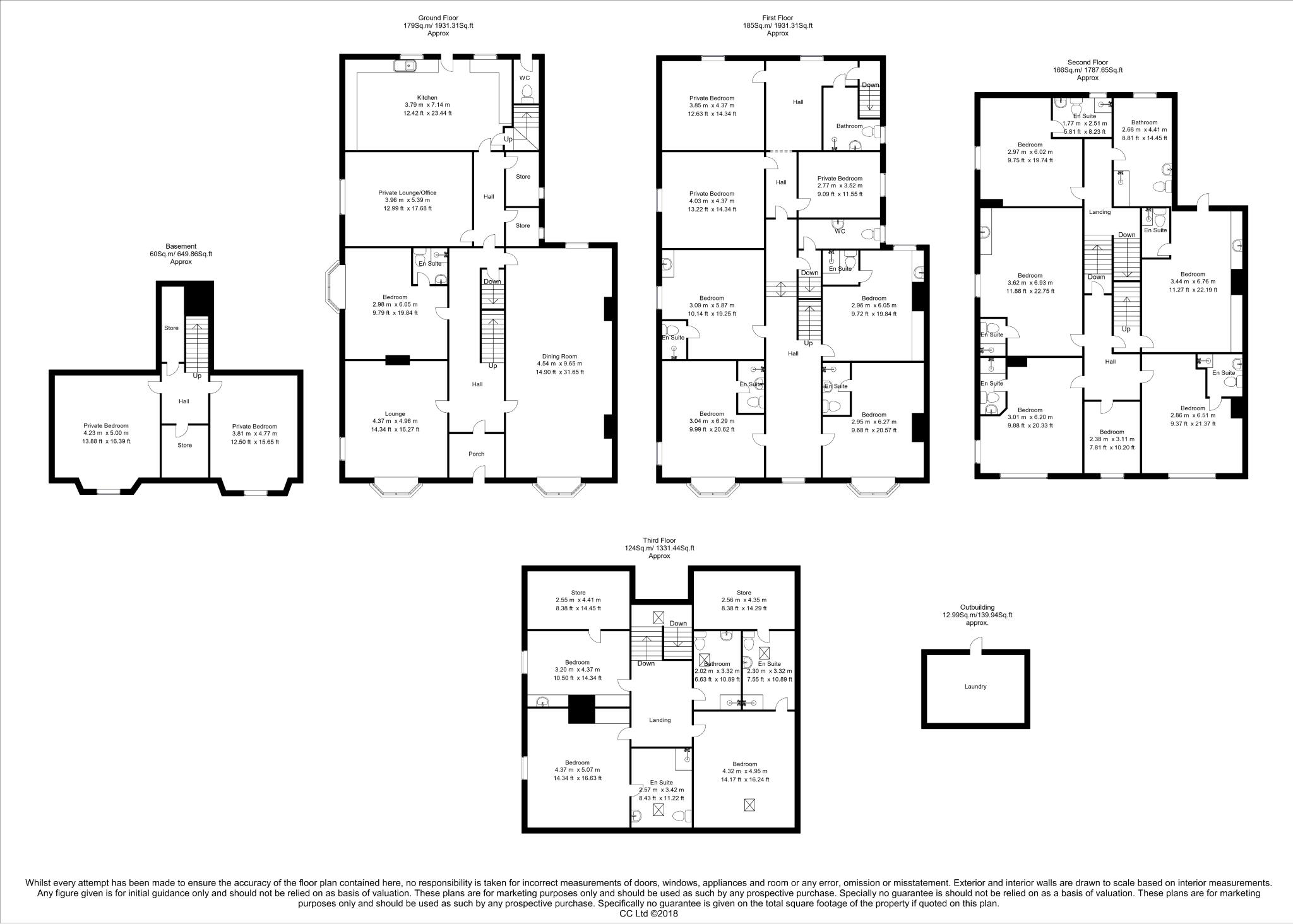
Grade II Listed Victorian guest house, built 1871
An established, high-performing guest house located on Broad Walk overlooking Buxton’s Pavilion Gardens. Roseleigh is a Grade II Listed Victorian building (1871) with 14 letting bedrooms—twelve en suite—and five-bedroom owner’s accommodation. The business produces strong net sales (circa £280k–£285k p.a.) and a reported adjusted net profit around £100k for the year to April 2025. Energy Rating C; AA 4 Star Gold and long-listed in the Good Hotel Guide.
This represents a clear opportunity for an investor or operator to build on an existing reputation and footfall from Buxton and the Peak District. The substantial footprint (approx. 7,314 sq ft) and large plot include parking for ten cars and scope to convert the private five-bedroom accommodation into additional letting rooms, or to expand food services beyond breakfast to capture higher average spend.
Material considerations are straightforward and important: the property is Grade II Listed, so alterations will require listed building consent and may restrict modernisation or expansion. The stone walls are assumed to be uninsulated, and heating is provided via room heaters and mains gas, so energy-efficiency upgrades may be desirable. The local crime level is recorded as high, which should be weighed into insurance and operating costs. Overall, this is a substantial, income-producing freehold with clear growth potential for a buyer comfortable with listed-building constraints and historic-property maintenance.
14 bedroom semi-detached house for sale in Roseleigh Guest House, 19 Broad Walk, Buxton, SK17 6JR, SK17 — £1,100,000 • 14 bed • 1 bath • 6035 ft²
Guest house for sale in Compton Road, Buxton, Derbyshire, SK17 — £725,000 • 1 bed • 1 bath
6 bedroom detached house for sale in 6 Macclesfield Road, Buxton, High Peak, SK17 — £1,175,000 • 6 bed • 5 bath • 4471 ft²
8 bedroom detached house for sale in Park Road, Buxton, SK17 — £845,000 • 8 bed • 2 bath • 3628 ft²
13 bedroom guest house for sale in Hotels, Derbyshire, S18 — £1,800,000 • 13 bed • 1 bath • 5113 ft²
11 bedroom detached house for sale in Fairfield Road, Buxton, SK17 — £1,000,000 • 11 bed • 11 bath • 3807 ft²






































































