Turnkey 14-bedroom Grade II listed guest house opposite Buxton Pavilion Gardens..
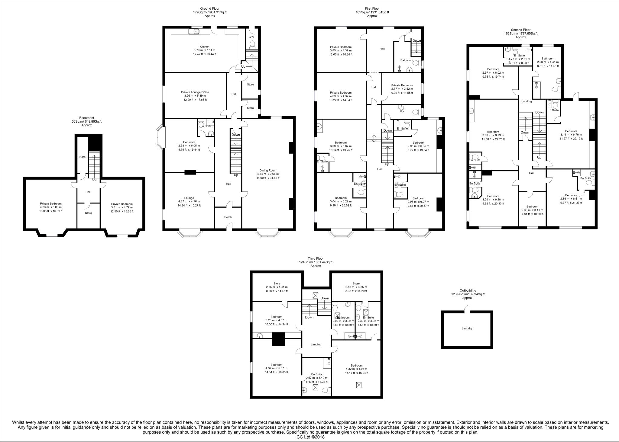
- Grade II listed Victorian guest house, built 1871
- 14 letting bedrooms; 12 en-suite, two with private bathrooms
- Self-contained five-bedroom owner's accommodation (convertible)
- Recent trading: turnover c. £285,567; adjusted net profit ~£100,000
- AA 4 Star Gold and Good Hotel Guide listed 2018–2025
- EPC Rating C; large conservation maintenance responsibilities
- Off-street parking for approximately ten vehicles
- Listed status restricts works; higher local crime may affect costs
An imposing Grade II listed Victorian guest house set directly opposite Buxton Pavilion Gardens. Roseleigh comprises 14 letting bedrooms (12 en-suite, two with private bathrooms), sizable communal rooms, a catering kitchen and a self-contained five-bedroom owner’s apartment. The business trades with an AA 4 Star Gold award, repeated Good Hotel Guide listing and strong recent trading: adjusted turnover c. £285,567 and adjusted net profit around £100,000 (year ended 30 April 2025).
This location is a core strength — a prominent Broad Walk position overlooking 23 acres of Pavilion Gardens and the adjacent leisure lake, appealing to Peak District visitors. The property includes off-street parking for around ten cars, excellent transport links into Buxton, fast broadband and strong mobile signal, supporting modern bookings and guest services.
Buyers should note material constraints: Grade II listed status will restrict alterations and may complicate conversion or expansion, and the area records higher crime levels which may affect insurance costs and guest perceptions. The property is substantial and will require ongoing maintenance typical of a large Victorian building; prospective purchasers should allow for conservation-led upkeep and operational staffing demands.
Opportunity lies in modest product expansion — the five-bedroom owner’s accommodation could be converted to additional letting rooms, and the business could develop food and beverage beyond breakfast to capture higher yield per visitor. For a buyer experienced in hospitality or investment with conservation obligations, Roseleigh offers immediate cashflow and clear upside within a unique, high-profile location.
Guest house for sale in Roseleigh Guest House, 19 Broad Walk, Buxton, SK17 6JR, SK17 — £995,000 • 1 bed • 1 bath • 7314 ft²
Guest house for sale in Compton Road, Buxton, Derbyshire, SK17 — £725,000 • 1 bed • 1 bath
12 bedroom semi-detached house for sale in Manchester Road, Buxton, SK17 — £650,000 • 12 bed • 3 bath • 4941 ft²
6 bedroom detached house for sale in 6 Macclesfield Road, Buxton, High Peak, SK17 — £1,175,000 • 6 bed • 5 bath • 4471 ft²
13 bedroom guest house for sale in Hotels, Derbyshire, S18 — £1,800,000 • 13 bed • 1 bath • 5113 ft²
4 bedroom terraced house for sale in Hall Bank, Buxton, High Peak, Derbyshire, SK17 — £625,000 • 4 bed • 3 bath • 2282 ft²






































































