Charming two-bedroom rural home with large garden, workshop and solar energy.
Two double bedrooms with en‑suite and second shower room
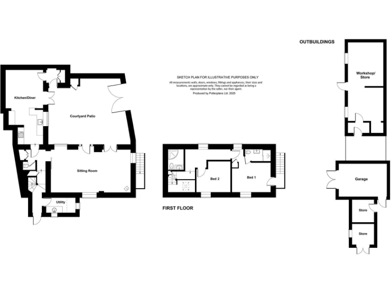
This stone-built former granary offers characterful two-bedroom living arranged around a private south‑west courtyard and sizeable rear garden backing onto grazing land. Vaulted kitchen/dining and a 7m sitting room with woodburner create a bright, social heart; oak finishes and exposed stone give authentic rural character. Modern comforts include solar PV, electric under-floor heating and double glazing.
A substantial range of outbuildings (workshop, garage, two stores and aviary) provides flexible ancillary space and clear potential for an annex or home business, subject to planning. Secure parking and a gated approach add convenience; the village offers basic amenities, a primary school and pleasant riverside walks, with quick road links to the A1(M) and Scotch Corner.
Practical points are straightforward: broadband speeds are slow, and there is a shared right of way with two neighbouring properties. Planning is required for any formal annexe conversion. FIT payments from the solar system are reported but the advertised figure is unclear and should be verified.
Overall this property suits buyers seeking a character rural home with strong external storage and extension/annex potential, or those wanting a peaceful village base with sustainable energy features. Viewing is recommended to appreciate the setting, room proportions and outbuilding value.
4 bedroom property for sale in Hallgarth Court, Newsham, Richmond, DL11 — £524,950 • 4 bed • 3 bath • 2745 ft²
3 bedroom barn conversion for sale in Brokes, Hudswell, Richmond, DL11 — £395,000 • 3 bed • 2 bath • 3229 ft²
3 bedroom barn conversion for sale in Gatherley Road, Brompton On Swale, DL10 — £365,000 • 3 bed • 2 bath • 905 ft²
4 bedroom semi-detached house for sale in Manor House Farm, Morton On Swale Village, Morton On Swale, DL7 — £800,000 • 4 bed • 4 bath • 3747 ft²
5 bedroom barn conversion for sale in East Layton, Richmond, DL11 — £895,000 • 5 bed • 4 bath • 3616 ft²
3 bedroom barn conversion for sale in Whashton, Richmond, DL11 — £540,000 • 3 bed • 2 bath • 2741 ft²














































































































