Versatile rural live‑work or holiday-let opportunity with workshop and views.
Two single‑storey barn conversions sold as one freehold package
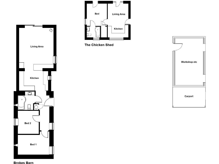
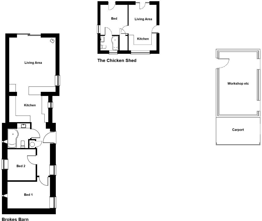
Two single‑storey stone barn conversions arranged around a sheltered gravel courtyard, offered as a flexible package for a buyer seeking rural character with practical outbuildings. Brokes Barn provides a vaulted open-plan kitchen/dining/living space, two bedrooms and a bath/shower room; the timber‑clad “Chicken Shed” is a self-contained unit with living‑kitchen, double bedroom, en‑suite and walk‑in wardrobe. Both enjoy open views across farmland and sit about 1.5 miles from historic Richmond.
The site includes a substantial 5.61m x 4.78m workshop with adjoining carport and useful courtyard parking. Interiors are modern and well presented with double glazing, integrated kitchen appliances and a wood/multi‑fuel stove in Brokes Barn. The layout suits an owner-occupier wanting separate annex or live‑work space, a holiday‑let operator, or a purchaser seeking income from dual units.
Buyers should note some practical limitations: heating is electric (room heaters) rather than gas, drains run to a septic tank, and there is limited formal lawned garden — outdoor space is mainly courtyard and terraced areas. EPC for Brokes Barn is 51 (E); the Chicken Shed’s rating is not provided. The property is freehold, in a quiet hamlet with very low crime and good access to the A1(M)/A66.
Overall this is a characterful, versatile rural package: strong on views, privacy and outbuilding utility, best suited to buyers who value location and flexible accommodation rather than extensive gardens or mains drainage.
3 bedroom barn conversion for sale in Whashton, Richmond, DL11 — £540,000 • 3 bed • 2 bath • 2741 ft²
2 bedroom barn conversion for sale in Whashton, Richmond, DL11 — £360,000 • 2 bed • 1 bath • 1624 ft²
5 bedroom barn conversion for sale in East Layton, Richmond, DL11 — £895,000 • 5 bed • 4 bath • 3616 ft²
2 bedroom barn conversion for sale in Range Barn, South Cowton, DL7 — £350,000 • 2 bed • 1 bath • 791 ft²
1 bedroom barn conversion for sale in Whashton, Richmond, DL11 — £180,000 • 1 bed • 1 bath • 901 ft²
3 bedroom barn conversion for sale in Gatherley Road, Brompton On Swale, DL10 — £365,000 • 3 bed • 2 bath • 905 ft²


























































































