Rare Grade II barn with planning permission — substantial renovation project on a very large plot..
Full Planning Permission granted for single 5-bed dwelling (Ref S22/0415)
Grade II listed — conversion will require listed-building compliance
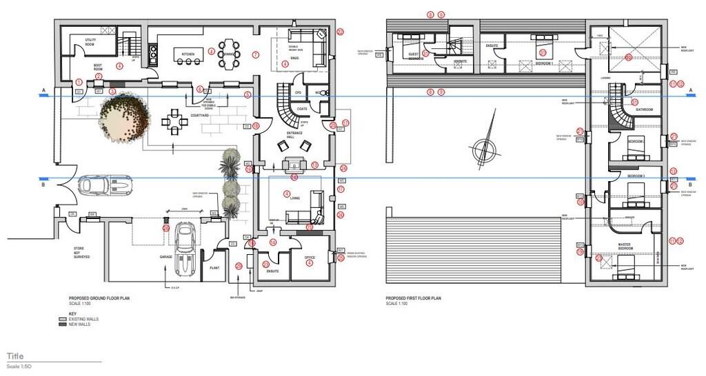
Large building: c.4,568 sq ft living accommodation plus garage/plant
Very large plot with east garden and west courtyard garden
Freehold, chain-free sale; existing electric and water connections
Uplift/clawback: 50% of value uplift payable for up to 50 years
Mains foul drainage availability not guaranteed — buyer to investigate
Conversion project — significant construction and specialist costs expected
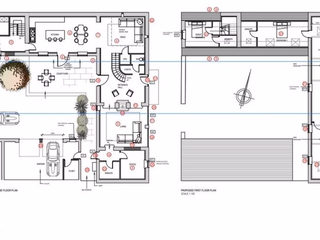
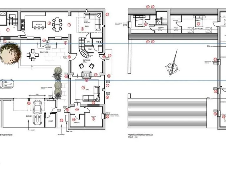
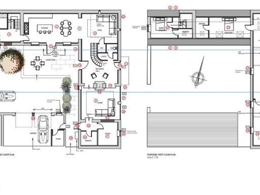
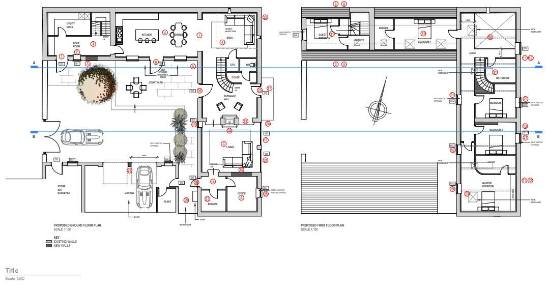
This Grade II listed barn at Bulby is a substantial freehold development opportunity with Full Planning Permission (Ref S22/0415, granted 15 Feb 2023) to convert the buildings into a single 5-bedroom dwelling with garaging and plant room. The buildings extend to approximately 4,568 sq ft of living accommodation plus c.791 sq ft for garaging/plant, set on a very large plot on the west edge of the village. The sale is chain-free and includes existing electric and water connections.
The planning consent and listed status are the site’s primary strengths: permission in place reduces planning risk for the approved scheme, while the historic stone and brick fabric offers strong character and market appeal once converted. The rural location and large grounds suit buyers seeking privacy and countryside views, and the layout provides flexible living spaces including multiple en-suites, home office potential and garaging.
Important constraints and costs are factual and material. The barn’s Grade II listing means renovation will need specialist works and listed-building compliance; the Decision Notice contains conditions that must be met. There is also an Uplift/Clawback Clause: 50% of any uplift in value if additional dwellings are later granted, payable for up to 50 years. Services for mains foul drainage are not guaranteed and should be investigated; the property is being sold as a conversion project requiring substantial building works to implement the approved scheme.
This opportunity suits a buyer or small developer comfortable with listed-building regulations and refurbishment projects who values having planning permission already granted. It is less suitable for someone wanting a move-in-ready home or for buyers unable to manage the listed consent conditions, potential restrictions, or the uplift obligation.
4 bedroom barn conversion for sale in Barn Conversion, North Fen, Morton, PE10 — £150,000 • 4 bed • 2 bath • 4309 ft²
Barn conversion for sale in Morton North Drove, Bourne, Lincolnshire, PE10 — £175,000 • 1 bed • 1 bath • 5426 ft²
Land for sale in Morton North Drove, Bourne, Lincolnshire, PE10 , PE10 — £175,000 • 1 bed • 1 bath
Land for sale in Spinney Farm, Main Road, Dowsby, Bourne, Lincolnshire, PE10 0TL, PE10 — £600,000 • 1 bed • 1 bath
Land for sale in Chapel Street, Haconby, Bourne, PE10 — £300,000 • 1 bed • 1 bath • 659 ft²
Plot for sale in Barn At School House Farm, Lenton Road, Ingoldsby, Grantham, Lincolnshire, NG33 — £300,000 • 1 bed • 1 bath • 2476 ft²


























































































































