Spacious four-bedroom house with extensive grounds and far-reaching rural views.
Approximately two acres with fenced paddock and panoramic Clee Hills views
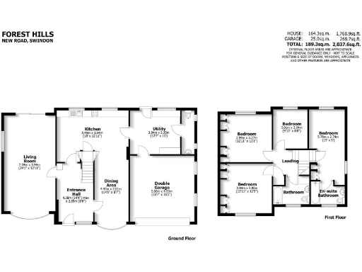
Double garage with electric roller door and wide gated driveway
Spacious open-plan kitchen/dining and dual-aspect living room with terraces
Main heating: LPG boiler and radiators; LPG supply not on a community network
Shared water supply and private drainage — professional verification advised
Title includes an Agricultural Occupancy Restriction limiting occupation
Very slow broadband speeds; mobile signal average in location
Council Tax high (Band F) and local crime levels above average
Set on roughly two acres with panoramic views over the Clee Hills, this four-bedroom detached home sits in an elevated, semi-rural position between Swindon, Wombourne and Bobbington. The house offers generous, light-filled living rooms with oak flooring, two woodburners, an open-plan dining kitchen, and a principal bedroom with en-suite — a comfortable family layout that suits country living and home-working.
Practical features include a double garage with electric roller door, gated driveway, south‑westerly rear aspect, and a fenced paddock. Mains electricity is connected; heating runs from an LPG boiler with radiators. The plot’s size and elevated aspect are major assets for buyers seeking privacy, outdoor space, and long views.
Important restrictions and practical points: the title carries an Agricultural Occupancy Restriction limiting sale or occupation to those principally employed in agriculture or forestry (or dependants). Water is from a shared supply and drainage is private; broadband speeds are very slow. Council Tax sits at a high band, and local crime levels are above average — all factors buyers should verify with their advisors.
This home will suit buyers wanting a substantial, well-proportioned country house with land, or those able to meet the agricultural-occupancy criteria and willing to accept some rural service limitations. There is potential to modernise or adapt internal spaces, but any changes should be considered alongside the restrictive title and utilities setup.
4 bedroom detached bungalow for sale in Bon Accord, Kingsford Lane, Wolverley, DY11 5SL, DY11 — £895,000 • 4 bed • 3 bath • 3000 ft²
4 bedroom detached house for sale in Baroque House, Upper Landywood Lane, WS6 7AX, WS6 — £725,000 • 4 bed • 3 bath • 1347 ft²
4 bedroom detached house for sale in Herongate Road, Compton, Kinver, Stourbridge, DY7 — £1,400,000 • 4 bed • 3 bath • 5631 ft²
3 bedroom detached house for sale in 7 Shackerley Lane, Albrighton, Wolverhampton, WV7 3AB, WV7 — £359,950 • 3 bed • 1 bath • 1166 ft²
5 bedroom detached house for sale in Blymhill Common, Shifnal, TF11 — £695,000 • 5 bed • 2 bath • 3015 ft²
4 bedroom detached house for sale in 32 Post Office Road, Seisdon, Wolverhampton, WV5 — £750,000 • 4 bed • 3 bath • 1762 ft²






















































































