Spacious family-friendly house with sunny garden and versatile living space.
Freehold Victorian terrace over three floors
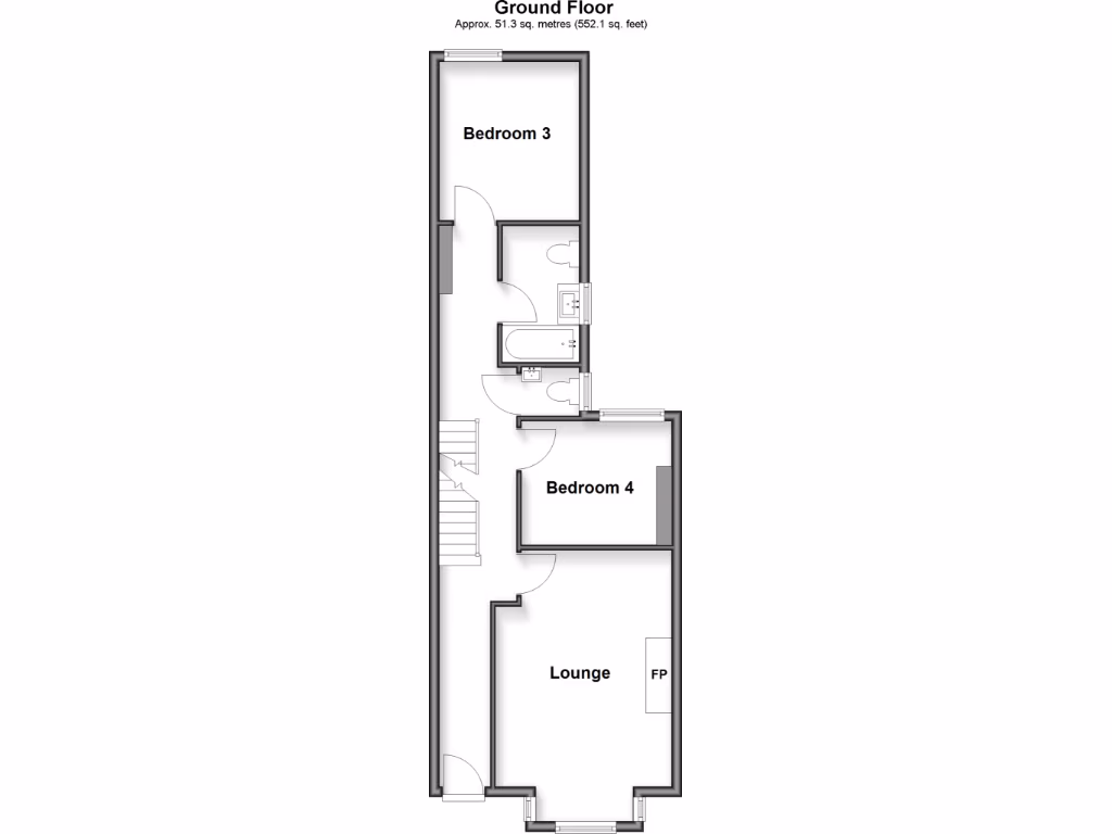
Four bedrooms but only one bathroom plus separate toilet
Large 25ft kitchen/diner ideal for entertaining
Snug/office and lounge with functioning log burner
Sunny rear garden; small overall plot size
Approx 988 sq ft; compact rooms compared to modern builds
High local crime and very deprived area — check local safety
Average broadband; excellent mobile signal
This Victorian terraced house offers generous room proportions and period character across three floors, arranged as four bedrooms and a long kitchen/diner. A snug with space for a home office and a lounge with a log burner add versatile living options for family life and working from home.
The 25ft kitchen/diner and sunny rear garden create a strong entertaining and family hub, while the bay-fronted principal bedroom and original features retain charm. Located in central Margate, the house is highly walkable to shops, cafés and several well-rated primary and secondary schools.
Buyers should note the property is compact overall (approximately 988 sq ft) and has only one bathroom plus a separate toilet, which may limit larger families without further adaptation. The area records high crime and very high deprivation levels; viewings should include local due diligence.
Practical details: freehold tenure, mains gas boiler heating, average broadband speeds and excellent mobile signal. All measurements and services should be independently verified by interested parties and their solicitors.
3 bedroom terraced house for sale in Dane Road, Margate, Kent, CT9 — £400,000 • 3 bed • 1 bath • 745 ft²
4 bedroom terraced house for sale in Dane Hill Row, Margate, CT9 — £275,000 • 4 bed • 2 bath • 1188 ft²
2 bedroom terraced house for sale in Grotto Road, Cliftonville, Margate, Kent, CT9 — £290,000 • 2 bed • 1 bath • 732 ft²
4 bedroom town house for sale in Dane Road, Margate, CT9 — £230,000 • 4 bed • 2 bath • 894 ft²
5 bedroom semi-detached house for sale in Madeira Road, Cliftonville, Margate, Kent, CT9 — £550,000 • 5 bed • 1 bath • 1228 ft²
3 bedroom end of terrace house for sale in Dane Hill Grove, Margate, Kent, CT9 — £260,000 • 3 bed • 1 bath • 1022 ft²


































































































