PE22 7DJ - Equestrian facility for sale in Boston Road, Cowbridge, Bos…

View on Property Piper

Equestrian facility for sale in Boston Road, Cowbridge, Boston, Lincolnshire, PE22 7DJ, PE22

Summary - BRIDGE HOUSE COWBRIDGE BOSTON PE22 7DJ

4 bed 1 bath Equestrian Facility

**Standout Features:**
- Stunning four-bedroom architect-designed barn conversion
- Set on 2.3 acres with equestrian facilities: 5 paddocks, all-weather manège, and stables
- Immaculate condition with luxurious kitchen and high-quality bathrooms
- Expansive open-plan living area with vaulted ceilings and lantern roof
- Secluded formal gardens featuring a water feature and patio
- Includes all white goods; furniture and farm equipment available by negotiation
- Environmentally friendly solar array with battery storage
- Chain free, offering immediate occupancy

**Summary:**
Experience the elegance of rural living in this exceptional four-bedroom barn conversion set on 2.3 acres, perfectly suited for families and equestrian enthusiasts alike. The spacious open-plan design features a stunning lounge with vaulted ceilings, a lantern roof, and bi-fold doors leading to beautifully landscaped gardens—your personal sanctuary. A high-quality kitchen with integrated appliances beckons culinary adventures, while four well-appointed bedrooms offer comfort and privacy.

Venture outside, and you'll find a host of equestrian amenities, including five paddocks, a fully-equipped all-weather manège, and stables, ideal for horse lovers. The property is energy-efficient with a solar array and battery storage, ensuring long-term savings. Despite the tranquil location, you’re just a short drive from the vibrant town of Boston, which boasts excellent schools and amenities. This property presents a unique opportunity for a luxurious rural lifestyle—don’t miss out on the chance to make it your own!

Property Details

Brochure Descriptions

Image Descriptions

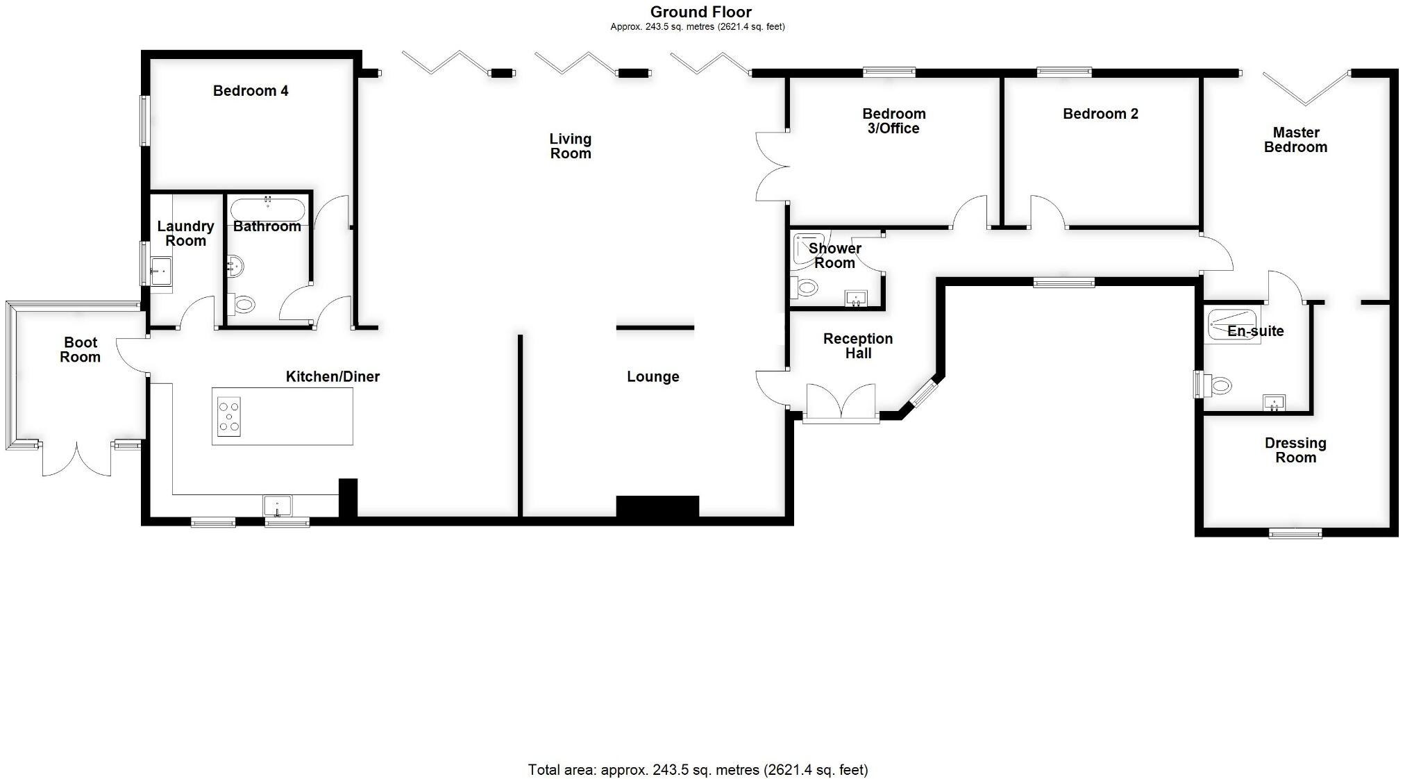
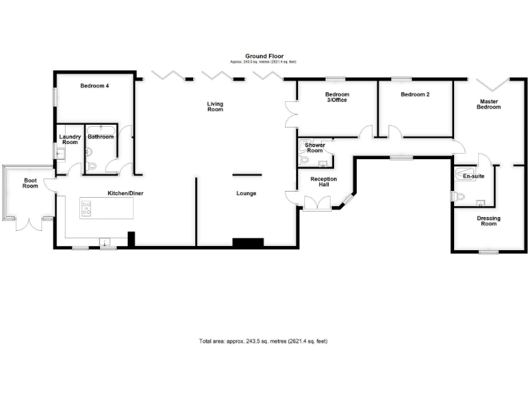
Floorplan Description

Rooms

Textual Property Features

Detected Visual Features

Nearby Schools

Nearest Bars And Restaurants

,,,,}

Nearest General Shops

,,}

Nearest Grocery shops

,,}

Nearest Supermarkets

,,}

Nearest Religious buildings

,,}

Nearest Medical buildings

,,,}

Nearest Leisure Facilities

,,,,}

Nearest Tourist attractions

,,}

Nearest Train stations

,,,,}

Nearest Bus stations and stops

,,,,}

Nearest Hotels

,,}

Tags

Local Market Stats

Similar Properties

Meta

High Res Images

Compatible Images

Low res Images

Thumbnails

Raw Images

High Res Floorplan Images

Compatible Floorplan Images

Low res Floorplan Images

FloorplanImages Thumbnail

Raw Floorplan Images