HP14 3PF - Pub for sale in Marlow Road, High Wycombe, HP14

View on Property Piper

Pub for sale in Marlow Road, High Wycombe, HP14

Summary - Marlow Road, High Wycombe HP14 3PF

1 bed 1 bath Pub

**Standout Features:**
- Freehold public house and hotel on over 29,500 sq ft of land
- Two-story structure with renovation potential
- Large garage and parking for over 30 vehicles
- Opportunity for conversion to flats or redevelopment
- Located in a quiet, suburban area with excellent transport links to London via the M40
- Low local crime rate, ideal for families or investors

**Potential Concerns:**
- Public house has been vacant for over 5 years and requires substantial modernization
- May require investment for renovations and upkeep

---

Nestled in a tranquil location along Marlow Road in High Wycombe, this expansive freehold public house and hotel offers a unique opportunity for developers and investors alike. Encompassing over 29,500 sq ft, the property features a large two-story building that is ripe for renovation or transformation into flats, appealing to those wanting to create a bespoke space in a serene setting. With parking for over 30 vehicles and a sizeable outdoor area, this site is primed for potential expansions or enhancements.

While the property has remained vacant for over 5 years and necessitates modern updates, it stands in a peaceful part of town, surrounded by lush woodland, ensuring privacy and tranquility. The low crime rate and proximity to various primary schools with 'Good' Ofsted ratings make this an attractive investment. Don't miss out on this exceptional opportunity—secure your slice of potential today before it’s gone!

Property Details

Brochure Descriptions

Image Descriptions

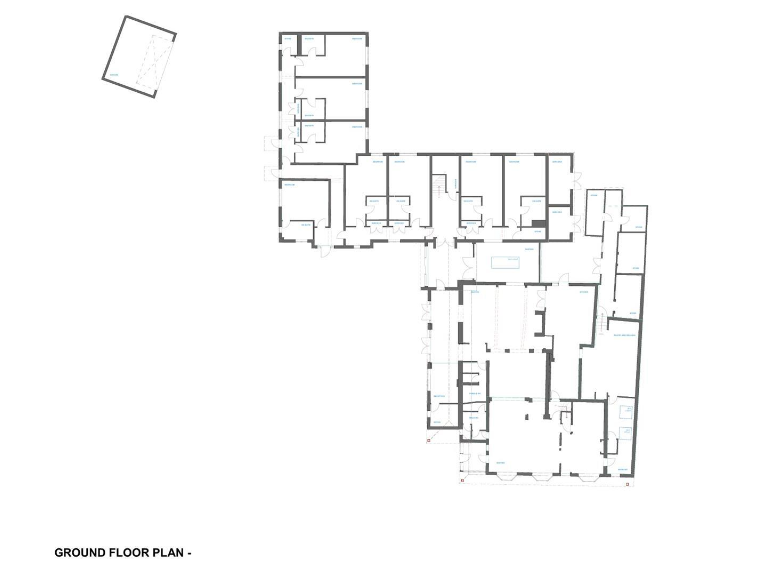
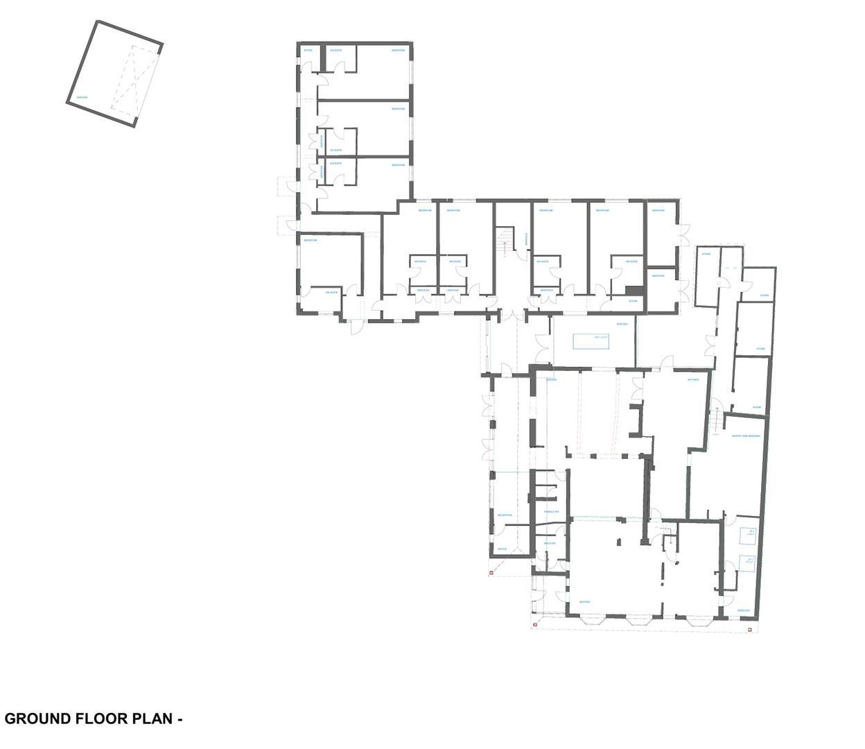
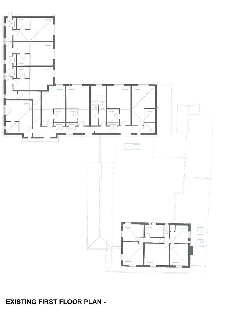
Floorplan Description

Rooms

Textual Property Features

Detected Visual Features

Nearby Schools

Nearest Bars And Restaurants

,,,,}

Nearest General Shops

,,}

Nearest Grocery shops

,,}

Nearest Supermarkets

,,}

Nearest Religious buildings

,,}

Nearest Medical buildings

,,,}

Nearest Airports

}

Nearest Leisure Facilities

,,,,}

Nearest Tourist attractions

,,}

Nearest Train stations

,,,,}

Nearest Bus stations and stops

,,,,}

Nearest Hotels

,,}

Tags

Local Market Stats

Similar Properties

Meta

High Res Images

Compatible Images

Low res Images

Thumbnails

Raw Images

High Res Floorplan Images

Compatible Floorplan Images

Low res Floorplan Images

FloorplanImages Thumbnail

Raw Floorplan Images