Spacious, characterful home with dramatic vaulted ceilings and luxury finishes.
- Grade II listed chapel conversion with Gothic arched windows
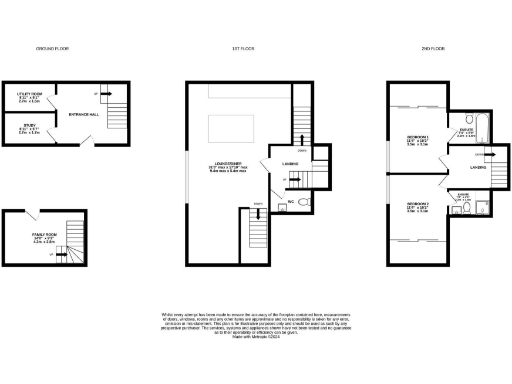
- Very large living area approximately 1,600 sqft across three floors
- Two double bedrooms, both with luxury en‑suite bathrooms
- Large open-plan lounge-kitchen with substantial marble island
- Allocated off-street parking and access to communal garden area
- Heating is electric room heaters; consider higher running costs
- Listed status may restrict alterations and complicate maintenance
- Service charge/ground rent c. £1,800pa; one sixth of freehold
Set within a Grade II listed Gothic Revival chapel conversion, this two-bedroom maisonette combines dramatic period character with contemporary fixtures. The home spans three floors and offers very generous proportions (about 1,600 sqft), high vaulted ceilings and large arched windows that flood the open-plan lounge‑kitchen with light. The kitchen centres on a substantial marble island; both bedrooms have en-suite bathrooms finished to a luxury standard.
Outdoor space and practical benefits include allocated off‑street parking, access to a part of the landscaped garden, and a large plot setting close to Abergavenny town centre. The Portico sits in a quiet, picturesque location with excellent mobile and fast broadband, making it suitable for modern living or remote working.
Important practical notes: the building is Grade II listed which can restrict alterations and may complicate maintenance or retrofit works. Heating is electric (room heaters) and the property uses electricity as the main fuel, so running costs should be considered. A service charge and ground rent totalling approximately £1,800 per annum apply (1/6th share of the freehold).
This apartment will suit buyers who prioritise distinctive character, generous interior space and a peaceful setting close to local amenities. It may be less suitable for buyers seeking low-running-cost heating or a property with unrestricted ability to extend or alter original fabric.
3 bedroom town house for sale in The Nave, Pen Y Val Chapel, Abergavenny, NP7 — £365,000 • 3 bed • 2 bath • 1700 ft²
3 bedroom cottage for sale in The Chancel, Pen Y Fal Chapel, Abergavenny, NP7 — £550,000 • 3 bed • 3 bath • 1861 ft²
3 bedroom penthouse for sale in Sarno Square, Abergavenny, NP7 — £250,000 • 3 bed • 2 bath • 1394 ft²
3 bedroom cottage for sale in Pen Y Fal Chapel, Abergavenny, NP7 — £525,000 • 3 bed • 3 bath • 1828 ft²
2 bedroom flat for sale in Sarno Square, Abergavenny, NP7 — £170,000 • 2 bed • 2 bath • 733 ft²
2 bedroom flat for sale in Sarno Square, Abergavenny, NP7 — £220,000 • 2 bed • 2 bath • 1083 ft²






















































































