Cottage plus approved rear plots in Wickham Conservation Area — no forward chain.
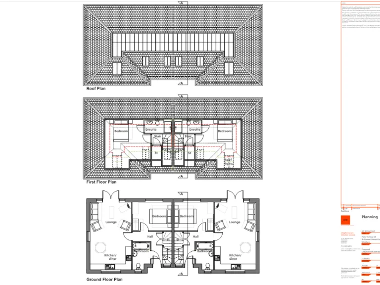
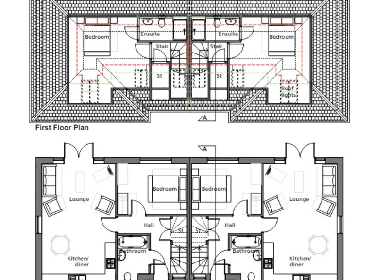
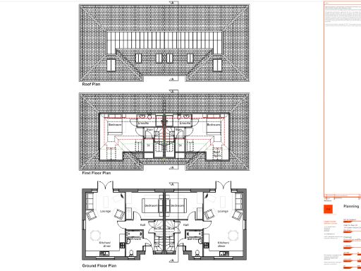
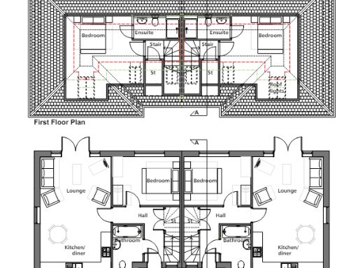
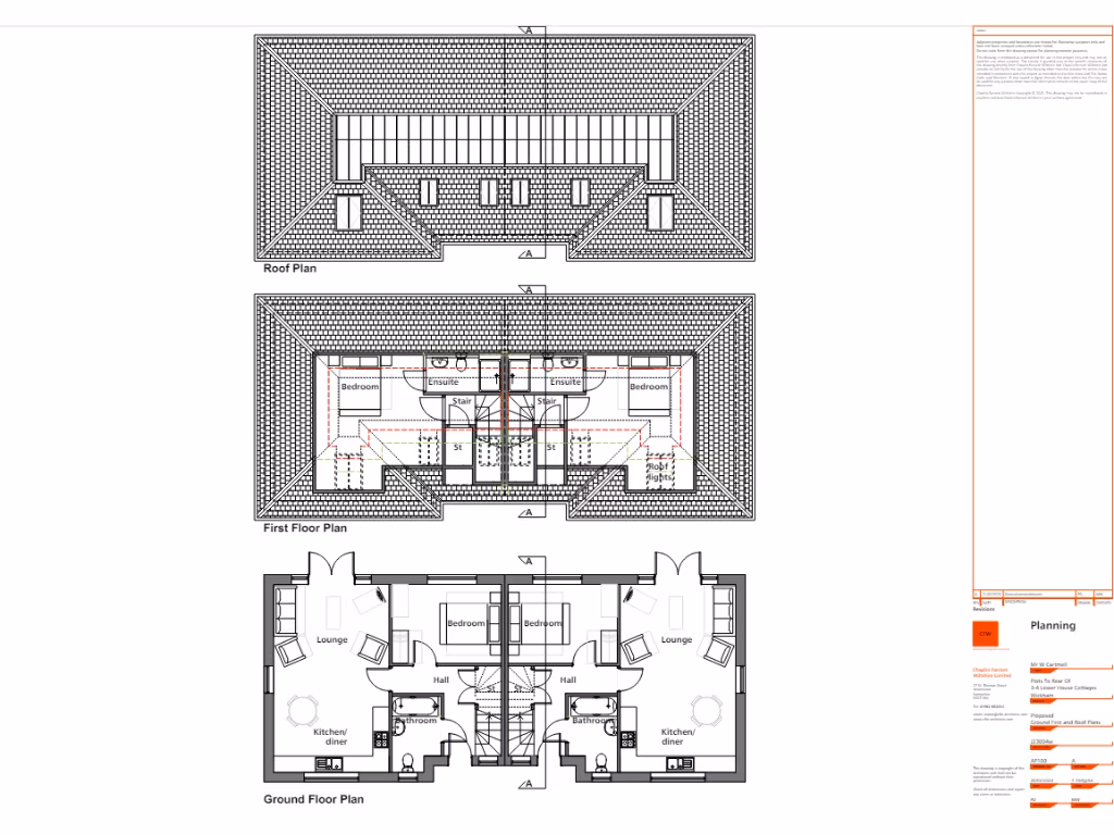
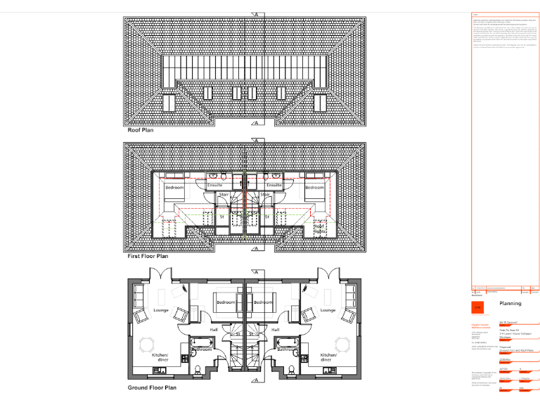
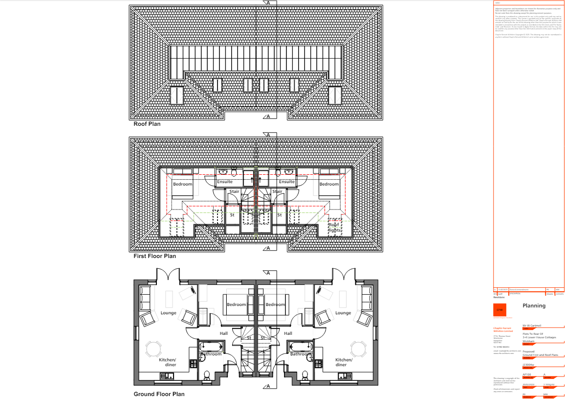
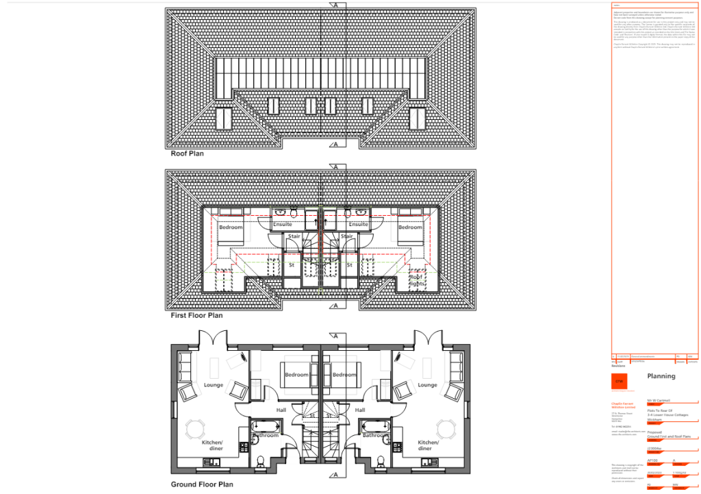
Planning permission granted for two 2-bed semi-detached bungalows (ref. 23/00600/FUL)
A rare village-centre landholding in Wickham combining a period two-bedroom semi-detached cottage with large rear plots that have planning permission for a pair of two-bedroom semi-detached bungalows (ref. 23/00600/FUL). The site sits tucked away within the Conservation Area, within easy walking distance of Wickham Square and local amenities, offering a blend of immediate rental/refurbishment potential and short-term development upside.
The existing cottage provides an immediate property to occupy or refurbish; construction is traditional solid brick with double glazing and mains gas heating. The rear plots are large for an infill village site and include vehicle access, a detached garage and off-street parking. All mains services are available for connection and the sale is freehold with no forward chain, simplifying transaction timing for a developer or investor.
Notable constraints include the Conservation Area setting and established boundary trees which may restrict footprint or require arboricultural review. The cottage’s walls are likely uninsulated solid brick (assumed) and refurbishment may be needed to modernise thermal performance and internal finishes. Landscaping works will be required to complete the development and the site has an above-average council tax band for the existing dwelling.
This holding suits a small developer or investor seeking a village redevelopment with planning in place, or a buyer who wants a period cottage plus the option to build two bungalows for family use or to generate income. Buyers should review the detailed planning documents on the Winchester Planning Portal and factor in Conservation Area controls and potential tree constraints when assessing deliverability.
2 bedroom detached bungalow for sale in Wickham, Hampshire, PO17 — £450,000 • 2 bed • 1 bath • 886 ft²
3 bedroom character property for sale in Wickham, Hampshire, PO17 — £360,000 • 3 bed • 1 bath • 952 ft²
3 bedroom detached house for sale in Near Wickham , PO17 — £710,000 • 3 bed • 1 bath • 954 ft²
3 bedroom detached bungalow for sale in Wickham, Hampshire, PO17 — £390,000 • 3 bed • 1 bath • 835 ft²
3 bedroom semi-detached house for sale in Knowle, Hampshire, PO17 — £400,000 • 3 bed • 1 bath • 955 ft²
Plot for sale in Willow Drive, Soberton, Southampton, Hampshire, SO32 — £450,000 • 1 bed • 1 bath • 3750 ft²


























































