Chain-free three-bed village cottage with garden and parking, close to Wickham Square..
Chain free Victorian end-of-terrace cottage
Three bedrooms including converted attic dormer room
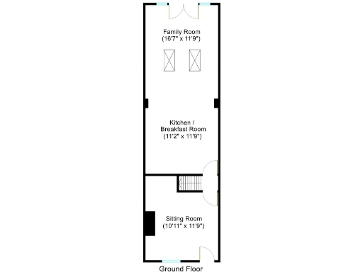
Ground-floor rear extension with light family room
Enclosed rear garden; small, low-maintenance plot
Off-street parking to the front (hard standing)
Traditional kitchen in need of updating
Single family bathroom; accommodation across three floors
Cavity walls assumed uninsulated — consider thermal upgrades
A well-located Victorian end-of-terrace cottage in the heart of Wickham, offered chain free and arranged over three floors. The house retains period character including exposed brickwork, high ceilings and a dormer attic bedroom, while benefiting from a ground-floor rear extension that creates a light family room with skylights and garden access.
The layout suits a small family seeking village convenience: a front sitting room with a wood-burning stove recess, a kitchen/breakfast room with integrated appliances and a rear family room opening onto an enclosed, low-maintenance garden. There is off-street parking to the front and useful eaves storage in the converted loft bedroom.
Practical points to note: the kitchen shows traditional fittings and would benefit from updating to suit modern tastes. The property is compact with vertical accommodation over three floors and a single family bathroom. Walls are cavity-built with assumed no added insulation, so buyers should consider thermal improvements. Services are mains gas with a boiler and radiators; fittings and appliances have not been independently tested.
This freehold cottage offers a rare town-fringe opportunity close to Wickham Square amenities, good local schools and very low local crime. It will appeal to buyers who value period character and a central village location and are prepared for modest updating and potential energy-efficiency improvements.
3 bedroom end of terrace house for sale in Wickham, Hampshire, PO17 — £359,995 • 3 bed • 1 bath • 1032 ft²
2 bedroom character property for sale in Wickham, Hampshire, PO17 — £395,000 • 2 bed • 1 bath • 932 ft²
3 bedroom semi-detached house for sale in Tanfield Lane, Wickham, Fareham, Hampshire, PO17 — £500,000 • 3 bed • 2 bath • 1500 ft²
2 bedroom terraced house for sale in Wickham, PO17 — £365,000 • 2 bed • 1 bath • 696 ft²
3 bedroom semi-detached house for sale in Knowle, Hampshire, PO17 — £400,000 • 3 bed • 1 bath • 955 ft²
3 bedroom semi-detached house for sale in School Road, Wickham, Fareham, PO17 — £370,000 • 3 bed • 1 bath • 1032 ft²


































































