Spacious commuter home with period charm and garden.
Short walk to Plumstead Station and town centre amenities
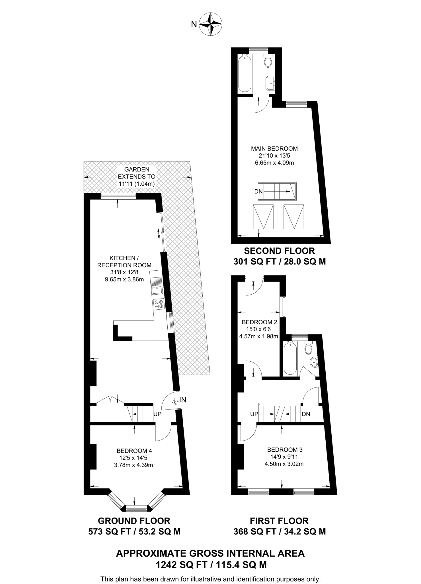
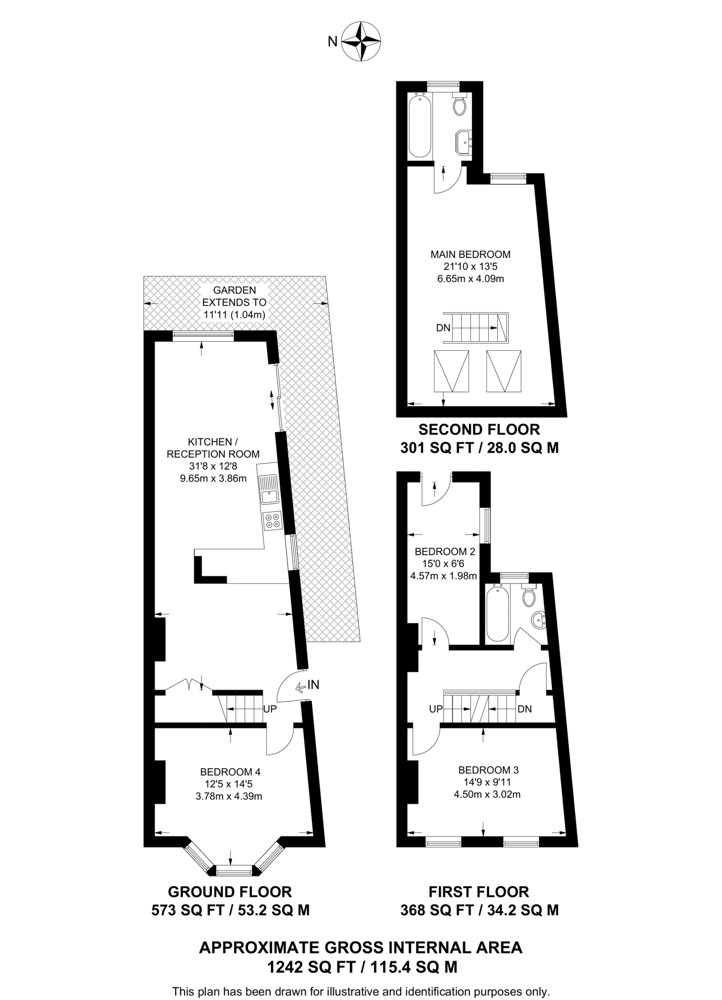
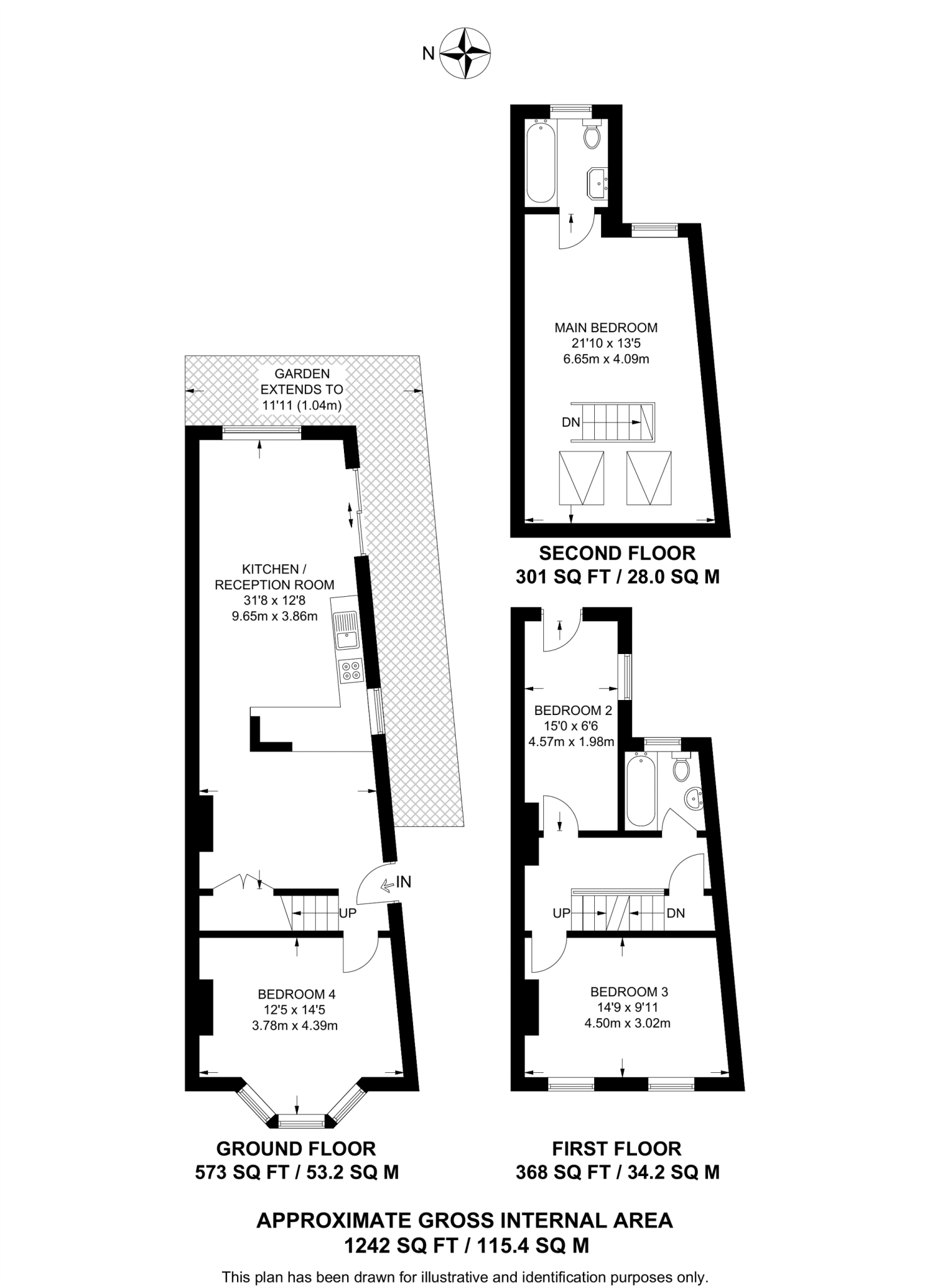
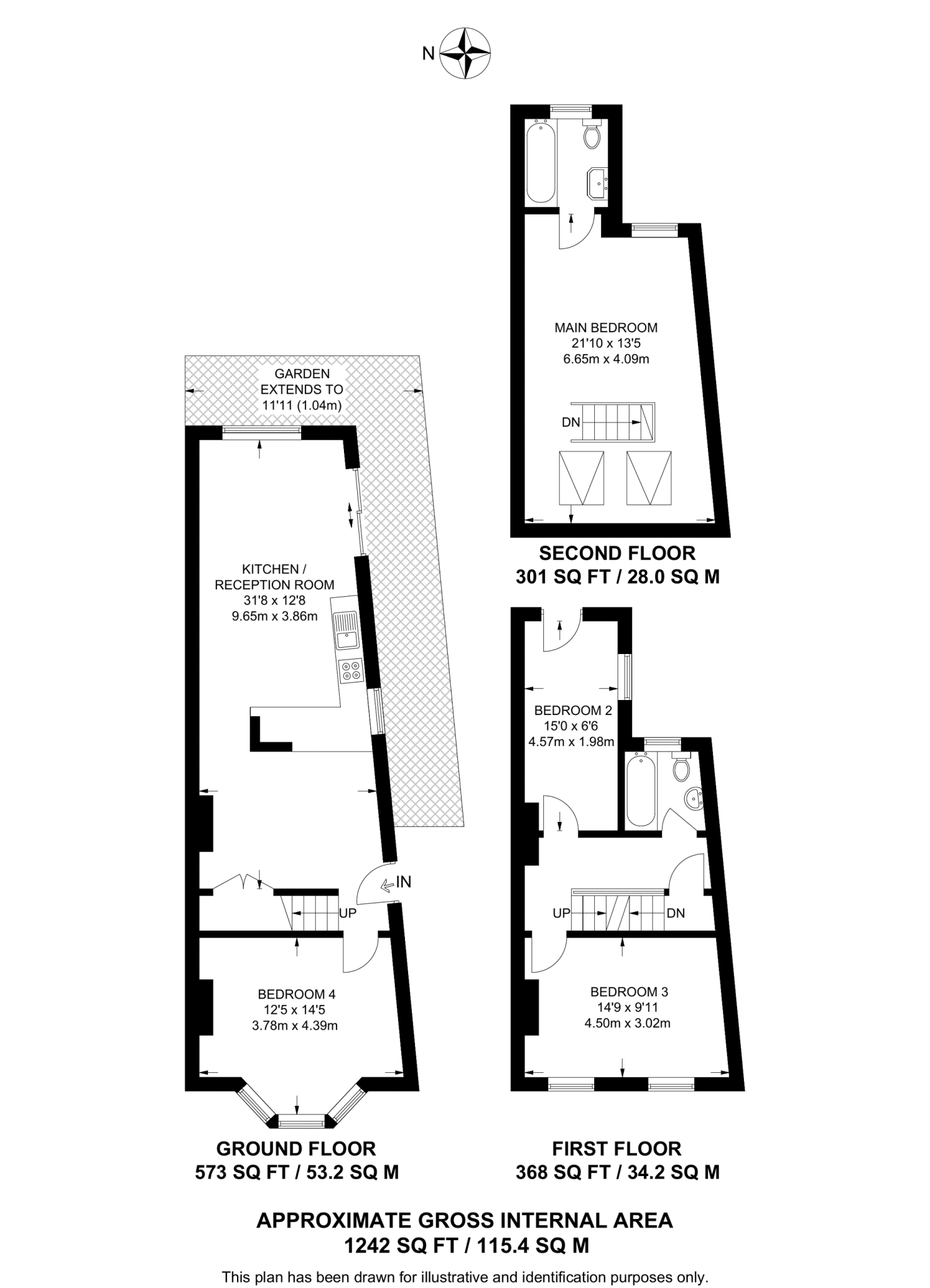
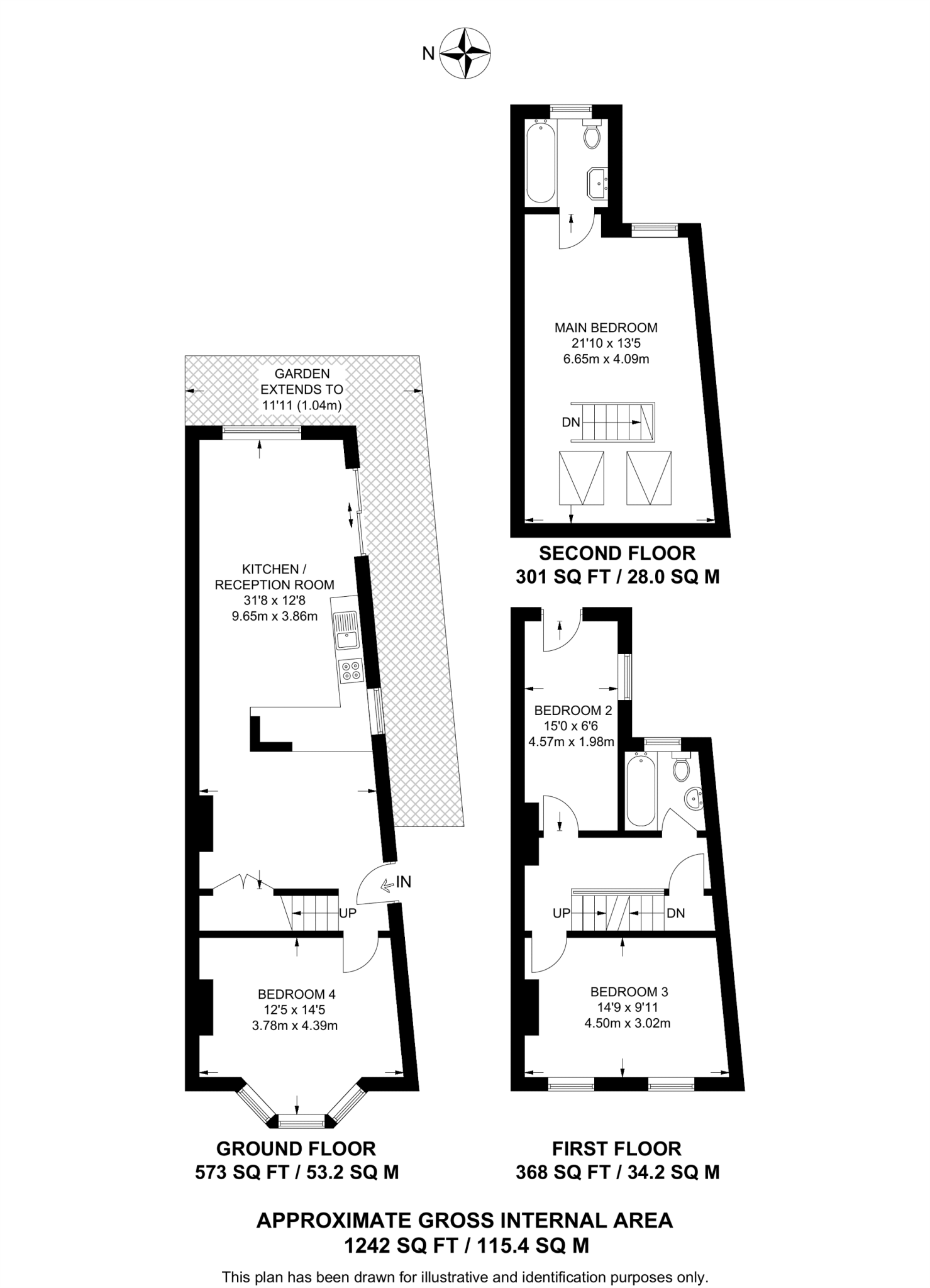
Set over three floors in a Victorian end-of-terrace, this bright family home sits a short walk from Plumstead town centre and Plumstead Station, making it practical for commuters. The property offers a spacious reception and an open-plan kitchen/dining area, plus two bathrooms (one en-suite) across a layout that the listing describes as three bedrooms — some details also reference four, so buyers should verify the exact bedroom configuration.
Constructed circa 1900–1929, the house retains period character externally with a bay window and brick façade. Internally you’ll find double glazing (installation date unknown), mains gas boiler and radiators, and good broadband speeds — useful for home working. A small rear garden provides outside space while local parks, sports facilities and several good primary schools are within easy reach.
Practical considerations: the property sits on a small plot in a locally deprived area with average crime statistics. The original solid brick walls are assumed to be uninsulated, which may affect running costs until improved. The home is freehold and about 1,242 sq ft, offering scope for targeted updating rather than a full rebuild.
This house will appeal to young families and commuter buyers seeking space and period charm close to transport links, and to buyers willing to invest modestly in insulation and cosmetic updates to maximise comfort and value. Verify the bedroom count and recent works on glazing and heating before committing.
4 bedroom end of terrace house for sale in Eastview Avenue, Plumstead, London, SE18 — £675,000 • 4 bed • 2 bath • 1491 ft²
4 bedroom terraced house for sale in Purrett Road, Plumstead, London, SE18 — £570,000 • 4 bed • 2 bath • 1486 ft²
5 bedroom terraced house for sale in Waverley Crescent, Plumstead, London, SE18 — £550,000 • 5 bed • 1 bath • 1357 ft²
4 bedroom end of terrace house for sale in Brewery Road, London, SE18 — £550,000 • 4 bed • 1 bath • 1517 ft²
4 bedroom terraced house for sale in The Slade, London, SE18 — £600,000 • 4 bed • 2 bath
3 bedroom terraced house for sale in Waverley Crescent, London, SE18 — £525,000 • 3 bed • 2 bath • 1573 ft²














































































































































































































