**Standout Features:**
- **Prime Location:** Nestled just steps away from Ainsdale Village, providing easy access to local amenities.
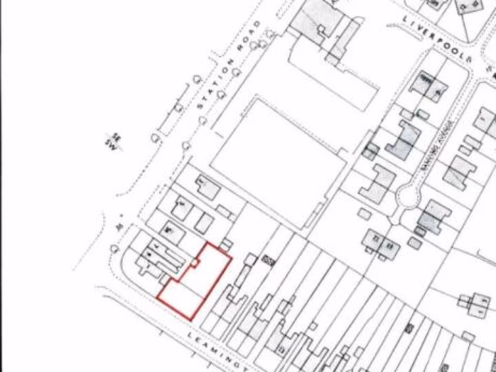
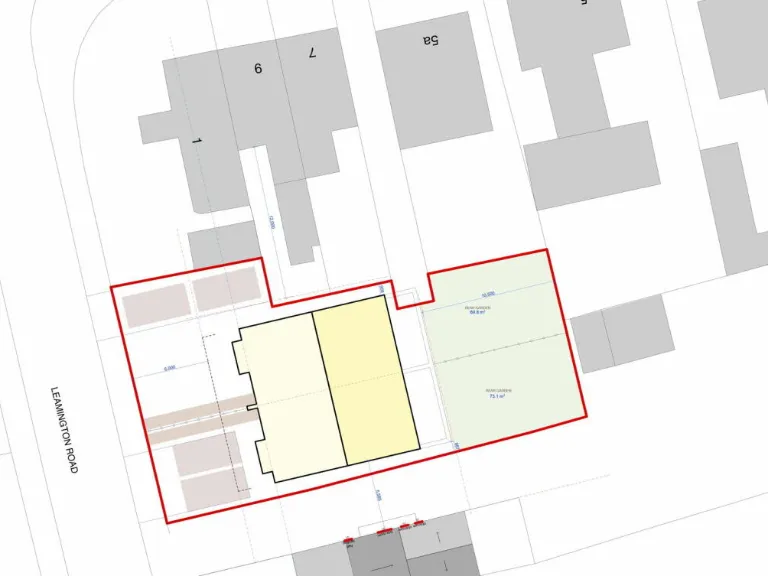
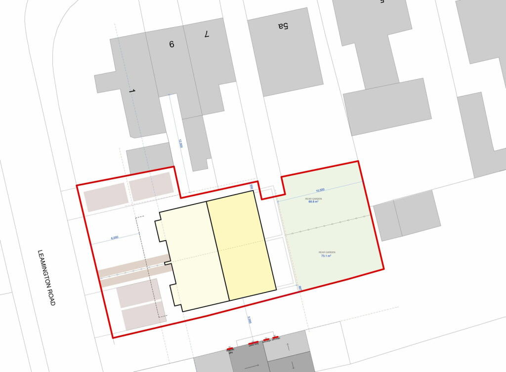
- **Development Potential:** Offers ample space for either a single detached dwelling or a pair of semi-detached homes, appealing for residential development.
- **Freehold Title:** The plot is available with Freehold Title Number MS362644, ensuring security of ownership.
- **Surrounding Area:** Set in a comfortable neighborhood with well-maintained surroundings and average crime rates, ideal for families or retirees.
**Potential Downsides:**
- **No Planning Permission:** Currently sold without planning permissions, requiring investors or buyers to navigate future development approvals independently.
- **Moderate External Conditions:** The land is described as vacant, which may necessitate clear-up and initial development work.
This rare land opportunity in Southport is ideal for developers or families looking to create their dream home in a serene environment. Positioned in a vibrant area filled with practical amenities—shops, cafes, and schools within walking distance—this plot offers the perfect blend of tranquility and convenience. The absence of planning permission presents a blank canvas for those willing to invest in vision and creativity. Early viewing is advisable as opportunities like this in sought-after locations don’t last long. Embrace the potential for your next project or investment in a community-oriented neighborhood!
Land for sale in New Cut Lane, Birkdale, Southport, Merseyside, PR8 3DW, PR8 — £250,000 • 1 bed • 1 bath • 2952 ft²
Land for sale in Salford Road, Southport, PR8 — £275,000 • 5 bed • 2 bath • 3391 ft²
Land for sale in Land Adjacent To 46 And 46a Haweside Street, Southport, PR9 — £65,000 • 1 bed • 1 bath
Land for sale in Land At 15-17 Oxford Road, Birkdale, Southport, PR8 — £1,100,000 • 1 bed • 1 bath • 1348 ft²
Land for sale in Southport Road, Scarisbrick, Ormskirk, L40 — £125,000 • 1 bed • 1 bath • 4403 ft²
Plot for sale in Alexandra Road, Southport, Merseyside, PR9 — £120,000 • 3 bed • 2 bath






























