IP17 1XN - 2 bedroom semidetached house for sale in Buxlow Close, Knod…

View on Property Piper

2 bedroom semi-detached house for sale in Buxlow Close, Knodishall, IP17

Summary - 8 BUXLOW CLOSE KNODISHALL SAXMUNDHAM IP17 1XN

2 bed 1 bath Semi-Detached

Well-presented two-bedroom village home with large garage and generous driveway parking..
Extended rear sitting room with large sliding patio doors
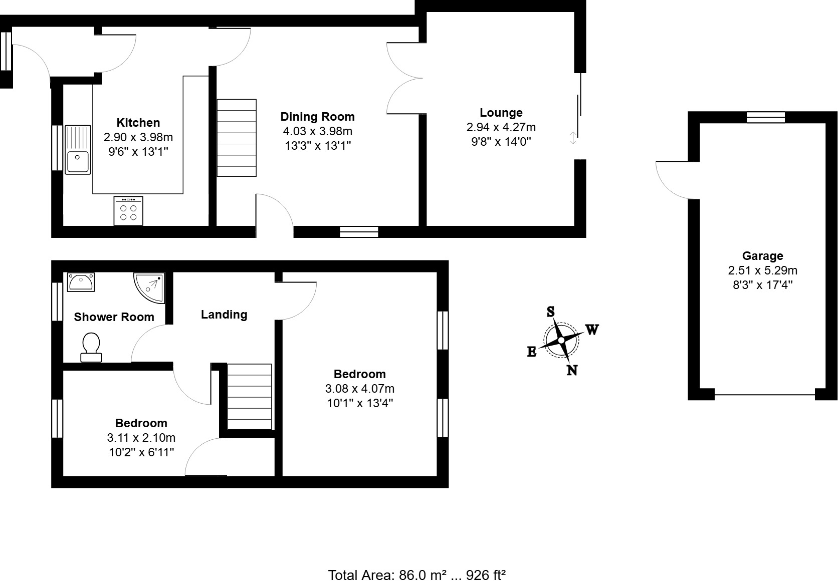
This well-presented two-bedroom semi-detached home in Knodishall combines practical modern living with a peaceful village setting. The property has been extended to create a generous sitting room with sliding patio doors onto a private, low-maintenance garden — ideal for relaxed indoor-outdoor living. A contemporary kitchen, fitted water softener and a modern shower room keep daily life straightforward.

Parking and storage are genuine strengths: a shingled driveway for three to four cars and a large single garage with a newly replaced roof, power, lighting and an electric roller door offer workshop potential or secure parking. The house is gas centrally heated via a wall-mounted combi boiler and offers around 926 sq ft of accommodation over two floors.

The location suits first-time buyers, downsizers and those seeking a quiet base near the Suffolk coast — Aldeburgh and Saxmundham are a short drive away and local amenities include a school, pub and countryside walks. Note there is a single shower room only and the property, while in excellent condition, offers limited bedroom count if future expansion is required.

Sold freehold with low council tax (Band B) and good broadband and mobile signal, this home balances village tranquillity with everyday convenience. It represents a move-in ready option with practical storage and parking that will appeal to buyers prioritising ease of maintenance and strong local connections.

Property Details

Image Descriptions

Floorplan Description

Rooms

Textual Property Features

Target Audience

AI Tags

Detected Visual Features

Nearby Schools

Nearest Bars And Restaurants

,,,,}

Nearest General Shops

,,}

Nearest Grocery shops

,,}

Nearest Supermarkets

,,}

Nearest Religious buildings

,,}

Nearest Medical buildings

,,,}

Nearest Leisure Facilities

,,,,}

Nearest Tourist attractions

,,}

Nearest Train stations

,,,,}

Nearest Bus stations and stops

,,,,}

Nearest Hotels

,,}

Tags

Local Market Stats

AirBnB Data

Similar Properties

Meta

High Res Images

Compatible Images

Low res Images

Thumbnails

Raw Images

High Res Floorplan Images

Compatible Floorplan Images

Low res Floorplan Images

FloorplanImages Thumbnail

Raw Floorplan Images