Two-bedroom detached bungalow on a large plot with garage and private garden.
Large private south-facing rear garden
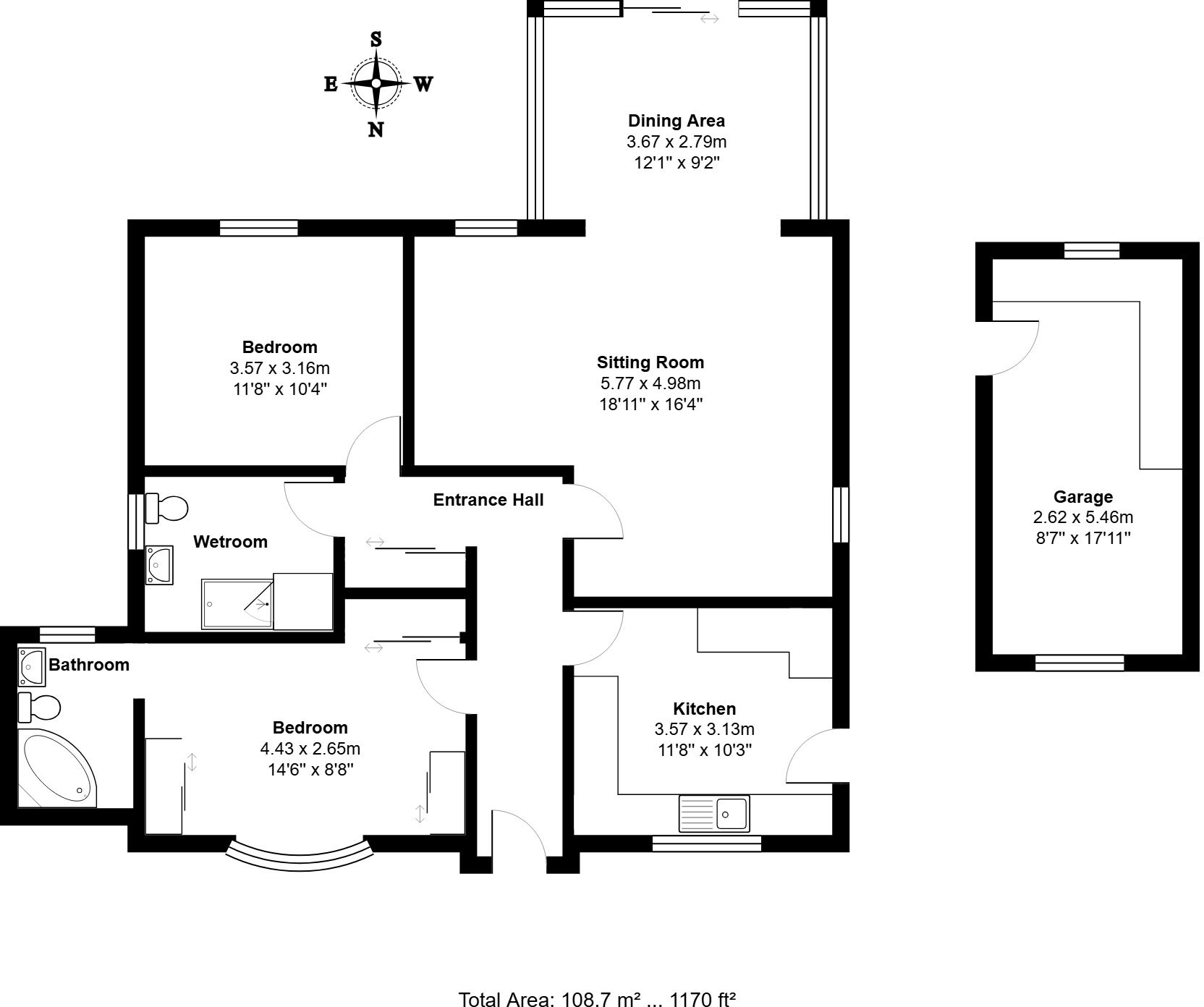
Set back from the road on a generous plot, this extended two-bedroom detached bungalow in Knodishall suits buyers seeking single-level living in a quiet village setting. The property is well maintained, with uPVC glazing throughout, oil-fired central heating to radiators, and a spacious sitting/dining room that opens to a bright dining area with skylights and patio doors.
The accommodation includes a master bedroom with fitted wardrobes and an en-suite bathroom, a second bedroom and a separate wet room, giving practical flexibility for guests or adaptable living. The kitchen is contemporary with fitted beech-front units, under-counter double oven and space for appliances; the layout is compact but efficient.
Outside, there is ample off-road parking, a detached single garage and a private south-facing rear garden enclosed by mature hedging. The garage has a fitted kitchen area but water still needs to be connected. The oil tank and outside electrics are positioned for easy access.
Practical notes: heating is oil-fired (owners should factor ongoing fuel costs), the garage requires water connection for the fitted kitchenette, and the bungalow’s traditional layout offers comfortable, modestly sized rooms rather than a large open-plan footprint. The village location provides easy access to Saxmundham, Aldeburgh and Snape, with good broadband and mobile signal, low local crime and nearby primary schooling.
3 bedroom detached bungalow for sale in Knodishall, IP17 — £485,000 • 3 bed • 2 bath • 1524 ft²
2 bedroom semi-detached house for sale in Buxlow Close, Knodishall, IP17 — £270,000 • 2 bed • 1 bath • 926 ft²
3 bedroom bungalow for sale in Judith Avenue, Knodishall, Saxmundham, Suffolk, IP17 — £450,000 • 3 bed • 2 bath • 2305 ft²
3 bedroom detached bungalow for sale in Knodishall, Near The Heritage Coast, Suffolk, IP17 — £275,000 • 3 bed • 1 bath • 987 ft²
3 bedroom detached bungalow for sale in Judith Avenue, Knodishall, Saxmundham, IP17 — £425,000 • 3 bed • 1 bath • 1843 ft²
2 bedroom detached bungalow for sale in Knodishall, Saxmundham, IP17 — £375,000 • 2 bed • 1 bath










































