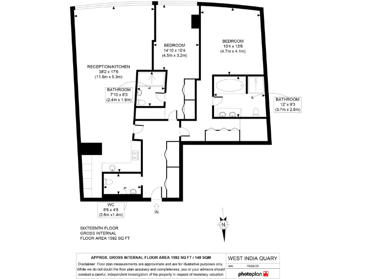
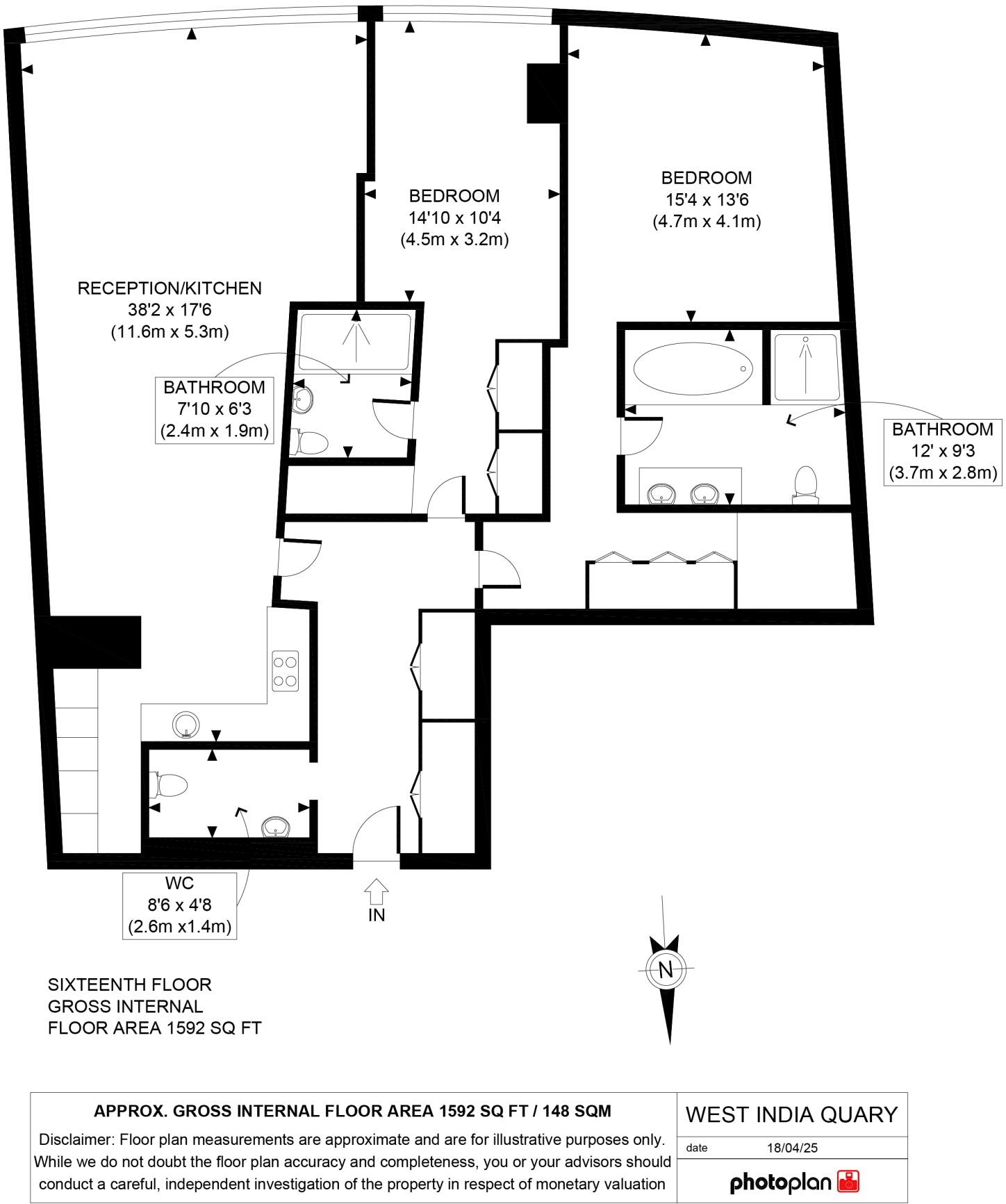
**Standout Features:**
- Size: Approximately 1592 sqft
- Location: Prime dockside setting in Canary Wharf
- Stunning views of North Dock and London skyline
- 24-hour concierge service and access to Marriot hotel amenities
- Spacious principal bedroom with ensuite and walk-in wardrobe
- Proximity to West India Quay DLR station (250 ft away)
**Notable Concerns:**
- Service charge of £17,000 (high)
- Leasehold tenure
Discover modern urban living in this expansive 1592 sqft apartment nestled in one of Canary Wharf's iconic skyscrapers. This exceptional flat boasts floor-to-ceiling windows that flood the open plan living area with natural light, highlighting sweeping views over North Dock and the London skyline. Enjoy the luxury of a 24-hour concierge and butler service in this prime dockside setting, just steps from the bustling business district.
The thoughtfully designed layout includes a spacious principal bedroom complete with an ensuite and walk-in wardrobe, plus an additional bright double bedroom. Conveniently located near West India Quay DLR station and the Elizabeth Line, this home also offers excellent transport links for city commuting. While the service charge is on the higher side at £17,000, this residence presents an outstanding opportunity for both investors and families seeking a prestigious lifestyle in one of London's most affluent areas.
Act quickly—this unique offering in a sought-after location won’t last long!
2 bedroom apartment for sale in West India Quay, 26 Hertsmere Road, London, E14 — £650,000 • 2 bed • 2 bath • 926 ft²
1 bedroom apartment for sale in Apartment , Hertsmere Road, London, E14 — £545,000 • 1 bed • 1 bath • 958 ft²
2 bedroom apartment for sale in Park Drive, London, E14 — £1,500,000 • 2 bed • 2 bath • 960 ft²
2 bedroom apartment for sale in West India Quay, Hertsmere Road, London, E14 — £599,995 • 2 bed • 2 bath • 1076 ft²
2 bedroom apartment for sale in Marsh Wall, Canary Wharf, London, E14 — £866,000 • 2 bed • 2 bath
2 bedroom flat for sale in Marsh Wall, London, E14 — £1,000,000 • 2 bed • 2 bath • 940 ft²






























































