Spacious high‑spec apartment with concierge, parking and excellent transport links.
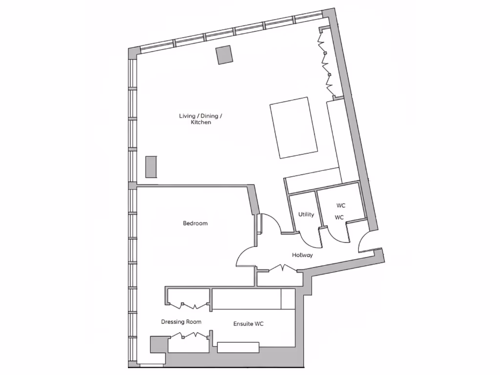
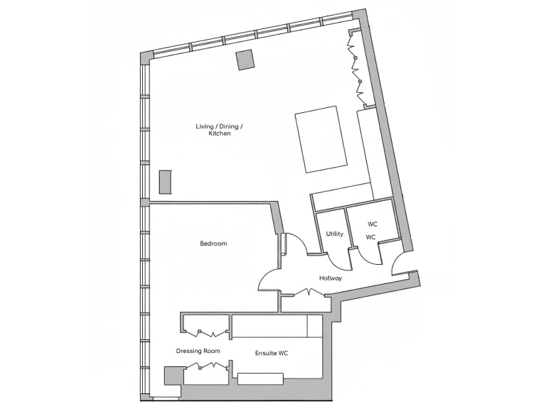
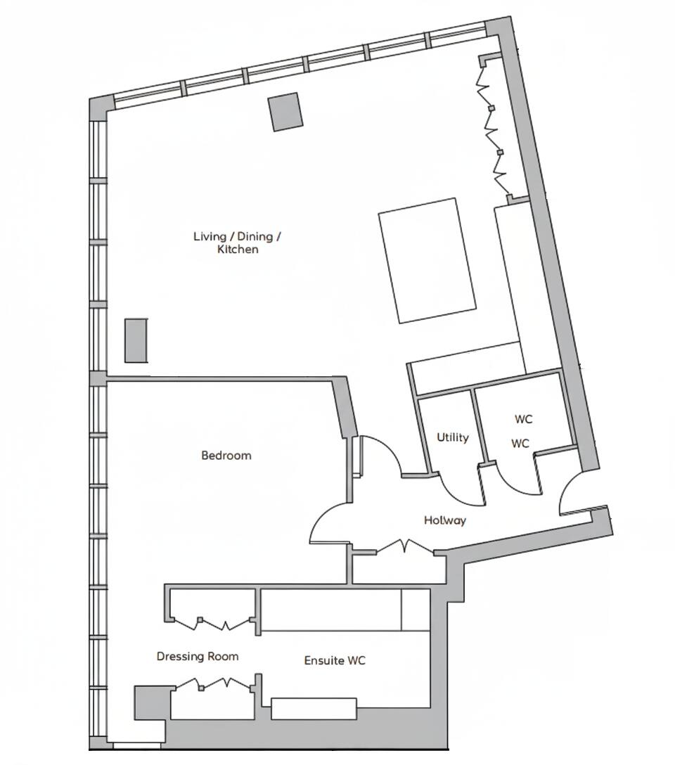
Large 1-bed, approx. 958 sq ft, generous room sizes
A spacious one-bedroom apartment in central Canary Wharf, arranged as contemporary open-plan living with high-spec finishes. The layout includes a large bedroom with en-suite, separate guest washroom and an airy living/kitchen area with integrated appliances and stone worktops. The apartment’s East / South‑East aspect delivers strong morning and midday light and a wide, open outlook.
Residents benefit from a 24‑hour concierge, comfort cooling and heating, secure off‑street parking (one space) and lifestyle perks at the adjoining hotel. The property sits steps from West India Quay with swift connections to Canary Wharf, Bank and Stratford — convenient for professionals and investors seeking rental demand.
Important costs and tenure: the unit is leasehold with 979 years remaining and an annual ground rent of £350. Service charge is high at £12,160 per year and Council Tax is Band F; factor these running costs into affordability or yield calculations. Crime statistics are reported as very high for the local area, so consider security needs despite on-site concierge and gated facilities.
Overall this is a well‑finished, city‑centre apartment that suits buyers wanting a large one‑bed in a prime business district — attractive to investors targeting strong lettings and to professionals seeking turnkey city living. The property offers scope for stable rental income balanced against significant service charges and local security considerations.
1 bedroom apartment for sale in West India Quay, 26 Hertsmere Road, London, E14 — £425,000 • 1 bed • 1 bath • 603 ft²
1 bedroom apartment for sale in Harbour Way, South Quay, E14 — £500,000 • 1 bed • 1 bath • 508 ft²
1 bedroom apartment for sale in 1 West India Quay, 26 Hertsmere Road, Canary Wharf, London, E14 — £500,000 • 1 bed • 1 bath • 613 ft²
1 bedroom flat for sale in Canary Central, Cassilis Road, Canary Wharf, London, E14 — £380,000 • 1 bed • 1 bath • 721 ft²
1 bedroom flat for sale in Mastmaker Road, London, E14 — £500,000 • 1 bed • 1 bath • 630 ft²
1 bedroom flat for sale in Baltimore Wharf, Docklands, London, E14 — £425,000 • 1 bed • 2 bath • 744 ft²






























































