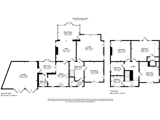
**Standout Features:**
- Beautifully presented detached Edwardian home
- Four generous bedrooms, including a master with en-suite
- Three reception rooms and a stunning garden room
- Luxury re-fitted bathroom and additional W/C
- Spacious plot with a manicured garden, double garage, and off-street parking
- Backing onto the prestigious Rothley Golf Course
- Chain free for a hassle-free purchase
This exquisite detached Edwardian home perfectly blends original character with modern living, situated in a highly coveted neighborhood that backs onto Rothley Golf Course. Spanning approximately 2066 square feet, the spacious layout includes four well-sized bedrooms, a master suite with a luxurious en-suite, and a beautifully re-fitted bathroom. The grand entrance hallway leads to multiple reception rooms, including a cozy snug and a garden room, designed for both relaxation and entertaining.
The lush, secluded garden invites outdoor enjoyment, while the double garage and substantial driveway provide ample parking. Located within the affluent community, the home is in close proximity to excellent schools and amenities, offering a family-friendly environment with low crime rates and fast broadband speeds. With no upward chain, this property is ready for a new owner to make it their own. Don’t miss the chance to own a rare gem in such a desirable locale; schedule a viewing today before it's gone!
3 bedroom semi-detached house for sale in Westfield Lane, Rothley, Leicester, LE7 7LH, LE7 — £575,000 • 3 bed • 1 bath • 1393 ft²
4 bedroom detached house for sale in Merlin Close, Rothley, Leicester, LE7 — £450,000 • 4 bed • 2 bath • 1534 ft²
4 bedroom detached house for sale in Plain Gate, Rothley, Leicester, LE7 — £1,000,000 • 4 bed • 2 bath • 3113 ft²
4 bedroom detached bungalow for sale in Westfield Lane, Rothley, LE7 — £900,000 • 4 bed • 3 bath • 2500 ft²
4 bedroom detached house for sale in Swithland Lane, Rothley, Leicester, LE7 — £799,950 • 4 bed • 2 bath • 1807 ft²
4 bedroom detached house for sale in Church Lane, Ratby, LE6 — £675,000 • 4 bed • 1 bath • 1841 ft²


































































































































































































