**Standout Features:**
- Charming 1-bedroom first-floor flat in a historic building (formerly an old police station)
- Modern open-plan living space with ample natural light
- Double glazing and electric heating for comfort
- Private parking space in a resident-only car park
- Short walk to station and town center
- Great investment opportunity or ideal for first-time buyers
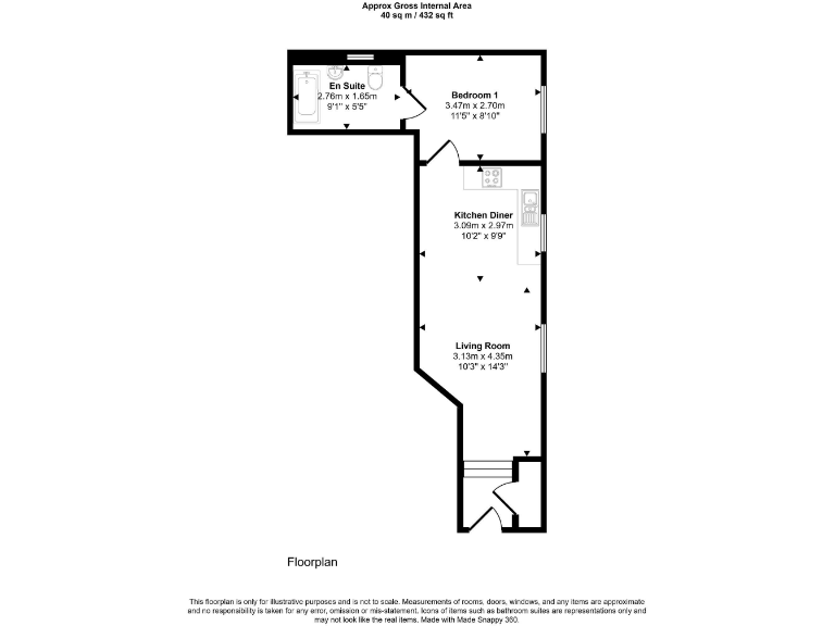
Welcome to this charming 1-bedroom flat located on the first floor of a beautifully-preserved Georgian Revival building, offering a unique blend of historic character and modern living. Inside, you’ll find a bright and airy open-plan living space that seamlessly integrates the kitchen and living area, perfect for entertaining or relaxing. The residence is equipped with double glazing and electric heating, ensuring comfort year-round.
Positioned just a short stroll from both the station and town center, this flat provides excellent accessibility to local amenities and transport links, making it a practical choice for busy professionals or those looking for a steady rental income. You'll also appreciate the convenience of having your own private parking space.
This well-presented property is ideal for first-time buyers or investors seeking a cozy, low-maintenance living space in a desirable neighborhood. While the total square footage is modest (432 sq ft), the charm and potential of this residence beckon for you to envision its possibilities. Don't miss out on this incredible opportunity – schedule your viewing today and secure your place in this attractive community.
1 bedroom flat for sale in Broad Street, Copsham House, HP5 — £199,950 • 1 bed • 1 bath • 398 ft²
1 bedroom property for sale in Higham Road, The Old Perfumery, HP5 — £197,000 • 1 bed • 1 bath • 326 ft²
1 bedroom property for sale in Broad Street, Copsham House, HP5 — £199,950 • 1 bed • 1 bath • 377 ft²
1 bedroom flat for sale in Chesham, Buckinghamshire, HP5 — £180,000 • 1 bed • 1 bath • 355 ft²
1 bedroom flat for sale in Jubilee Road, Jubilee Court Jubilee Road, HP11 — £150,000 • 1 bed • 1 bath • 336 ft²
1 bedroom flat for sale in Westgate Court, Gomm Road, HP13 — £179,950 • 1 bed • 1 bath • 388 ft²






































