HP5 3EA - 1 bedroom flat for sale in Chesham, Buckinghamshire, HP5

View on Property Piper

1 bedroom flat for sale in Chesham, Buckinghamshire, HP5

Summary - THAMES VALLEY POLICE AUTHORITY, BROAD STREET HP5 3EA

1 bed 1 bath Flat

**Standout Features:**
- Leasehold with 116 years remaining
- Top-floor, executive one-bedroom apartment
- Modern open-plan kitchen/living area
- Allocated off-street parking space
- Ideal location near Chesham High Street & train station
- Average council tax and low crime rate
- Strong rental potential in affluent area

**Notable Concerns:**
- Service charge of £1,692.08 annually
- Ground rent of £295 per year

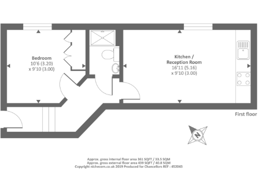
This contemporary one-bedroom apartment offers a unique opportunity for first-time buyers or investors seeking a prime location in Chesham. Spanning 355 square feet, the top-floor layout features a bright open-plan kitchen and living room with wood flooring, complemented by a cozy bathroom. With an allocated off-street parking space, convenience is at your doorstep, and direct access to the bustling high street and train station enhances the property’s appeal.

Nestled within a vibrant community, this property is surrounded by several well-rated schools, including the outstanding Chesham Grammar School and Dr Challoner's Grammar School, making it ideal for families. While there's a service charge to consider, the potential for rental income in this affluent area is promising. Don’t miss out on this rare find—schedule a viewing today and envision the comfort and convenience it could bring!

Property Details

Image Descriptions

Floorplan Description

Rooms

Textual Property Features

Detected Visual Features

EPC Details

Nearby Schools

Nearest Bars And Restaurants

,,,,}

Nearest General Shops

,,}

Nearest Grocery shops

,,}

Nearest Supermarkets

,,}

Nearest Religious buildings

,,}

Nearest Medical buildings

,,,}

Nearest Airports

}

Nearest Leisure Facilities

,,,,}

Nearest Tourist attractions

,,}

Nearest Train stations

,,,,}

Nearest Bus stations and stops

,,,,}

Nearest Hotels

,,}

Tags

Local Market Stats

AirBnB Data

Similar Properties

Meta

High Res Images

Compatible Images

Low res Images

Thumbnails

Raw Images

High Res Floorplan Images

Compatible Floorplan Images

Low res Floorplan Images

FloorplanImages Thumbnail

Raw Floorplan Images