HU5 3DN - 4 bed victorian family home in Victoria Avenue, HU5 3DN

View on Property Piper

4 bedroom terraced house for sale in Victoria Avenue, Hull, HU5

Summary - 29 VICTORIA AVENUE HULL HU5 3DN

4 bed 2 bath Terraced

Spacious period terrace with south-facing garden and garage, ideal for family life.
Four spacious bedrooms including principal with modern en-suite
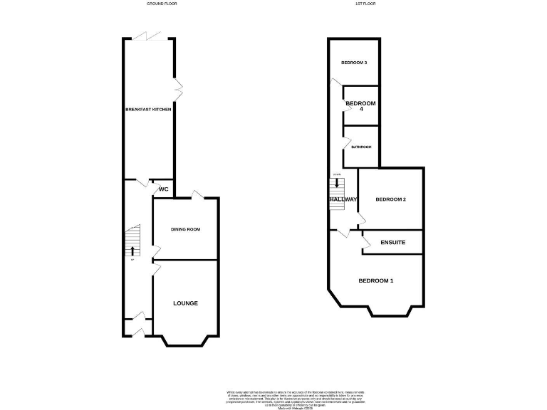
Set on sought-after Victoria Avenue, this substantial Victorian mid-terrace combines period character with contemporary family living. High ceilings, bay windows and original fireplaces sit alongside a large open-plan breakfast kitchen and a light-filled sun room with bi-fold doors — ideal for family life and entertaining.

The house was reconfigured from five bedrooms into four to create a spacious principal suite with a modern en-suite, giving more usable space than a typical four-bedroom home. An expansive, south-facing rear garden, block-paved patio, single garage and off-street parking via the rear tenfoot deliver practical outdoor space and storage for vehicles or bikes.

Practical strengths include freehold tenure, fast broadband and excellent mobile signal. The property benefits from gas central heating (not tested) and overall floor area of about 1,180 sq ft across multiple storeys, offering versatile room layouts for growing families or multi-use working spaces.

Buyers should note this home sits within an area classed as a cosmopolitan student neighbourhood and a wider area with relative deprivation; this may mean higher footfall and local activity at times. Central heating has not been tested — a survey is recommended. Council Tax Band D applies.

Property Details

Brochure Descriptions

Image Descriptions

Floorplan Description

Rooms

Textual Property Features

Target Audience

AI Tags

Detected Visual Features

Nearby Schools

Nearest Bars And Restaurants

,,,,}

Nearest General Shops

,,}

Nearest Grocery shops

,,}

Nearest Supermarkets

,,}

Nearest Religious buildings

,,}

Nearest Medical buildings

,,,}

Nearest Airports

}

Nearest Leisure Facilities

,,,,}

Nearest Tourist attractions

,,}

Nearest Train stations

,,,,}

Nearest Bus stations and stops

,,,,}

Nearest Hotels

,,}

Tags

Local Market Stats

AirBnB Data

Similar Properties

Meta

High Res Images

Compatible Images

Low res Images

Thumbnails

Raw Images

High Res Floorplan Images

Compatible Floorplan Images

Low res Floorplan Images

FloorplanImages Thumbnail

Raw Floorplan Images