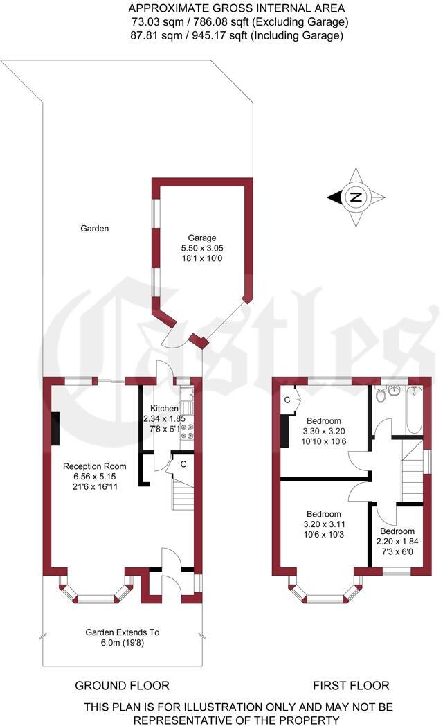
Spacious rear garden and garage, ideal for a family refurbishment project.
Three bedrooms in a 1930s end-of-terrace layout
A three-bedroom 1930s end-of-terrace offering a practical family layout and a long rear garden with detached garage. The house retains period character externally and benefits from gas central heating and double glazing. Its footprint (approx. 786 sq ft) suits growing families seeking outdoor space and off-street parking via a shared drive.
The property is offered as a freehold, with straightforward potential to improve value through refurbishment. Internal condition and finishes are not confirmed from the available information — a physical inspection is recommended. Construction is solid brick with no known cavity insulation (assumed), so buyers should factor thermal upgrade costs into any renovation plans.
Located on a popular Latymer Road turning, the home sits close to several well-rated primary and secondary schools and local amenities, with fast broadband and excellent mobile signal. The surrounding area is an urban cultural mix in a wider multicultural new-arrivals neighbourhood with higher-than-average deprivation; this can affect resale comparables and should be considered by investor and owner-occupier buyers alike.
3 bedroom terraced house for sale in Winton Close, Edmonton, N9 — £439,950 • 3 bed • 1 bath • 857 ft²
3 bedroom house for sale in Wellstead Avenue, Edmonton, N9 — £439,950 • 3 bed • 1 bath • 993 ft²
3 bedroom terraced house for sale in Nightingale Road, Edmonton, N9 — £455,000 • 3 bed • 2 bath • 1092 ft²
3 bedroom terraced house for sale in Latymer Road, Edmonton, N9 — £475,000 • 3 bed • 1 bath • 844 ft²
3 bedroom end of terrace house for sale in New Park Avenue, Palmers Green, London, N13 — £550,000 • 3 bed • 1 bath • 712 ft²
3 bedroom end of terrace house for sale in Bury Street, Edmonton, N9 — £439,950 • 3 bed • 1 bath • 922 ft²


























































































