SL9 9EY - 3 bedroom semidetached house for sale in Orchard Grove, Cha…

View on Property Piper

3 bedroom semi-detached house for sale in Orchard Grove, Chalfont St Peter, SL9

Summary - 18 ORCHARD GROVE CHALFONT ST PETER GERRARDS CROSS SL9 9EY

3 bed 2 bath Semi-Detached

**Standout Features:**
- Charming three-bedroom semi-detached cottage
- Extended and refurbished to excellent standards
- Spacious interior with multiple living areas
- Superb outbuilding ideal for home office, gym or playroom
- Situated in a sought-after location near local schools and amenities
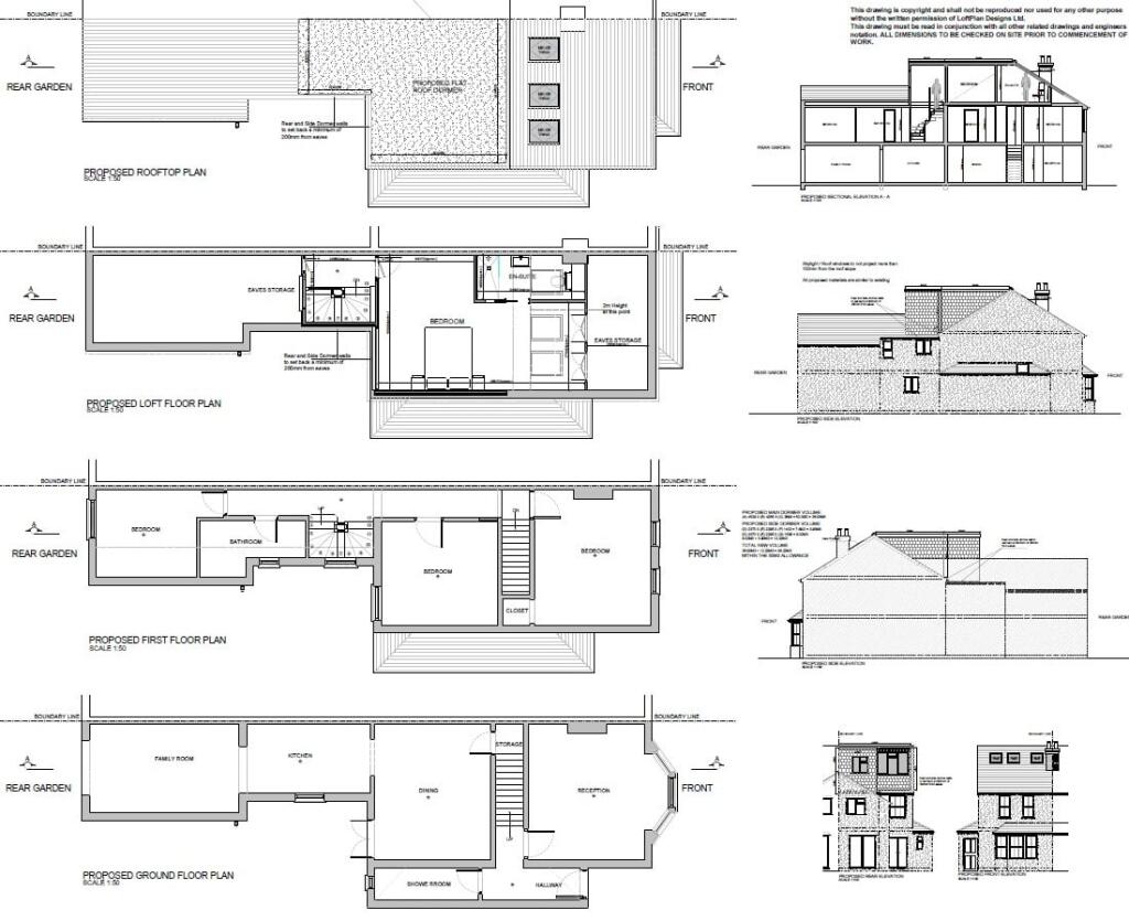
- Plans in place for a loft conversion to add a master bedroom with ensuite (subject to planning)

**Summary Description:**
Embrace the comfort and charm of this stunning three-bedroom semi-detached cottage, ideally located in a desirable residential area just a short walk from Chalfont St Peter Village centre. This beautifully presented home features an inviting entrance with a mosaic tiled pathway and a bright skylit hallway leading to two generous reception rooms, an extended fitted kitchen/family room, and a convenient ground floor shower room. Upstairs, you will find three spacious bedrooms and a loft room that offers additional space or storage potential.

The outdoor space is a true highlight, encompassing a private rear garden that's approximately 60' long, complete with artificial grass, an expansive paved patio, and a fantastic outbuilding perfect for a home office, gym, or playroom. Families will appreciate the access to excellent local schools, various amenities, and scenic walks nearby. With planning permission drawn up for a loft conversion, this property offers future flexibility to expand your family’s living space. Don’t miss the chance to view this exceptional home—properties of this caliber are in high demand and won’t last long!

Property Details

Brochure Descriptions

Image Descriptions

Floorplan Description

Rooms

Textual Property Features

Detected Visual Features

Nearby Schools

Nearest Bars And Restaurants

,,,,}

Nearest General Shops

,,}

Nearest Grocery shops

,,}

Nearest Supermarkets

,,}

Nearest Religious buildings

,,}

Nearest Medical buildings

,,,}

Nearest Airports

}

Nearest Leisure Facilities

,,,,}

Nearest Tourist attractions

,,}

Nearest Train stations

,,,,}

Nearest Bus stations and stops

,,,,}

Nearest Hotels

,,}

Tags

Local Market Stats

AirBnB Data

Similar Properties

Meta

High Res Images

Compatible Images

Low res Images

Thumbnails

Raw Images

High Res Floorplan Images

Compatible Floorplan Images

Low res Floorplan Images

FloorplanImages Thumbnail

Raw Floorplan Images