Sunlit courtyard garden and spacious open-plan living steps from the Thames.
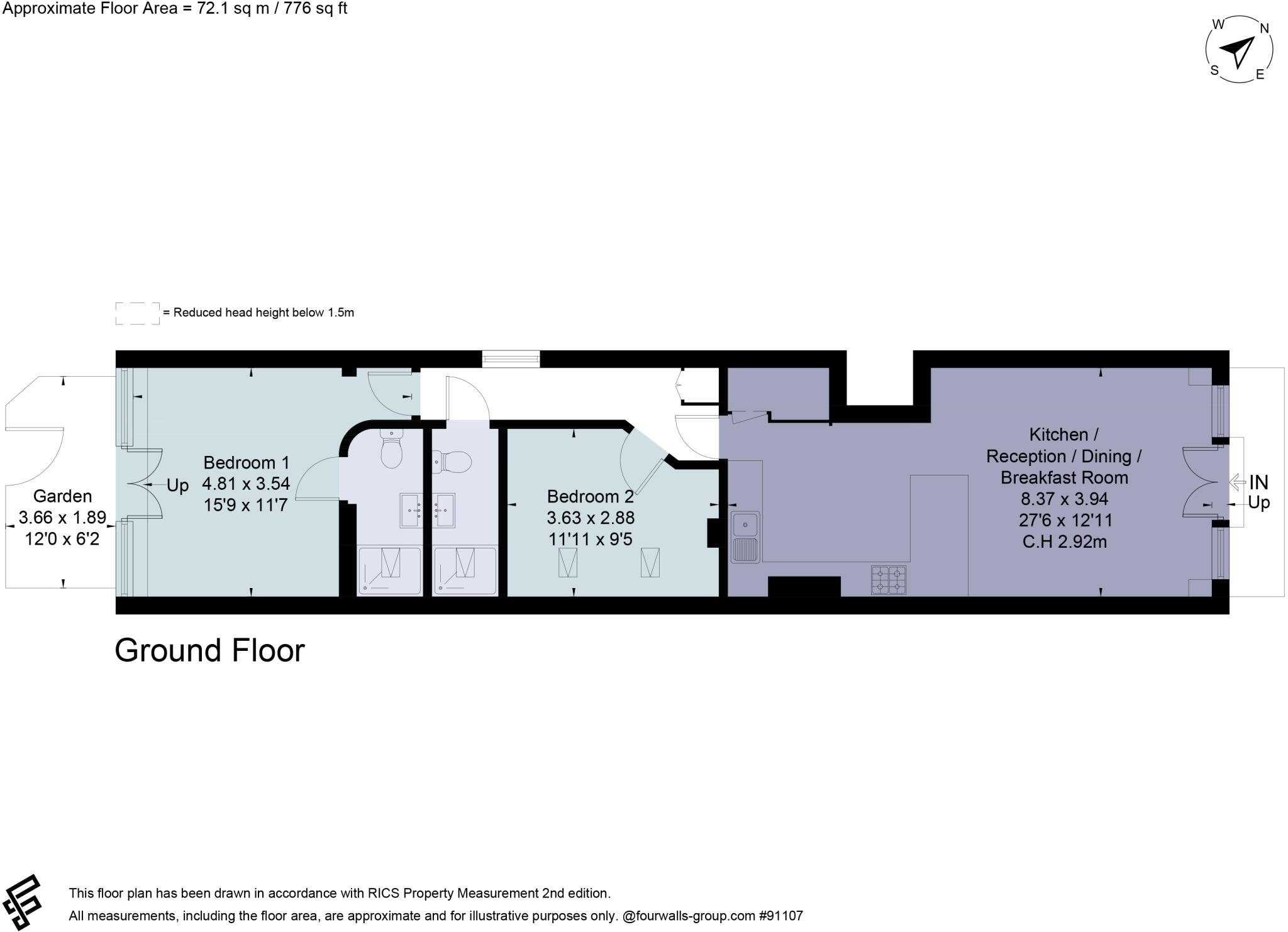
Ground-floor two-bedroom apartment with private entrance
A stylish two-bedroom ground-floor apartment in a handsome period terrace, freshly and thoughtfully renovated. The apartment opens via its own private entrance into a bright, over 27ft open-plan kitchen/reception room with large ornate windows; engineered floors and contemporary fittings give a modern, airy feel. To the rear are two double bedrooms, the main with French doors out to a south-west facing courtyard garden, and two shower rooms (one en suite).
The location is a standout: directly opposite Wandsworth Park and the River Thames, within easy reach of Putney High Street amenities, commuter links (Putney Bridge and East Putney Underground, mainline to Waterloo) and a choice of well-regarded schools. With 776 sq ft and long leasehold security (around 971 years remaining), this apartment suits buyers seeking a well-presented, low-maintenance home in an affluent, inner-city neighbourhood.
Practical details: the property is leasehold, service charge is c. £480 (below average), and council tax is moderate. The EPC is rated D and the building is of solid-brick Victorian construction with no confirmed modern wall insulation; buyers should note this if energy efficiency or retrofit is a priority. Flood risk is low and local crime levels are very low.
2 bedroom apartment for sale in Sefton Street, Putney, London, SW15 — £700,000 • 2 bed • 1 bath • 602 ft²
2 bedroom flat for sale in Smugglers Way, Wandsworth, London, SW18 — £500,000 • 2 bed • 2 bath • 762 ft²
2 bedroom flat for sale in Brewhouse Lane, London, London, SW15 — £545,000 • 2 bed • 2 bath • 643 ft²
2 bedroom flat for sale in Enterprise Way, London, SW18 — £625,000 • 2 bed • 2 bath • 764 ft²
2 bedroom apartment for sale in Lower Richmond Road, London, SW15 — £800,000 • 2 bed • 1 bath • 888 ft²
2 bedroom flat for sale in Putney Bridge Road,
East Putney, SW18 — £650,000 • 2 bed • 2 bath • 800 ft²


















































