Ground-floor two-bed with rare gated parking and private courtyard ideal for West Putney living.
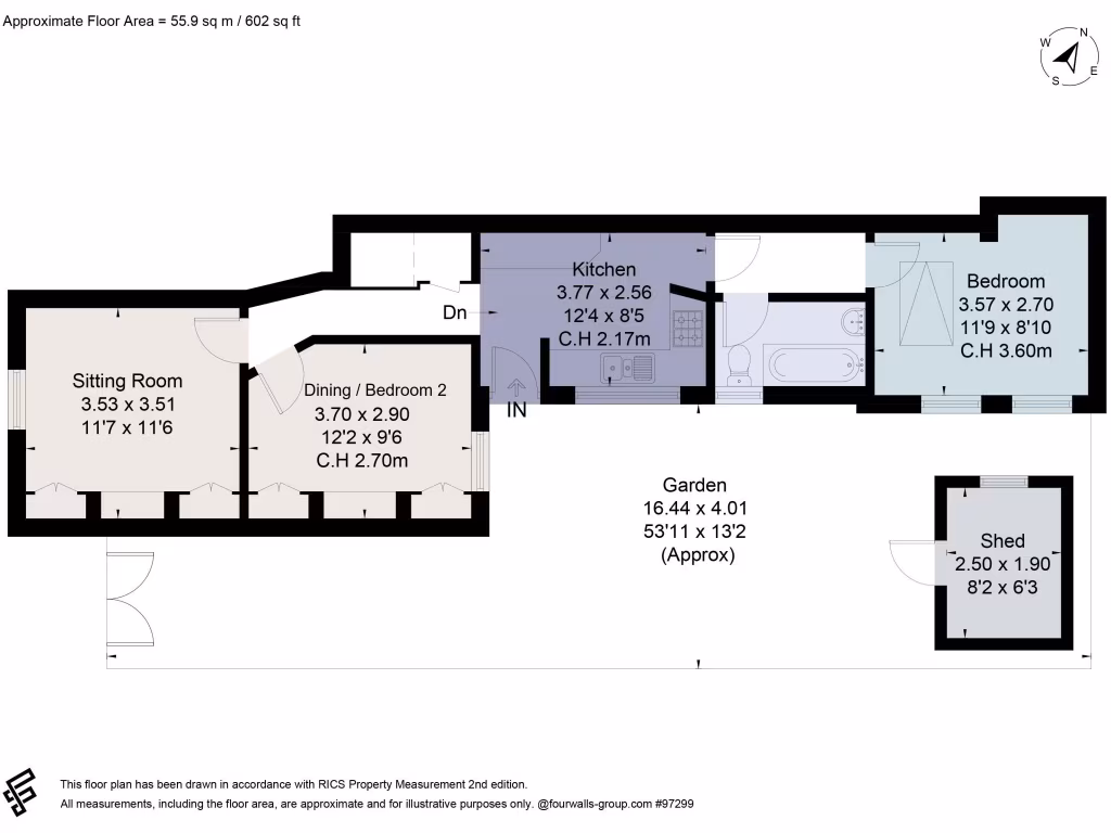
Ground-floor two-bedroom apartment, 602 sq ft
This well-presented ground-floor two-bedroom flat sits in an end-of-terrace Victorian building on a leafy West Putney street. With its own front door, the apartment benefits from a sheltered private courtyard garden and rare gated off-street parking — useful extras for families and professionals who want outdoor space and secure parking close to central London links.
Internally the apartment retains period character including high ceilings and mouldings, and offers a practical layout with a reception room, two double bedrooms, a fitted kitchen and bathroom. At 602 sq ft the accommodation is compact and best suited to buyers seeking a manageable, comfortable home rather than expansive living space.
Ownership is on a share of freehold basis and the property is chain-free, which simplifies purchase. However the remaining lease is around 75 years; this is a material issue that may restrict some mortgage lenders and will likely require extension budgeting. The EPC is rated D and the building has solid brick walls with limited assumed insulation.
Location is a strong selling point: easy access to Putney’s shops, river transport, multiple District line stations and mainline services to Waterloo, plus several well-regarded primary and secondary schools nearby. Overall this flat is a convenient, characterful option for buyers prioritising West Putney location, private outdoor space and parking — provided they factor in lease and energy-performance considerations.
2 bedroom flat for sale in Portinscale Road, Putney, London, SW15 — £525,000 • 2 bed • 1 bath • 824 ft²
2 bedroom apartment for sale in Oxford Road, London, SW15 — £600,000 • 2 bed • 1 bath • 775 ft²
2 bedroom flat for sale in Kersfield Road, Putney, SW15 — £475,000 • 2 bed • 1 bath • 698 ft²
2 bedroom flat for sale in Putney Hill, SW15 — £750,000 • 2 bed • 2 bath • 1018 ft²
2 bedroom apartment for sale in Cromford Road, Putney, London, SW18 — £925,000 • 2 bed • 1 bath • 1033 ft²
2 bedroom flat for sale in Keswick Road, London, SW15 — £750,000 • 2 bed • 1 bath • 784 ft²


















































