Ideal entry-level home near Fulwell station and Teddington amenities.
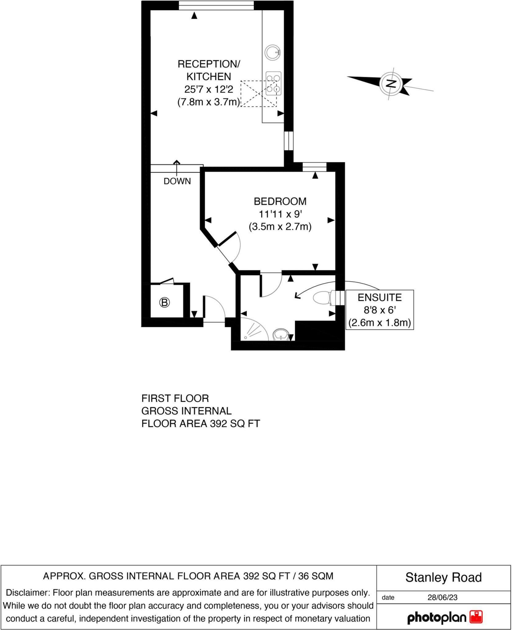
Compact 36 sq m (392 sq ft) one-bedroom flat
This bright first-floor flat combines period character with modern finishes across a compact, well-planned layout. The open-plan reception/kitchen is dual-aspect and benefits from generous natural light, while a double bedroom links to a private en-suite shower.
The location is a major selling point: a short walk to Fulwell station for fast links into Central London, with Teddington town centre, local shops and Bushy Park all close by. The building dates from the 1930s–40s and has practical double glazing and gas central heating.
Important practical details: the property is leasehold with 106 years remaining, an annual ground rent of £100 and a service charge of £250. It will be sold via Secure Sale online bidding (terms apply). The apartment’s overall size is small at 36 sq m (392 sq ft), so it suits a single buyer or couple rather than someone needing lots of storage or living space.
Offered with straightforward interiors and low running costs (Council Tax Band B), this apartment presents a turn-key opportunity for a first-time buyer or investor seeking a well-located, low-maintenance home close to transport and green space.
1 bedroom flat for sale in Stanley Road, Teddington, TW11 — £210,000 • 1 bed • 1 bath • 392 ft²
1 bedroom flat for sale in Waldegrave Road, Teddington, TW11 — £200,000 • 1 bed • 1 bath • 435 ft²
1 bedroom flat for sale in Flat 21 Fairmile House, 30 Twickenham Road, Teddington, Middlesex, TW11 8BA, TW11 — £250,000 • 1 bed • 1 bath • 430 ft²
Studio flat for sale in Waldegrave Road, Teddington, TW11 — £200,000 • 1 bed • 1 bath • 388 ft²
1 bedroom flat for sale in High Street, Teddington, TW11 — £320,000 • 1 bed • 1 bath • 302 ft²
1 bedroom apartment for sale in Hampton Road, Teddington, TW11 — £350,000 • 1 bed • 1 bath • 560 ft²














































