Compact first-floor flat near Fulwell station and Bushy Park.
Bright open-plan reception/kitchen with skylight and modern finishes
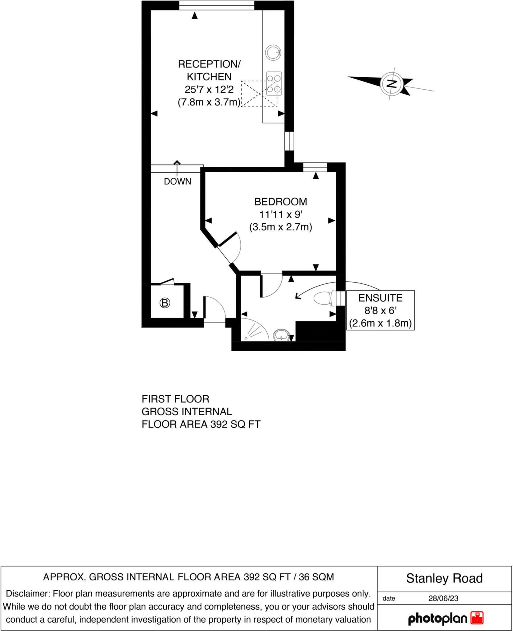
A bright, characterful one-bedroom first-floor flat in leafy Teddington, arranged as an open-plan reception/kitchen with modern finishes throughout. The apartment benefits from a well-proportioned double bedroom with an en-suite shower room, good built-in storage and generous natural light from dual aspects and a kitchen skylight.
Practical running costs are modest: a long lease of 106 years remaining, low service charge (£250/year) and small ground rent (£100/year). The flat has gas central heating, double glazing and an EPC rating of C — suitable for immediate occupation or let-ready for investors.
Location is a key strength: a short walk to Fulwell station with fast links into Central London, close to Teddington town centre shops and buses, and within easy reach of Bushy Park and the Thames. Nearby schools include several rated Outstanding, adding family appeal despite the compact size.
This lot is being sold via an online auction (secure bidding; terms apply). Prospective buyers should note the auction process and mandatory ID/AML checks, and that viewings are by appointment only. The property’s compact footprint (approx. 392 sq ft) suits a first-time buyer, single professional or buy-to-let investor rather than those needing large living spaces.
1 bedroom apartment for sale in Stanley Road, London, ., TW11 8UE, TW11 — £199,999 • 1 bed • 1 bath • 392 ft²
1 bedroom flat for sale in Waldegrave Road, Teddington, TW11 — £200,000 • 1 bed • 1 bath • 435 ft²
1 bedroom flat for sale in Flat 21 Fairmile House, 30 Twickenham Road, Teddington, Middlesex, TW11 8BA, TW11 — £250,000 • 1 bed • 1 bath • 430 ft²
Studio flat for sale in Waldegrave Road, Teddington, TW11 — £200,000 • 1 bed • 1 bath • 388 ft²
1 bedroom apartment for sale in Kingston Road, Teddington, TW11 — £245,000 • 1 bed • 1 bath • 429 ft²
1 bedroom flat for sale in High Street, Teddington, TW11 — £295,000 • 1 bed • 1 bath • 302 ft²














































